Trosoban stan na prodaju, Centar, 149.400€, 83m²
Kragujevac, Gradske lokacije, Centar
Prikaži mapuŠifra oglasa: 4zida-PS1609231426VJOglas ažuriran: pre 1 mesec




149.400 €
1.800 € / m2
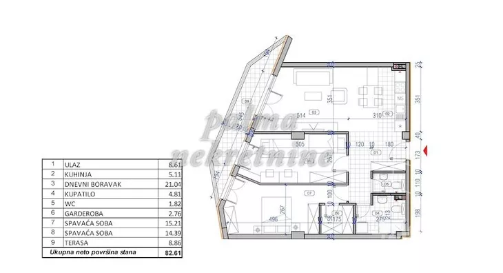
83 m²
3 sobe
6. sprat
- Novo
- Prostorije: kupatilo, toalet, terasa
- Opremljenost: Prazno - interfon, klima
- Uknjiženo
- Oglas oglašava agencija pod reg. brojem 210
- Godina izgradnje: 2024.
- Kablovska
Opis oglasa
Prodaje se stan u Kragujevcu - naselje Centar
NOVOGRADNJA - ROK IZGRADNJE DO KRAJA 2025. GODINE
Na cenu iz oglasa se plaća porez na prenos apsolutnih prava u visini od 2,5 %.
Cena garažnog mesta je 15.000 e.
*Sačuvaj oglas uz belešku i primaj obaveštenja o njihovom pojeftinjenju ili pojavljivanju sličnih
Prikaz stana na mapi
Parkovi u blizini
- Veliki park42 min
- Kreativni park Kragujevac44 min

Obeležja kulture u blizini
- Humka Kameni spavač8 min
- Centralna humka8 min
- Spomenik bola i prkosa10 min

Škole/Fakulteti/Vrtići u blizini
- Osnovna škola (Osnovna škola Dragiša Mihailović)6 min
- Srednja škola (Medicinska škola Sestre Ninković)9 min
- Vrtić (Dečiji vrtić Vini Pu)11 min
- Fakultet (Univerzitet u Kragujevcu Fakultet inženjerskih nauka)10 min

Zdravlje
- Bolnica (Ginekološka bolnica Nikolov)11 min
- Klinika (Poliklinika Tesla Medic)11 min
- Teretana (Fitnes centar Elite form)9 min
Hrana i piće
- Prodavnica (Market Trnava promet)14 min
- Restoran (Etno restoran Stari Boem)26 min
- Kafana (Etno kafana Palisad)32 min
Prevoz
- Autobuska stanica (Bjelašnička)9 min
Ostale ustanove
- Banka (Poštanska štedionica)8 min
- Pošta (Pošta Kragujevac 16)7 min
Kontakt oglašivača
▾Reklama▾
Stambeni krediti

- Period otplate od
96 -360 meseca
- NKS 4.75%
EKS 5.74%
Fiksna kamatna stopa
- Bez troškova obrade kredita
Za iznos kredita preko 300000 € poseti sajt banke.
Saznaj višePogledaj detaljnije i menjaj uslove kreditiranja na
stranici kreditnih kalkulatora
stranici kreditnih kalkulatora
Keš krediti
RSDIznos kredita
Period otplate
13 meseciOsiguranje domaćinstva online
Osiguraj svoje domaćinstvo u slučaju požara...

