Dvoiposoban stan na prodaju, Milovana Gušića, 110.400€, 48m²






















110.400 €
2.300 € / m2
Za ovaj oglas se neko interesovao. Pozovi ranije kako ne bi propustio priliku.
- Stan u zgradi
- Grejanje na gas
- U izgradnji
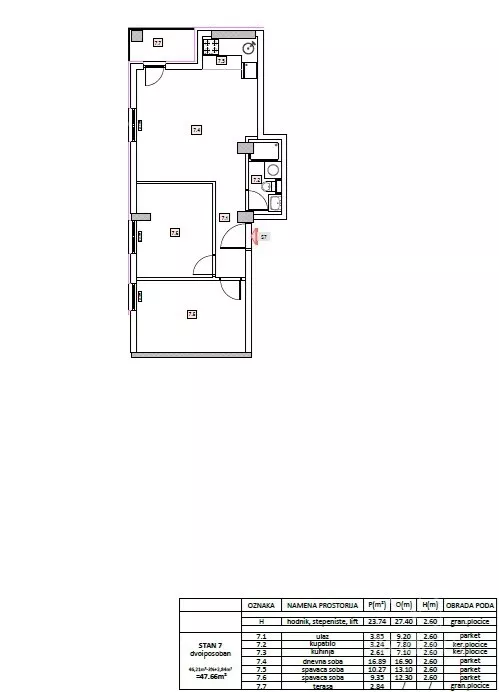
- Prostorije: kupatilo, terasa
- Pogled na: dvorište
- U procesu uknjižavanja
- Oglas oglašava agencija pod reg. brojem 1074
- 1 lift
Opis oglasa
U ponudi je moderna stambena zgrada u izgradnji, projektovana po savremenim standardima gradnje i kvaliteta. Objekat se nalazi na atraktivnoj lokaciji u ul. Milovana Gušića (preko puta osnovne škole Radoje Domanović), sa odličnom povezanošću sa svim važnim sadržajima.
Zgrada je spratnosti (Po+P+GAL+6+Ps), sa pažljivo osmišljenim rasporedom stanova različitih struktura i lokala, koji pružaju maksimalnu funkcionalnost i komfor budućim stanarima.
U ponudi su stanovi od 35, 42, 48, 86, 92 i 105 m2.
U izgradnji se koriste visokokvalitetni materijali, uključujući:
- termoizolaciju visoke efikasnosti,
- PVC stolariju sa višeslojnim staklom,
- sigurnosna ulazna vrata,
- kvalitetnu keramiku i parket.
Planirano je grejanje na GAS, kao i ugradnja lifta, interfona za dodatnu sigurnost.
Uz svaki stan postoji mogućnost kupovine garažnog ili parking mesta.
Rok završetka radova je planiran za mart 2028, uz mogućnost faznog plaćanja tokom izgradnje.
Cena stana je bez obračunatog PDV-a....
*Sačuvaj oglas uz belešku i primaj obaveštenja o njihovom pojeftinjenju ili pojavljivanju sličnih
Prikaz stana na mapi
Parkovi u blizini
- Mali park13 min
- Veliki park18 min
- Kreativni park Kragujevac18 min

Obeležja kulture u blizini
- Spomenik Joakimu Vujiću5 min
- Spomenik Vuku Karadžiću6 min
- Konak kneza Mihaila6 min

Škole/Fakulteti/Vrtići u blizini
- Osnovna škola (Škola za osnovno i srednje obrazovanje Vukašin Marković)3 min
- Srednja škola (Medicinska škola Sestre Ninković)6 min
- Vrtić (Dečiji vrtić Leptirić)7 min
- Fakultet (Univerzitet u Kragujevcu Fakultet medicinskih nauka)2 min

- Bolnica (Ginekološka bolnica Nikolov)8 min
- Klinika (Poliklinika Vezmar)4 min
- Teretana (Fitnes centar Popaj)6 min
- Prodavnica (Maxi Supermarket)4 min
- Restoran (Restoran Konoba)3 min
- Kafana (Kafana Dajte vina, hoću lom)6 min
- Autobuska stanica (Uzor)3 min
- Banka (Eurobank Direktna)7 min
- Pošta (Pošta Kragujevac 7)4 min
Kontakt oglašivača
Za ovaj oglas se neko interesovao. Pozovi ranije kako ne bi propustio priliku.
Krediti OTP banke
Saznaj više
Prikazana rata odnosi se na maksimalni period otplate. Kalkulator je informativnog karaktera.
* Nakon isteka 5 godina, prelazi se na varijabilnu kamatnu stopu


