Dvoiposoban stan na prodaju, Cara Dušana, 163.800€, 63m²


























163.800 €
2.600 € / m2
Za ovaj oglas se neko interesovao. Pozovi ranije kako ne bi propustio priliku.
- Stan u zgradi
- Etažno grejanje
- Luksuzno
- Prostorije: kupatilo, toalet, ostava, terasa
- Opremljenost: Prazno - klima, ventilacija
- Uknjiženo
- Oglas oglašava agencija pod reg. brojem 923
- 1 parking mesto, parking u dvorištu zgrade
- Zgrada poseduje: dvorište, lođa, ventilacija, video nadzor
Opis oglasa
NOVOGRADNJA,DIREKTNA PRODAJA BEZ PROVIZIJE
U prilici smo da vam ponudimo odmah useljiv stan u novogradnji u ulici Cara Dušana u Zemunu.
Zgrada je spratnosti Po+Pr+3 sa parkingom u dvorištu zgrade
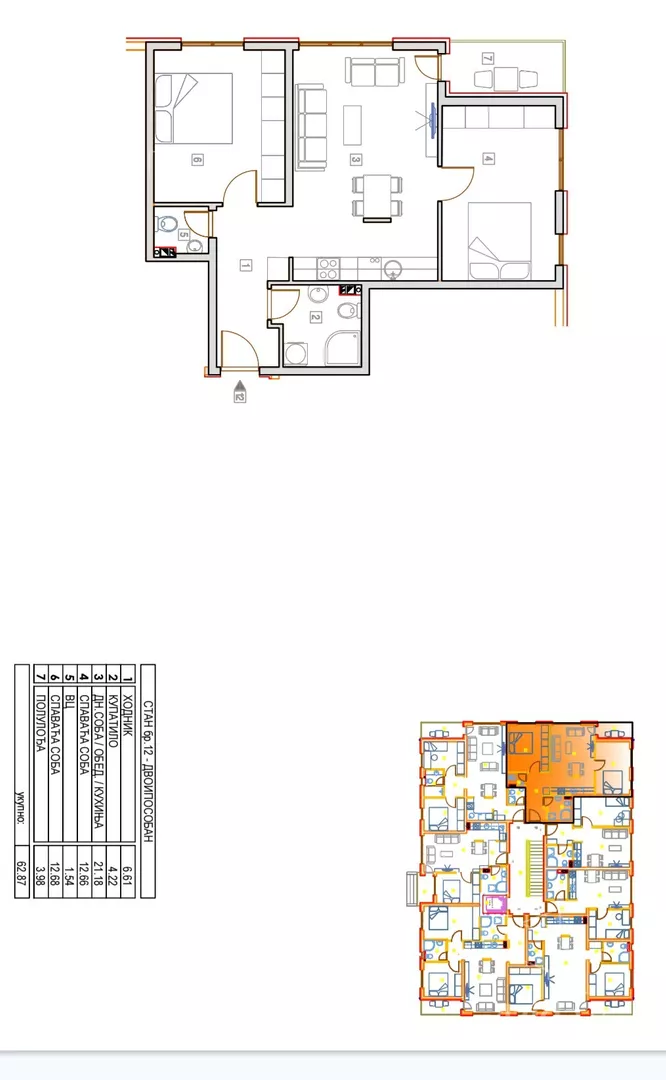
Stan se nalazi na prvom spratu zgrade,ukupne kvadrature 63m2
Stan je po strukturi dvoiposoban,ima dnevni boravak sa kuhinjom,hodnikom, dve spavaće sobe dva mokra čvora kupatilo i toalet i terasa.
Prostor je prostran i svetao,izgrađen kvalitetnim materijalima
Kvalitet gradnje se ogleda u zidanju klima blokovima-spolja debljine 20cm.a između stanova i prema hodnicima debljine 25cm,fasadna izolacija je 15cm sa finalnim radovima.
Stanovi su opremljeni kvalitetnim ugradnim elektro-kotlovima i italijanskim radijatorima sa štelujućim ventilima
Ugrađene su inverter klime
Obezbeđena su parking mesta i ostave koja se posebno doplaćuju.
Cena je bez iskazanog PDV-a
Lokacija zgrade je u blizini svih saobraćajnih i komercijalnih sadržaja.
*Sačuvaj oglas uz belešku i primaj obaveštenja o njihovom pojeftinjenju ili pojavljivanju sličnih
Prikaz stana na mapi
Parkovi u blizini
- Park Sava Kovačević19 min
- Dečje igralište26 min
- Park Jelovac27 min

Obeležja kulture u blizini
- Livnica Pantelić6 min
- Kula Sibinjanin Janka Gardoš7 min
- Kuća porodice Karamata7 min

Škole/Fakulteti/Vrtići u blizini
- Osnovna škola (Specijalna osnovna škola Branko Pešić)6 min
- Srednja škola (Specijalna srednja škola Veljko Ramadanović)11 min
- Vrtić (Dečiji vrtić Povratak prirodi)3 min
- Fakultet (Kriminalističko policijski univerzitet)10 min

- Bolnica (Gradski zavod za plućne bolesti i tuberkulozu)6 min
- Klinika (Poliklinika O2)4 min
- Teretana (Namaste Yoga Centar)4 min
- Prodavnica (Shop&Go)4 min
- Restoran (Restoran A la Grekos)9 min
- Kafana (Kaš Pivara)14 min
- Taksi stajalište (Taxi stanica)17 min
- Autobuska stanica (Tršćanska)2 min
- Banka (Poštanska štedionica)5 min
- Pošta (Pošta Beograd 82)14 min
Kontakt oglašivača
Za ovaj oglas se neko interesovao. Pozovi ranije kako ne bi propustio priliku.
Krediti OTP banke
Saznaj više
Prikazana rata odnosi se na maksimalni period otplate. Kalkulator je informativnog karaktera.
* Nakon isteka 5 godina, prelazi se na varijabilnu kamatnu stopu


