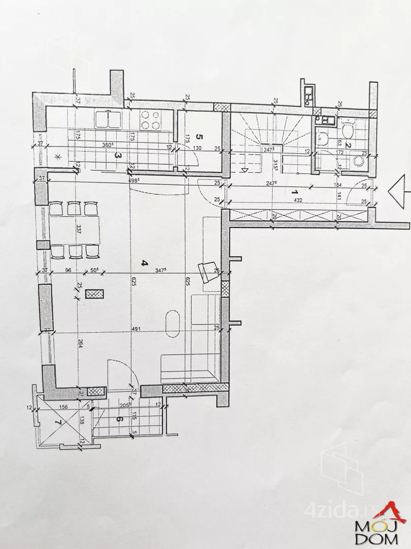
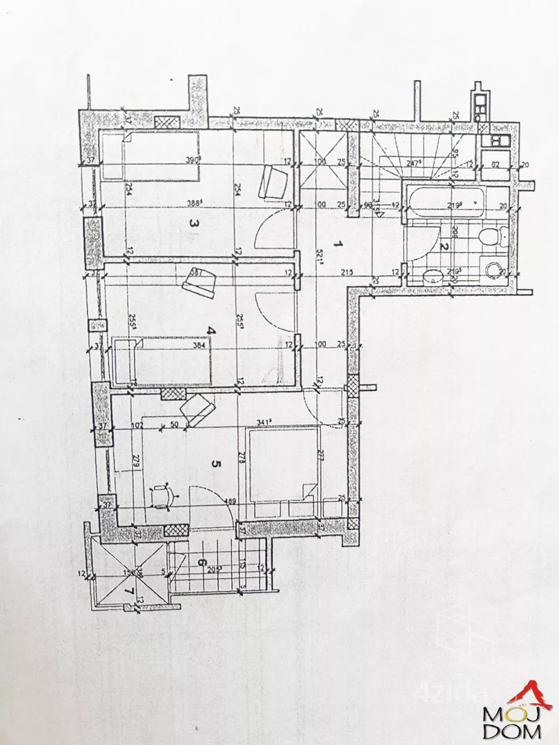
Četvorosoban stan na prodaju, Cara Dušana, 337.840€, 102m²

















































337.840 €
3.312 € / m2
- Stan u zgradi
- Uobičajeno stanje
- Prostorije: terasa
- Uknjiženo
- Oglas oglašava agencija pod reg. brojem 174
- 1 lift
- Godina izgradnje: 2008.
Opis oglasa
Na jednoj od najtraženijih lokacija u Novom Sadu, u ulici Cara Dušana, nalazi se stan koji ne nudi samo kvadraturu, već način života u kojem se prostor, komfor i funkcionalnost savršeno prepliću. Sa svojih 102 m², ovaj četvorosoban duplex predstavlja idealan izbor za one koji žele jasno razdvojene celine za svakodnevni život i privatnost, bez kompromisa u pogledu udobnosti.
Dvoetažna struktura sa punom visinom plafona na oba nivoa, bez kosina, pruža osećaj pravog stana, a ne potkrovlja, dok pažljivo organizovan raspored omogućava prirodnu podelu na dnevnu i noćnu zonu. Takav koncept stanovanja donosi dodatni mir i funkcionalnost, posebno u porodičnom okruženju gde je balans između zajedničkog i privatnog prostora od presudnog značaja.
Stan se prodaje potpuno namešten, sa stilom i merom koja omogućava da se odmah uselite bez dodatnih ulaganja – sve je već pripremljeno za nastavak svakodnevnog života bez čekanja i dodatnih troškova. Sama zgrada odiše kvalitetom i sigurnošću, sa liftom i video nadzorom, uz uredno održavanje koje dodatno potvrđuje vrednost ove nekretnine.
Lokacija je ono što ovu ponudu izdvaja – Cara Dušana je poznata po savršenoj povezanosti sa svim delovima grada, blizini škola, vrtića, prodavnica i svih sadržaja potrebnih za lagodan i kvalitetan život.
Ovo nije samo stan – ovo je prostor u kojem se svakodnevica odvija sa lakoćom.
Za više informacija i zakazivanje prezentacije pozovite
063... (prikaži broj telefona)
Šifra ponude: 1031999
(Moj Dom nekretnine, Novi Sad, Reg. br. 174)
(Moj Dom nekretnine,Novi Sad,Reg.br.174)
*Sačuvaj oglas uz belešku i primaj obaveštenja o njihovom pojeftinjenju ili pojavljivanju sličnih
Prikaz stana na mapi
Parkovi u blizini
- Futoški park14 min
- Limanski park24 min
- Park Bistrica32 min

Obeležja kulture u blizini
- Dvorac Eđšeg5 min
- Jodna Banja6 min
- Galerija Matice srpske7 min

Škole/Fakulteti/Vrtići u blizini
- Osnovna škola (Osnovna škola Vasa Stajić)7 min
- Srednja škola (Medicinska škola 7. april)5 min
- Vrtić (Dečiji vrtić Malo stopalo)5 min
- Fakultet (Pravni fakultet za privredu i pravosuđe Univerzitet Privredna akademija)5 min

- Bolnica (Institut za zdravstvenu zaštitu dece i omladine Vojvodine)13 min
- Klinika (Poliklinika Sons)6 min
- Teretana (Health & Strength Factory Gym)4 min
- Prodavnica (Mikromarket)3 min
- Restoran (Restoran Dvor)4 min
- Kafana (Bratis Pub)11 min
- Taksi stajalište (Gradski Taxi)12 min
- Autobuska stanica (Cara Dušana - Medicinska škola)3 min
- Banka (AIK Banka)6 min
- Pošta (Pošta Novi Sad 21136)6 min
Kontakt oglašivača

Krediti OTP banke
Saznaj više
Prikazana rata odnosi se na maksimalni period otplate. Kalkulator je informativnog karaktera.
* Nakon isteka 5 godina, prelazi se na varijabilnu kamatnu stopu
