Dvoiposoban stan na prodaju, Čalije, 125.500€, 63m²








125.500 €
1.992 € / m2
- Etažno grejanje
- Novo
- Prostorije: kupatilo, terasa
- Oglas oglašava agencija pod reg. brojem 940
- 1 lift
- 1 telefonska linija
Opis oglasa
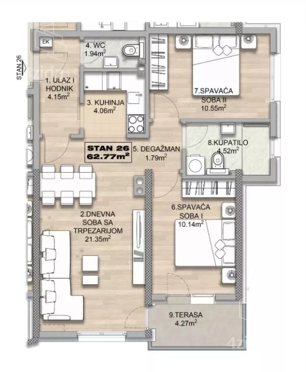
U ponudi je novogradnja smeštena na odličnoj lokaciji u naselju Čalije. Prodaje se dvoiposoban stan površine 62,77m2, na IV spratu, zgrade spratnosti P+4 sa liftom. Sastoji se iz ulaznog hodnika, dnevnog boravka sa kuhinjom i trpezarijom, dve spavaće sobe, kupatila i terase. U gradnji se koriste visokokvalitetni materijali koji su u skladu sa svim evropskim standardima: prozori od poda do plafona u svim jedinicama, kvalitetna aluminijumska stolarija sa troslojnim termo-staklom, video nadzor, kontrolisan pristup zgradi, profesionalno održavanje i 24/7 bezbednost, integrisani smart sistem omogućava upravljanje rasvetom, grejanjem i bezbednošću putem mobilne aplikacije za maksimalnu udobnost i energetsku efikasnost, visokokvalitetna grejna tela sa mogućnošću individualnog podešavanja temperature u svakoj prostoriji, višeslojni parket vrhunskog kvaliteta, prefabrikovani parket sa mogućnošću izbora između 2 modela u dnevnim prostorijama i spavaćim sobama, kupatilo i kuhinja opremljeni keramikom vrhunskog kvaliteta sa mogućnošću izbora između 3 modela, terase sa protivkliznim granitnim pločicama, energetski efikasan sistem grejanja i hlađenja za optimalnu klimu u prostoru tokom cele godine. Postoji mogućnost kupovine parking mesta i to: 10000eur u podzemnom prostoru i ozidana garaža 13000eur. U cenu je uključen PDV i kupci prvog stana imaju pravo na povraćaj PDV-a u iznosu od 10%. Za više informacija o ovoj ili drugim nekretninama i zakazivanje razgledanja kontaktirajte agenta na broj telefona iz oglasa (poziv, sms, viber) ili putem e-maila. Kompletnu ponudu dostupnih nekretnina možete pronaći na našem sajtu. Agencija Proagent nekretnine je upisana u Registru posrednika pod brojem: 940.
*Sačuvaj oglas uz belešku i primaj obaveštenja o njihovom pojeftinjenju ili pojavljivanju sličnih
Prikaz stana na mapi
Parkovi u blizini
- Park Svetog Save40 min
- Park složnih komšija46 min

Obeležja kulture u blizini
- Spomenik borcima na Čegru9 min
- Ranohrišćanska grobnica10 min
- Ranohrišćanska bazilika11 min

Škole/Fakulteti/Vrtići u blizini
- Osnovna škola (Osnovna škola Miroslav Antić)7 min
- Srednja škola (Trgovinska škola Niš)10 min
- Vrtić (Dečiji vrtić Mazza)5 min
- Fakultet (Fakultet za pravne i poslovne studije Dr Lazar Vrkatić)13 min

- Bolnica (Bolnica Đorić)4 min
- Klinika (Poliklinika Bocokić)5 min
- Teretana (Fitness centar TNT Gym)6 min
- Prodavnica (Market Stošić)2 min
- Restoran (Restoran Todor)3 min
- Kafana (Kafana Stari ambar)30 min
- Taksi stajalište (Duga taksi)43 min
- Autobuska stanica (Čalije)4 min
- Banka (Poštanska štedionica)7 min
- Pošta (Pošta Niš 3)9 min
Kontakt oglašivača
Krediti OTP banke
Saznaj više
Prikazana rata odnosi se na maksimalni period otplate. Kalkulator je informativnog karaktera.
* Nakon isteka 5 godina, prelazi se na varijabilnu kamatnu stopu


