Trosoban stan na prodaju, Takovska, 181.700€, 72m²














181.700 €
2.524 € / m2
- Etažno grejanje
- Novo
- Prostorije: kupatilo, terasa
- Opremljenost: interfon
- Oglas oglašava agencija pod reg. brojem 1158
- 1 garažno mesto
- 1 lift
Opis oglasa
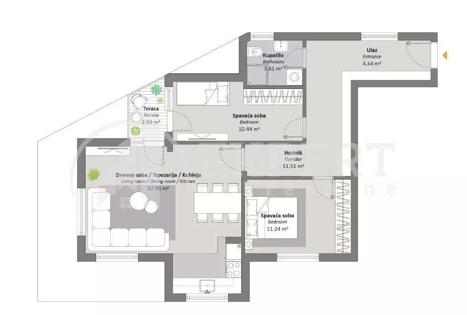
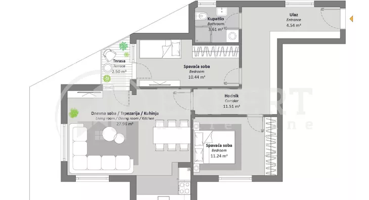
Na prodaju stan u useljivoj novogradnji, Palilula projektovane površine 72 m2. Stan se nalazi na 6. spratu i sastoji se od ulaznog hodnika, dnevne sobe sa trpezarijom i kuhinjom, dve spavaće sobe, kupatila i terase. Nalazi se u stambeno poslovnom kompleksu pr plus 6 plus po koju čini 6 lokala i 28 stambenih jedinica, savremene,visokokvalitetne gradnje, na lokaciji savršenoj za život. Spoljašnji zidovi biće građeni termo blokovima i izolovani kamenom vunom debljine 10 cm, a fasada je kombinacija prirodne cigle, demit i alubond profila. Stolarija je sa troslojnim staklom niskog koeficijenta propustljivosti, zaštićena alu roletnama, dok je unutrašnja stolarija od medijapana. Na podu je predviđen hrastov parket, u kupatilu i kuhinji keramika prve klase, staklene tuš kabine, ugradni vodokotlići, lift je bešuman, dvostrani i ide od podruma. Grejanje je etažno sa kotlom na struju. U podrumu zgrade su garaže do kojih se stiže auto liftom , garaže se prodaju posebno. Zgrada je opremljena video nadzorom, interfonom i svetlima sa senzorom pokreta, alarmom i savremenim protivpožarnim sistemom. Tavanske prostorije nalaze se na 7. spratu i zahvataju 70 posto ukupne krovne površine, tako da je i zadnji sprat u nejvećem delu natkriven i izolovan. Za kupce prve nekretnine postoji mogućnost povratka pdv-a. Ovo je samo deo naše ponude, za više informacija, stojimo vam na raspolaganju.
*Sačuvaj oglas uz belešku i primaj obaveštenja o njihovom pojeftinjenju ili pojavljivanju sličnih
Prikaz stana na mapi
Parkovi u blizini
- Park Čair12 min
- Park heroja NOB-a18 min
- Park složnih komšija25 min

Obeležja kulture u blizini
- Vladičanski dvor6 min
- Donina česma5 min
- Spomenik Stevanu Sremcu i Kalči12 min

Škole/Fakulteti/Vrtići u blizini
- Osnovna škola (Osnovna škola Dositej Obradović)8 min
- Srednja škola (Mašinska škola Niš)18 min
- Vrtić (Dečiji vrtić Meda)3 min
- Fakultet (Univerzitet u Nišu Fakultet sporta i fizičkog vaspitanja)11 min

- Bolnica (Urgentni centar Niš)7 min
- Klinika (Poliklinika Longa Vita)7 min
- Teretana (Centar za rekreaciju Miss Fit Line)5 min
- Prodavnica (IDEA)4 min
- Restoran (Restoran Fidel Gastro)3 min
- Kafana (Pivnica Nemir)6 min
- Taksi stajalište (Bros Taxi Niš)11 min
- Autobuska stanica (Božidarčeva)2 min
- Banka (NLB Komercijalna banka)3 min
- Pošta (Pošta Niš 5)5 min
Kontakt oglašivača
Krediti OTP banke
Saznaj više
Prikazana rata odnosi se na maksimalni period otplate. Kalkulator je informativnog karaktera.
* Nakon isteka 5 godina, prelazi se na varijabilnu kamatnu stopu


