Jednoiposoban stan na prodaju, Čair, 139.280€, 48m²














139.280 €
2.902 € / m2
- Etažno grejanje
- Novo
- Prostorije: kupatilo, terasa
- Oglas oglašava agencija pod reg. brojem 940
- 1 lift
- 1 telefonska linija
Opis oglasa
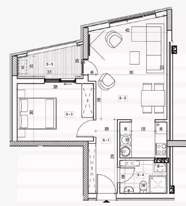
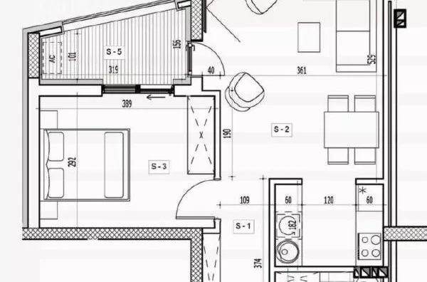
U ponudi je moderno dizajnirana novogradnja na odličnoj lokaciji kod Čaira. Zgrada je spratnosti P+8 sa liftom. Prodaje se jednoiposoban stan 47,86m2, IV sprat. Sastoji se iz ulaznog hodnika, dnevnog boravka sa kuhinjom i trpezarijom, spavaće sobe, kupatila i terase. Stanovi su projektovatni tako da kupcima pružaju ugodnost i udobnost. U gradnji se koriste najkvalitetniji materijali: fasada je izvedena u višeslojnom sistemu sa zidovima od energetskog bloka debljine 25 cm i završnom obradom tipa „Demit“, kao termika u sistemu koristi kamena vuna u debljini od 10 cm, unutrašnja stolarija, sobna vrata, izrađena od visokokvalitetnog furnira kao završnice sa tvrdom ispunom (iverica), spoljna stolarija je od aluminijum, podovi su izvedeni kao plivajući sa ugrađenom zvučnom izolacijom, biće postavljen višeslojni parket, u kupatilu i na terasi biće postavljena granitna keramika, odovi garaže: završna obrada od ferobetona, sanitarija i galanterija: usponski tuš, linijski slivnik, ugradni geberit, klonzolna WC šolja, stakleni paravan, lavabo sa ormarićem - konzolni. Projektovano je ukupno 36 parking mesta, uključujući: podzemnu garažu sa 18 parking mesta, kojoj se pristupa rampom i i 18 parking mesta na otvorenom delu dvorišta. U cenu je uključen PDV i kupci prvog stana imaju pravo na povraćaj PDV-a u iznosu od 10%.Za više informacija o ovoj ili drugim nekretninama i zakazivanje razgledanja kontaktirajte agenta na broj telefona iz oglasa (poziv, sms, viber) ili putem e-maila. Kompletnu ponudu dostupnih nekretnina možete pronaći na našem sajtu. Agencija Proagent nekretnine je upisana u Registru posrednika pod brojem: 940.
*Sačuvaj oglas uz belešku i primaj obaveštenja o njihovom pojeftinjenju ili pojavljivanju sličnih
Prikaz stana na mapi
Parkovi u blizini
- Park Čair1 min
- Park složnih komšija13 min
- Park heroja NOB-a17 min

Obeležja kulture u blizini
- Zgrada Pasterovog zavoda6 min
- Spomenik oslobodiocima Niša7 min
- Spomenik Stevanu Sremcu i Kalči8 min

Škole/Fakulteti/Vrtići u blizini
- Osnovna škola (Osnovna škola Vožd Karađorđe)6 min
- Srednja škola (Privatna srednja škola Prokopović)3 min
- Vrtić (Dečiji vrtić Millhouse kids)5 min
- Fakultet (Fakultet za pravo, bezbednost i menadžment Konstantin Veliki)8 min

- Bolnica (Urgentni centar Niš)4 min
- Klinika (Poliklinika Human)6 min
- Teretana (Gym Town 2)7 min
- Prodavnica (IDEA)6 min
- Restoran (Restoran Stadion)1 min
- Kafana (Pivnica Berta)7 min
- Taksi stajalište (Bros Taxi Niš)17 min
- Autobuska stanica (Tehnogas)5 min
- Banka (AIK Banka)7 min
- Pošta (Pošta Niš 7)7 min
Kontakt oglašivača
Krediti OTP banke
Saznaj više
Prikazana rata odnosi se na maksimalni period otplate. Kalkulator je informativnog karaktera.
* Nakon isteka 5 godina, prelazi se na varijabilnu kamatnu stopu


