Dvosoban stan na prodaju, Bulevar Patrijarha Pavla (Somborski Bulevar), 135.800€, 46m²


135.800 €
2.952 € / m2
- Grejanje na gas
- U izgradnji
- Prostorije: terasa
- Oglas oglašava agencija pod reg. brojem 1781
- 1 lift
Opis oglasa
Dvosoban stan u izgradnji – Bulevar patrijarha Pavla
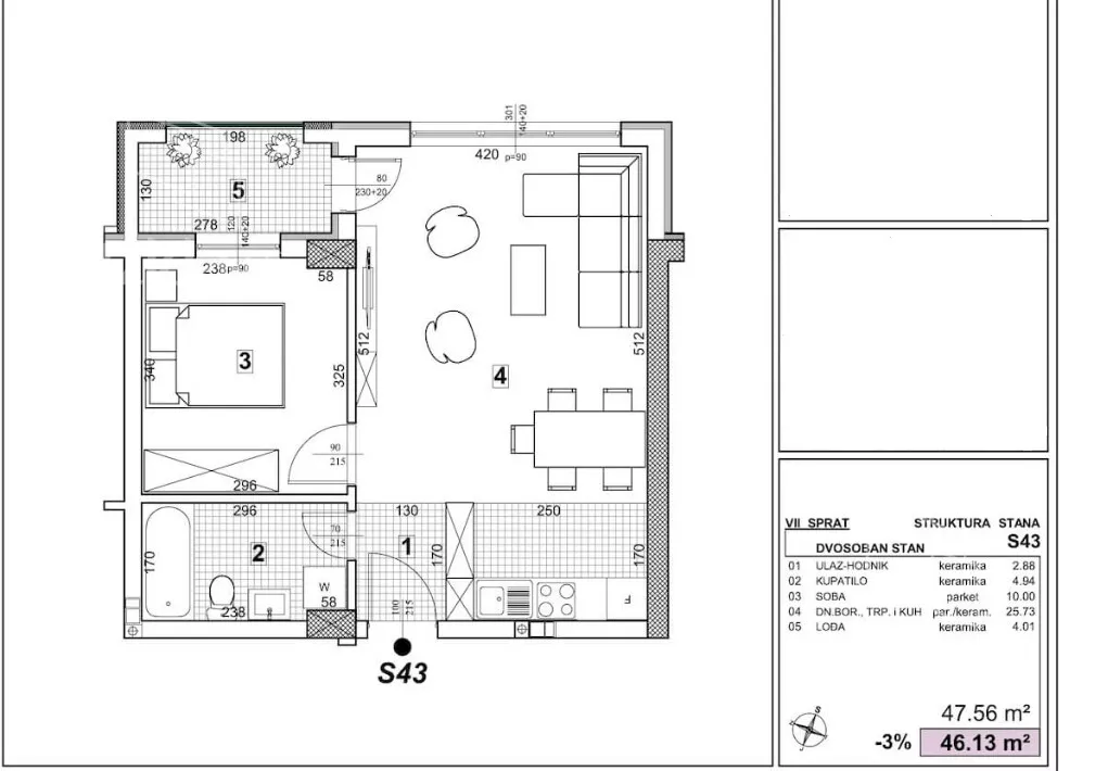
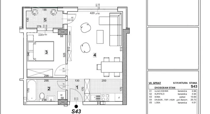
Funkcionalan dvosoban stan površine 46 m².
Struktura: dnevni boravak sa kuhinjom i trpezarijom, spavaća soba, kupatilo, hodnik i terasa.
Stan je svetao, dobro organizovan i idealan kako za život, tako i za investiciju.
Odlična lokacija, u blizini svih sadržaja potrebnih za svakodnevni život.
Planiran završetak radova druga polovina 2027. god.
- Navedena cena stana je za etapno plaćanja po dinamici i stepenu izgradjenosti objekta.
- Cena stana za kupovinu preko stambenog kredita: 141.100 Eur
- Kupci prve nekretnine imaju pravo na povrat PDV-a.
- Navedena cena je sa uračunatom agencijskom provizijom 3%.
Za sve dodatne informacije i dogovor oko razgledanja stana, kontaktirajte nas na telefon tel: +38... (prikaži broj telefona) , Select Nekretnine, Registar posrednika br. 1781.
*Sačuvaj oglas uz belešku i primaj obaveštenja o njihovom pojeftinjenju ili pojavljivanju sličnih
Prikaz stana na mapi
Parkovi u blizini
- Park Bistrica24 min
- Futoški park29 min
- Limanski park38 min

Obeležja kulture u blizini
- Jodna Banja8 min
- Galerija Matice srpske8 min
- Dvorac Eđšeg8 min

Škole/Fakulteti/Vrtići u blizini
- Osnovna škola (Osnovna škola Jožef Atila)12 min
- Srednja škola (Gimnazija Laza Kostić)22 min
- Vrtić (Dečiji vrtić Mali princ)2 min
- Fakultet (Protestantski teološki fakultet)5 min

- Bolnica (Ginekološka bolnica GINS)3 min
- Klinika (Poliklinika Consilium)9 min
- Teretana (Fitness klub Addiction)4 min
- Prodavnica (Market M)manje od 1 min
- Restoran (Restoran Picante)2 min
- Kafana (Kafanica Kod Dače)4 min
- Taksi stajalište (Taxi prevoz Novi Sad)16 min
- Autobuska stanica (Bul. patrijarha Pavla - Ilirska)2 min
- Banka (Erste Bank Ekspres ekspozitura)4 min
- Pošta (Pošta Novi Sad 21107)2 min
Kontakt oglašivača
Krediti OTP banke
Saznaj više
Prikazana rata odnosi se na maksimalni period otplate. Kalkulator je informativnog karaktera.
* Nakon isteka 5 godina, prelazi se na varijabilnu kamatnu stopu


