Dvosoban stan na prodaju, Bulevar oslobođenja, 169.000€, 70m²










169.000 €
2.414 € / m2
- Stan u zgradi
- Podno grejanje
- Novo
- Prostorije: terasa
- Opremljenost: Prazno - internet, interfon, klima, kanalizacija
- Uknjiženo
- Oglas oglašava agencija
- 1 garažno mesto
- 1 parking mesto
- 1 lift
- Kanalizacija
- Zgrada poseduje: video nadzor
- Kablovska
- 1 telefonska linija
Opis oglasa
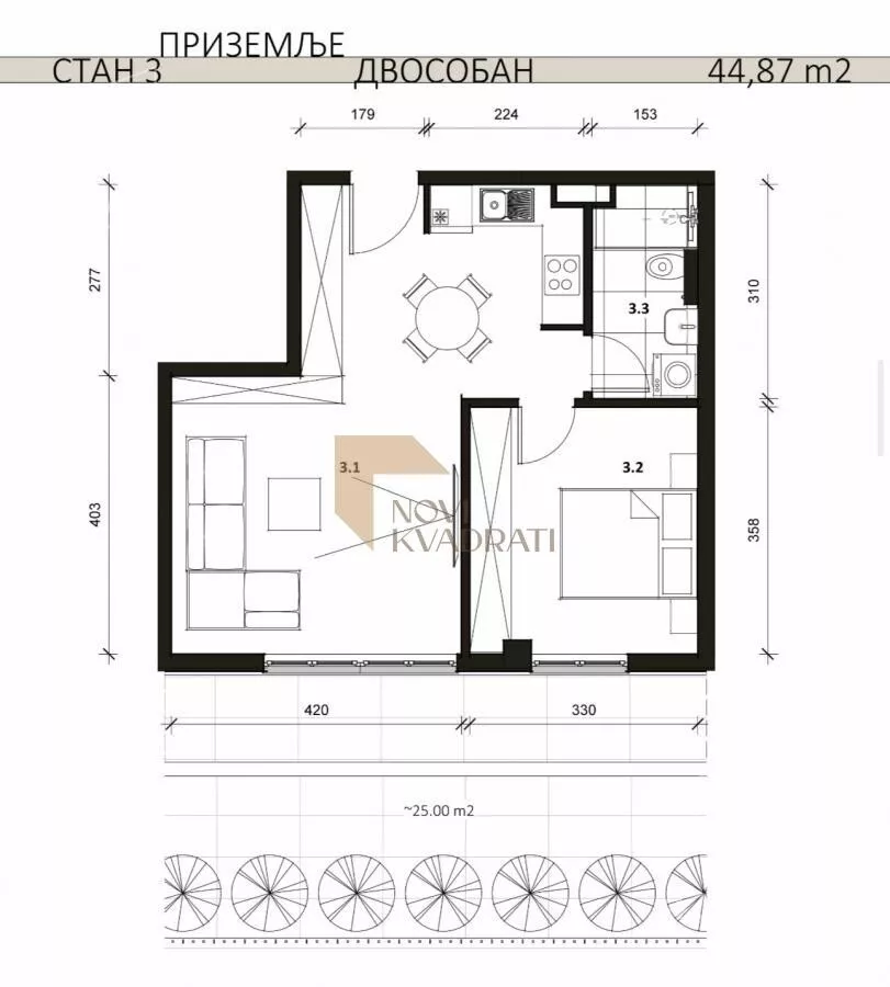
U ponudi je funkcionalan dvosoban stan površine 45m² sa privatnim dvorištem od 25m², smešten u prizemlju moderne novogradnje na izuzetnoj lokaciji na Voždovcu, u neposrednoj blizini ulice Vojvode Stepe i Bulevara oslobođenja.
Zgrada je uvučena u mirnu i tihu ulicu, što pruža idealan balans između gradske dinamike i privatnosti.
Lokacija je jedna od najtraženijih u ovom delu grada, sa svim sadržajima na dohvat ruke:
• Saobraćajni fakultet i FON
• Studentski dom
• Banjica šuma i parkovi
• Sportski centri
• Pijaca, marketi, restorani i kafići
Odlična povezanost sa svim delovima grada putem javnog prevoza i brz pristup autoputu.
⸻
Raspored i prednosti stana:
• Dnevni boravak sa kuhinjom i trpezarijom
• Spavaća soba
• Kupatilo
• Direktan izlaz u privatno dvorište
Dvorište predstavlja posebnu vrednost ovog stana – svaki stan ima svoj deo dvorišta u širini stana, čime se dobija dodatni prostor za uživanje, odmor ili druženje.
U cenu je uključeno:
• Kompletna termo i hidro izolacija dvorišta
• Zidana ograda između stanova i ograđivanje parcele
• Završna obloga – antiklizna keramika
• Montažno stepenište za direktan izlaz u dvorište
Prava retkost na tržištu – stan sa komforom kuće u urbanoj sredini.
⸻
Kvalitet gradnje i opreme:
• Sigurnosna ulazna vrata
• Aluminijumska stolarija visokog kvaliteta
• Italijanska i španska keramika
• Sanitarije „Villeroy & Boch“
• Baterije „Hansgrohe“
• Višeslojni parket (tarket)
• Podno grejanje na električni kotao
• Lift „OTIS“
• Video nadzor i interfon
• Klima uređaji
⸻
Ova nekretnina predstavlja odličan izbor kako za stanovanje, tako i kao investicija na lokaciji koja dugoročno drži vrednost.
⸻
Cena stana: 169.000 € + PDV
Garažno mesto: 27.000 € + PDV
Moguć povrat PDV-a za kupce prve nekretnine
⸻
Posrednička nadoknada je u skladu sa opštim uslovima poslovanja posrednika "Novi Kvadrati" Doo.
Agencija Novi Kvadrati
Zlatiborska 43, Beograd
Reg. br. posrednika: 1872
Radimo 7 dana u nedelji
*Sačuvaj oglas uz belešku i primaj obaveštenja o njihovom pojeftinjenju ili pojavljivanju sličnih
Prikaz stana na mapi
Parkovi u blizini
- Banjička šuma5 min
- Park Jove Ilića8 min
- Bajronov park19 min

Obeležja kulture u blizini
- Osnovna škola Kralj Petar II Karađorđević8 min
- Spomenik heroju Milanu Tepiću8 min
- Spomenik Franše Depereu9 min

Škole/Fakulteti/Vrtići u blizini
- Osnovna škola (Osnovna škola Filip Filipović)5 min
- Srednja škola (Srednja škola Vasa Stajić)12 min
- Vrtić (Dečiji vrtić Medin kutak)3 min
- Fakultet (Visoka škola elektrotehnike i računarstva strukovnih studija)7 min

- Bolnica (Opšta bolnica Medicinski sistem Beograd MSB)8 min
- Klinika (Poliklinika Nera)8 min
- Teretana (Fitnes Klub A)8 min
- Prodavnica (Minimarket New Time)1 min
- Restoran (Restoran Toscana mia)5 min
- Kafana (Pivnica Drvce Kiselo 2002)9 min
- Taksi stajalište (Taxi stanica)7 min
- Autobuska stanica (Mosorska)1 min
- Tramvajska stanica (Visoka Škola elektrotehnike)6 min
- Trolejbuska stanica (Paunova)10 min
- Banka (Erste Bank)10 min
- Pošta (Pošta Beograd 39)5 min
Kontakt oglašivača
Krediti OTP banke
Saznaj više
Prikazana rata odnosi se na maksimalni period otplate. Kalkulator je informativnog karaktera.
* Nakon isteka 5 godina, prelazi se na varijabilnu kamatnu stopu


