Troiposoban stan na prodaju, Episkopa Save, 145.820€, 73m²










145.820 €
1.998 € / m2
- Stan u zgradi
- Grejanje na gas
- U izgradnji
- Prostorije: terasa
- U procesu uknjižavanja
- Oglas oglašava firma
- 1 lift
Opis oglasa
Na prodaju troiposoban stan na atraktivnoj lokaciji, idealan kako za porodično stanovanje, tako i kao investicija za izdavanje. Nekretnina se nalazi u mirnom i uređenom delu grada, u blizini svih važnih sadržaja - velikih marketa, fakulteta, škola, vrtića, javnog prevoza i drugih bitnih objekata.
Lokacija - Bubanj, Episkopa Save.
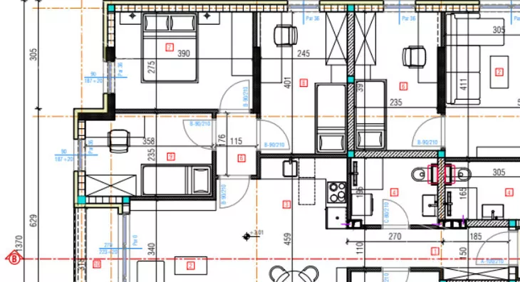
Površina - 50.15m2.
Struktura stana - hodnik, dnevni boravak, kuhinja, kupatilo,toalet,3 spavaće sobe i terasa.
Nalazi se na prvom spratu od ukupno pet u zgradi sa liftom.
Grejanje je podno, na gas.
Rok završetka - 04.2027.
Cena stana je 2200€+pdv/m2.(za koji je moguc povrat prilikom kupovine prve nekretnine)
Ukupna cena stana je 160402e sa PDV-om.
Uz stan postoji mogućnost kupovine garažnog i parking mesta.
Cena garaže je 14.400e, a parkinga 10.200e.
Za dodatne informacije, kao i za zakazivanje termina za razgledanje možete nas kontaktirati.
*Sačuvaj oglas uz belešku i primaj obaveštenja o njihovom pojeftinjenju ili pojavljivanju sličnih
Prikaz stana na mapi
Parkovi u blizini
- Mali park16 min
- Kreativni park Kragujevac19 min
- Veliki park19 min

Obeležja kulture u blizini
- Kuća Svetozara Markovića5 min
- Spomenik palim Šumadincima7 min
- Zgrada Okružnog načelstva i Suda7 min

Škole/Fakulteti/Vrtići u blizini
- Osnovna škola (Škola za osnovno i srednje obrazovanje Vukašin Marković)4 min
- Srednja škola (Druga kragujevačka gimnazija)4 min
- Vrtić (Dečiji vrtić Crvenkapa)5 min
- Fakultet (Univerzitet u Kragujevcu Fakultet medicinskih nauka)4 min

- Bolnica (Ginekološka bolnica Nikolov)4 min
- Klinika (Poliklinika Tesla Medic)8 min
- Teretana (Fitness centar Alexandar)10 min
- Prodavnica (IDEA)2 min
- Restoran (Kafana Brvnara)3 min
- Kafana (Kafana Dajte vina, hoću lom)9 min
- Autobuska stanica (Uzor)1 min
- Banka (Poštanska štedionica)10 min
- Pošta (Pošta Kragujevac 17)5 min
Kontakt oglašivača
Krediti OTP banke
Saznaj više
Prikazana rata odnosi se na maksimalni period otplate. Kalkulator je informativnog karaktera.
* Nakon isteka 5 godina, prelazi se na varijabilnu kamatnu stopu

