Dvoiposoban stan na prodaju, Episkopa Save, 115.148€, 52m²










115.148 €
2.214 € / m2
Za ovaj oglas se neko interesovao. Pozovi ranije kako ne bi propustio priliku.
- Stan u zgradi
- Grejanje na gas
- U izgradnji
- Prostorije: kupatilo, kuhinja, terasa
- U procesu uknjižavanja
- Oglas oglašava firma
- 1 lift
Opis oglasa
Na prodaju dvoiposoban stan na atraktivnoj lokaciji, idealan kako za porodično stanovanje, tako i kao investicija za izdavanje. Nekretnina se nalazi u mirnom i uređenom delu grada, u blizini svih važnih sadržaja - velikih marketa, fakulteta, škola, vrtića, javnog prevoza i drugih bitnih objekata.
Lokacija - Bubanj, Episkopa Save.
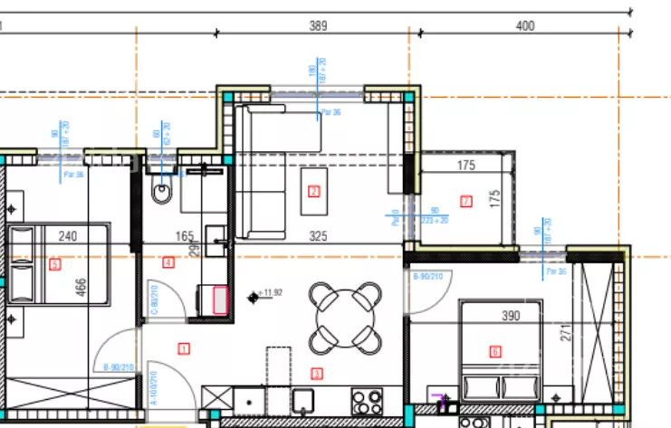
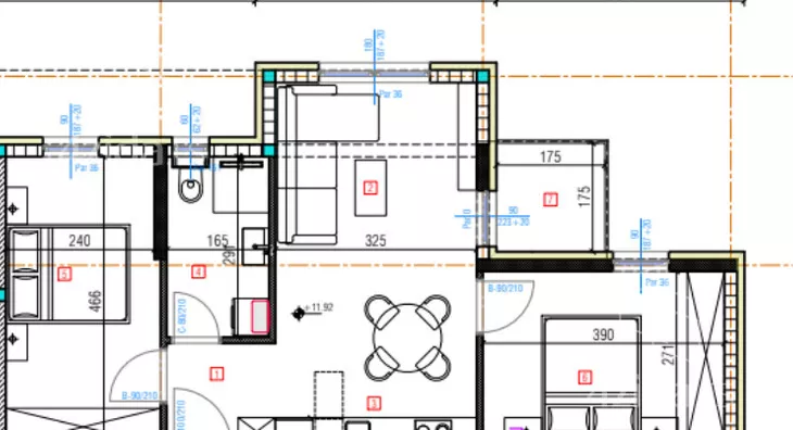
Površina - 52.34m2.
Struktura stana - hodnik, dnevni boravak, kuhinja, kupatilo,2 spavaće sobe i terasa.
Nalazi se na cetvrtom spratu od ukupno pet u zgradi sa liftom.
Grejanje je podno, na gas.
Rok završetka - 04.2027.
Cena stana je 2200€+pdv/m2.
Ukupna cena stana je 126663e sa PDV-om(za koji je moguc povrat prilikom kupovine prvog stana)
Uz stan postoji mogućnost kupovine garažnog i parking mesta.
Cena garaže je 14.400e, a parkinga 10.200e.
Za dodatne informacije, kao i za zakazivanje termina za razgledanje možete nas kontaktirati.
*Sačuvaj oglas uz belešku i primaj obaveštenja o njihovom pojeftinjenju ili pojavljivanju sličnih
Prikaz stana na mapi
Parkovi u blizini
- Mali park16 min
- Kreativni park Kragujevac19 min
- Veliki park19 min

Obeležja kulture u blizini
- Kuća Svetozara Markovića5 min
- Spomenik palim Šumadincima7 min
- Zgrada Okružnog načelstva i Suda7 min

Škole/Fakulteti/Vrtići u blizini
- Osnovna škola (Škola za osnovno i srednje obrazovanje Vukašin Marković)4 min
- Srednja škola (Druga kragujevačka gimnazija)4 min
- Vrtić (Dečiji vrtić Crvenkapa)5 min
- Fakultet (Univerzitet u Kragujevcu Fakultet medicinskih nauka)4 min

- Bolnica (Ginekološka bolnica Nikolov)4 min
- Klinika (Poliklinika Tesla Medic)8 min
- Teretana (Fitness centar Alexandar)10 min
- Prodavnica (IDEA)2 min
- Restoran (Kafana Brvnara)3 min
- Kafana (Kafana Dajte vina, hoću lom)9 min
- Autobuska stanica (Uzor)1 min
- Banka (Poštanska štedionica)10 min
- Pošta (Pošta Kragujevac 17)5 min
Kontakt oglašivača
Za ovaj oglas se neko interesovao. Pozovi ranije kako ne bi propustio priliku.
Krediti OTP banke
Saznaj više
Prikazana rata odnosi se na maksimalni period otplate. Kalkulator je informativnog karaktera.
* Nakon isteka 5 godina, prelazi se na varijabilnu kamatnu stopu

