Troiposoban stan na prodaju, Indire Gandi, 240.000€, 96m²
































240.000 €
2.500 € / m2
- Stan u zgradi
- Centralno grejanje
- Uobičajeno stanje
- Prostorije: terasa
- Opremljenost: Prazno - interfon, klima
- Uknjiženo
- Oglas oglašava agencija pod reg. brojem 1000
- 1 lift
- Godina izgradnje: 1980.
- Zgrada poseduje: podrum
Opis oglasa
Voždovac, Braće Jerković - Indire Gandi
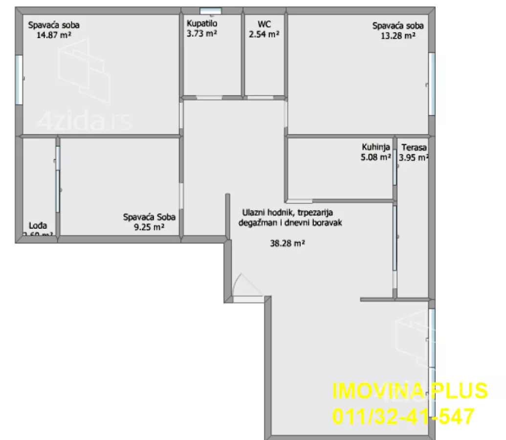
3.5, 96m2 (dve terase 5m2), 6/7, CG, lift, podrum, interfon, klima.
Troiposoban stan u lepšem delu naselja Braće Jerković, u novijim zgradama. Trostrano orijentisan, u izvornom stanju.
Neposredna blizina škole, vrtića, marketa, stajališta gradskog prevoza 18, 26, 50, 29.
Prostorije: ulazni hodnik, degažman, tri spavaće sobe, dva mokra čvora, dnevni boravak, trpezarija, odvojena kuhinja i dve terase.
Uknjižen na 93m2, na prethodnog vlasnika.
Agent: Zora Đenić 064... (prikaži broj telefona)
Agencijska provizija je 2% i uključuje:
- pokazivanje nekretnine i informacije vezane za mikrolokaciju
- pravnu sigurnost uz tim advokata pri izradi Predugovora i Ugovora, overu kod Javnog beležnika (troškove overe kod notara plaća kupac)
- odjavu prodavca - prijavu kupca (porez na prenos apsolutnih prava i porez na imovinu, infostan, struja, telefon, kablovska)
*Sačuvaj oglas uz belešku i primaj obaveštenja o njihovom pojeftinjenju ili pojavljivanju sličnih
Prikaz stana na mapi
Parkovi u blizini
- Park Jove Ilića32 min
- Banjička šuma36 min
- Park Šumice36 min

Obeležja kulture u blizini
- Rodna kuća vojvode Stepe Stepanovića13 min
- Kuća Flašar13 min
- Stara mehana u Kumodražu14 min

Škole/Fakulteti/Vrtići u blizini
- Osnovna škola (Osnovna škola Đura Daničić)6 min
- Srednja škola (Škola za negu lepote)11 min
- Vrtić (Dečiji vrtić Plavi čuperak)4 min
- Fakultet (Univerzitet Singidunum)11 min

- Bolnica (Specijalna bolnica za cerebralnu paralizu i razvojnu neurologiju)9 min
- Klinika (Poliklinika Nera)12 min
- Teretana (Joga studio Antara)6 min
- Prodavnica (Šumadija Market)4 min
- Restoran (Kafe & Restoran Rich)3 min
- Kafana (Etno kafanica Bioskop)4 min
- Taksi stajalište (Taxi stanica)7 min
- Autobuska stanica (Zaplanjska)1 min
- Tramvajska stanica (Saobraćajni Fakultet)29 min
- Trolejbuska stanica (Vojislava Ilića)7 min
- Banka (Addiko Bank)5 min
- Pošta (Pošta Beograd 64)7 min
Kontakt oglašivača
Krediti OTP banke
Saznaj više
Prikazana rata odnosi se na maksimalni period otplate. Kalkulator je informativnog karaktera.
* Nakon isteka 5 godina, prelazi se na varijabilnu kamatnu stopu






















