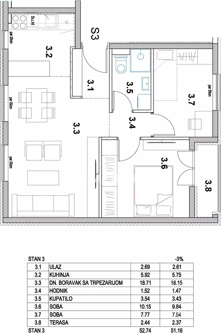
Trosoban stan na prodaju, Borča, 107.436€, 51m²






107.436 €
2.107 € / m2
Za ovaj oglas se neko interesovao. Pozovi ranije kako ne bi propustio priliku.
- Etažno grejanje
- Novo
- Prostorije: kupatilo
- Oglas oglašava agencija pod reg. brojem 1347
- 1 telefonska linija
Opis oglasa
Luksuzna novogradnja u novom naselju koja se gradi u Borči. Cena je sa pdv-om i u cenu je uračunato pripadajuće parking mesto. Zgrade su izuzetnog kvaliteta, energetski visokoefikasne. Stan je dvostrano orijentisan, opremljen višeslojnim parketom, PVC stolarijom, vrhunskom granitnom keramikom i etažnim grejanjem. Projekat čitavog naselja je koncipiran za udoban život i da odgovori potrebama modernog života. Sa investitorom navedenog projekta imamo dugoročnu saradnju i predstavlja odgovornog i pouzdanog partnera.
Bez provizije za kupca.
Kontakt telefon 060... (prikaži broj telefona) . Hvala Vam na pregledu oglasa. Broj agencije u Registru posrednika 1347. Mapa je informativnog karaktera, ne prikazuje tačnu lokaciju nekretnine.
*Sačuvaj oglas uz belešku i primaj obaveštenja o njihovom pojeftinjenju ili pojavljivanju sličnih
Prikaz stana na mapi
Parkovi u blizini
- Park Mitićeva rupa6 min
- Park Mike Oklopa7 min
- Park Mali Tašmajdan8 min

Obeležja kulture u blizini
- Genčićeva kuća2 min
- Kuća pukovnika Elezovića5 min
- Spomenik Mihajlu Pupinu7 min

Škole/Fakulteti/Vrtići u blizini
- Osnovna škola (Osnovna škola Sveti Sava)6 min
- Srednja škola (Savremena gimnazija)6 min
- Vrtić (Dečiji vrtić studio za edukaciju Moj mali svet)4 min
- Fakultet (Centar Osteopatija)6 min

- Bolnica (Neurološka bolnica Affidea)10 min
- Klinika (Diva estetic dr Bogdanović - dermatološka ordinacija)5 min
- Teretana (Maestral sol - studio za poboljšanje fizičkog stanja i raspoloženja)5 min
- Prodavnica (Aroma market)2 min
- Restoran (Restoran Na ćošku)2 min
- Kafana (Kafana Melem za dušu)2 min
- Taksi stajalište (Taxi stanica)6 min
- Autobuska stanica (Pravni fakultet)4 min
- Tramvajska stanica (Pravni fakultet)6 min
- Trolejbuska stanica (Trg Slavija)7 min
- Banka (Eurobank Direktna)8 min
- Pošta (Pošta Beograd 5)7 min
Kontakt oglašivača
Za ovaj oglas se neko interesovao. Pozovi ranije kako ne bi propustio priliku.
Krediti OTP banke
Saznaj više
Prikazana rata odnosi se na maksimalni period otplate. Kalkulator je informativnog karaktera.
* Nakon isteka 5 godina, prelazi se na varijabilnu kamatnu stopu


