Troiposoban stan na prodaju, Ovčanski put, 185.840€, 92m²




185.840 €
2.020 € / m2
Za ovaj oglas se neko interesovao. Pozovi ranije kako ne bi propustio priliku.
- Etažno grejanje
- Novo
- Prostorije: terasa
- Opremljenost: Prazno - interfon
- Oglas oglašava agencija pod reg. brojem 1308
- 1 parking mesto
- 1 telefonska linija
Opis oglasa
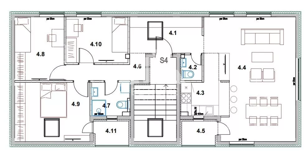
3.5, 92,92m2, terasa, 2/2, EG, telefon, interfon, parking mesto. Građevinska dozvola.
🏡 Prodaja stana – Borča, Ovčanski put
U ponudi moderan troiposoban stan od 92,92m² u kvalitetnoj novogradnji, smešten u mirnom i planski uređenom kompleksu zatvorenog tipa.
✨ Osnovne karakteristike:
Struktura: 3.5
Površina: 92,92m²
Terasa
U cenu uključeno parking mesto
Novogradnja
📍 Lokacija:
Stan se nalazi na odličnoj lokaciji u Borči, u neposrednoj blizini Zrenjaninskog puta, što omogućava brzu povezanost sa ostatkom grada.
🏢 Kompleks:
Sastoji se od 14 lamela
Zatvoren tip – sigurnost i privatnost
Projektovan za miran, porodičan život i osećaj zajednice
🔥 Grejanje i oprema:
Podno grejanje
Klima uređaj
Energetski efikasan objekat
Stanovi do 80m² – grejanje na električne kotlove
Stanovi preko 80m² – toplotne pumpe (voda–vazduh)
🌿 Ambijent:
Kompleks pruža idealan balans između urbanog života i mira – savršen za porodice i sve koji žele kvalitetan i harmoničan prostor za život.
Cena je sa uračunatim PDV. Mogućnost povrata za kupca prvog stana.
Useljivo sredinom 2027.godine. U ponudi stanovi različitih struktura i kvadratura.
📞 Za više informacija i zakazivanje gledanja, kontaktirajte nas na broj telefona 064... (prikaži broj telefona)
Broj u registru posrednika 1308
Agencijska provizija 2%
*Sačuvaj oglas uz belešku i primaj obaveštenja o njihovom pojeftinjenju ili pojavljivanju sličnih
Prikaz stana na mapi
Obeležja kulture u blizini
- Fontana Mike Alasa19 min
- Leopoldova kapija20 min
- Vidin kapija21 min

Škole/Fakulteti/Vrtići u blizini
- Osnovna škola (Osnovna škola Kraljica Marija)7 min
- Srednja škola (Poljoprivredna škola PK Beograd)8 min
- Vrtić (Dečiji vrtić Pačija škola)4 min
- Fakultet (Univerzitet u Beogradu Pravoslavni bogoslovski fakultet)14 min

- Bolnica (Bolnica Sirius Medical)12 min
- Klinika (Naša poliklinika Dr Rodoljub Ristić)15 min
- Teretana (Fitnes klub Doctor Feelgood)7 min
- Prodavnica (Shorty Market)2 min
- Restoran (Restoran T6 Limited)24 min
- Kafana (Pivnica Hogar)38 min
- Taksi stajalište (Taxi stanica)49 min
- Autobuska stanica (Efeska)manje od 1 min
- Banka (Raiffeisen Bank)9 min
- Pošta (Pošta Ovča)7 min
Kontakt oglašivača
Za ovaj oglas se neko interesovao. Pozovi ranije kako ne bi propustio priliku.
Krediti OTP banke
Saznaj više
Prikazana rata odnosi se na maksimalni period otplate. Kalkulator je informativnog karaktera.
* Nakon isteka 5 godina, prelazi se na varijabilnu kamatnu stopu


