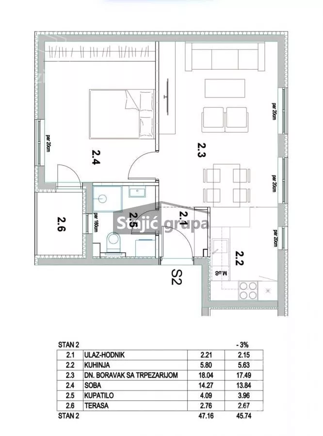
Jednoiposoban stan na prodaju, Ovčanski put, 96.054€, 45m²








96.054 €
2.135 € / m2
- Stan u zgradi
- Etažno grejanje
- Novo
- Prostorije: terasa
- Oglas oglašava agencija pod reg. brojem 1984
- 1 garažno mesto
- 1 parking mesto
- Godina izgradnje: 2026.
Opis oglasa
U prilici smo da vam ponudimo stanove svih struktura u novom naselju koje se gradi u Borči.
Naselje izlazi na dve ulice Ovčanski put i i Kumaničku. U neposrednoj blizini je gradski prevoz, škola, vrtić, više marketa, apoteka kao i svi ostali sadržaji koji olakšavaju svakodnevan život.
Naselje će imati ukupno 14 lamela, i uz svaki stan u cenu je uračunato pripadajuće parking mesto.
Zgrade će biti izgrađene od najkvalitetnijih materijala. Energetski efikasne, sa etažnim grejanjem. Podovi će biti obloženi tarket parketom S klase, keramika I klase. Svaki stan ima svoju klimu.
Završetak radova do sredina 2027.godine.
Moguća je kupovina na kredit. Za kupce prvog stana na teritoriji Republike Srbije povraćaj PDV-a.
U cenu stana je uračunat PDV.
Za keš kupce moguće sukcesivno plaćanje koje prati stepen izgradjenosti. Takodje povraćaja PDV-a.
Podne i zidne obloge
• Višeslojni parket (Tarkett ili ekvivalent)
• Lajsne u tonu parketa
• Granitna keramika I klase
• Keramika po izboru (uz eventualne doplate ukoliko izbor probija budžet)
• Keramika u kuhinji
• Rasveta uključuje plafonsku rasvetu u kupatilima i na terasama
2) Stolarija i vrata
• Spoljna stolarija: PVC 5-komorna, antracit obostrano, dvoslojno staklo
• ALU roletne
• Ulazna vrata: sigurnosna / blind
• Unutrašnja (sobna) vrata: medijapan
3) Kupatila i sanitarije
• Sanitarija: uvozna, I klasa, EU standard
• Tuš baterije i slavine: Hertz ili brend istog kvaliteta
4) Grejanje i klimatizacija
• Podno grejanje
• Zasebni elektrokotao po stanu (stanovi do 80 m²)
• Toplotna pumpa vazduh–voda (stanovi preko 80 m²)
• Klima uređaj: Midea ili sličan rang, 1 kom po stanu (12.000 BTU)
5) Fasada i izolacija
• Spoljni zidovi: klima blok 20 cm
• Termoizolacija: stiropor 10 cm
• Završna fasada: bavalit, svetla boja
6) Krov i krovni prozori
• Krovni prozori: Velux,Fakro ili slican kvalitet
• Krovni pokrivač: ravni falcovani lim, antracit
7) Metalni elementi
• Zaštitne ograde balkona: visina 110 cm, crna/antracit
8) Zajedničke površine
• Stepenište: granitna keramika I klase
9) Spoljno uređenje
• Parking mesta: 2,5 × 5,0 m na raster plocama
• Zelenilo: trava + lovor višnja
Bez provizije za kupce.
*Sačuvaj oglas uz belešku i primaj obaveštenja o njihovom pojeftinjenju ili pojavljivanju sličnih
Prikaz stana na mapi
Obeležja kulture u blizini
- Tripod14 min
- Kuća Milutina Milankovića18 min
- Spomenik despotu Stefanu Lazareviću18 min

Škole/Fakulteti/Vrtići u blizini
- Osnovna škola (Osnovna škola Kraljica Marija)4 min
- Srednja škola (Poljoprivredna škola PK Beograd)11 min
- Vrtić (Dečiji vrtić Pačija škola)5 min
- Fakultet (Visoka škola za poslovnu ekonomiju i preduzetništvo)15 min

- Bolnica (Bolnica Sirius Medical)11 min
- Klinika (Naša poliklinika Dr Rodoljub Ristić)19 min
- Teretana (Fitness klub Milenijum)7 min
- Prodavnica (Prodavnica Mega Sunce)14 min
- Restoran (Restoran T6 Limited)9 min
- Autobuska stanica (Agro-Koka)2 min
- Banka (Banca Intesa)6 min
- Pošta (Pošta Ovča)22 min
Kontakt oglašivača
Krediti OTP banke
Saznaj više
Prikazana rata odnosi se na maksimalni period otplate. Kalkulator je informativnog karaktera.
* Nakon isteka 5 godina, prelazi se na varijabilnu kamatnu stopu


