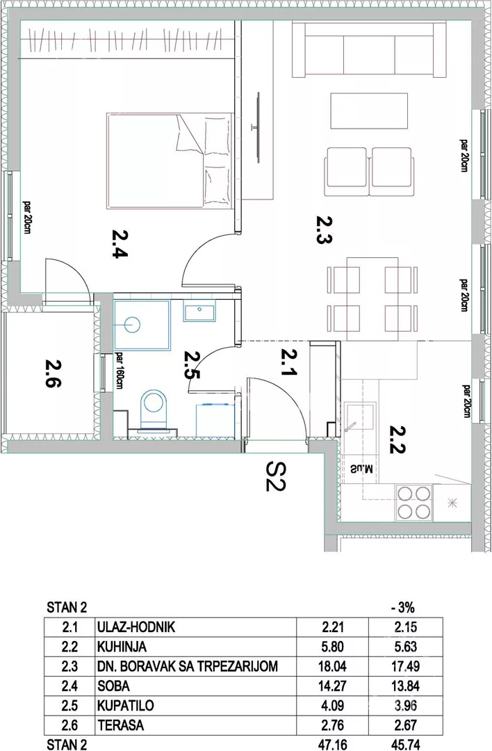
Dvosoban stan na prodaju, Put za Ovču, 96.054€, 45m²










96.054 €
2.135 € / m2
- Etažno grejanje
- Prostorije: kupatilo, terasa
- Opremljenost: Prazno - klima
- Oglas oglašava agencija pod reg. brojem 1347
- 1 parking mesto
- 1 telefonska linija
Opis oglasa
Luksuzna novogradnja u novom naselju koja se gradi u Borči. Cena je sa pdv-om i u cenu je uračunato pripadajuće parking mesto. Zgrade su izuzetnog kvaliteta, energetski visokoefikasne. Stan je dvostrano orijentisan, opremljen višeslojnim parketom, PVC stolarijom, vrhunskom granitnom keramikom i etažnim grejanjem. Projekat čitavog naselja je koncipiran za udoban život i da odgovori potrebama modernog života. Sa investitorom navedenog projekta imamo dugoročnu saradnju i predstavlja odgovornog i pouzdanog partnera.
Bez provizije za kupca.
Kontakt telefon 060... (prikaži broj telefona) . Hvala Vam na pregledu oglasa. Broj agencije u Registru posrednika 1347. Mapa je informativnog karaktera, ne prikazuje tačnu lokaciju nekretnine.
*Sačuvaj oglas uz belešku i primaj obaveštenja o njihovom pojeftinjenju ili pojavljivanju sličnih
Prikaz stana na mapi
Obeležja kulture u blizini
- Fontana Mike Alasa24 min
- Spomenik Menora u plamenu26 min
- Česma Udruženja svih etničkih grupa Roma29 min

Škole/Fakulteti/Vrtići u blizini
- Osnovna škola (Osnovna škola Stevan Sremac)5 min
- Srednja škola (Poljoprivredna škola PK Beograd)14 min
- Vrtić (Dečiji vrtić Klincograd)7 min
- Fakultet (Fakultet savremenih umetnosti FSU)22 min

- Bolnica (Bolnica Sirius Medical)14 min
- Klinika (Naša poliklinika Dr Rodoljub Ristić)22 min
- Teretana (Fitness klub Milenijum)23 min
- Prodavnica (Maxi Supermarket)3 min
- Restoran (Kineski restoran Jin Yuan)13 min
- Kafana (Pivnica Hogar)17 min
- Taksi stajalište (Taxi stanica)29 min
- Autobuska stanica (Mihaila Petrovića)2 min
- Banka (Banca Intesa)15 min
- Pošta (Pošta Borča)21 min
Kontakt oglašivača
Krediti OTP banke
Saznaj više
Prikazana rata odnosi se na maksimalni period otplate. Kalkulator je informativnog karaktera.
* Nakon isteka 5 godina, prelazi se na varijabilnu kamatnu stopu


