Četvorosoban stan na prodaju, Ovčanski put, 208.900€, 104m²




208.900 €
2.009 € / m2
- Etažno grejanje
- Novo
- Prostorije: terasa
- Opremljenost: Prazno - interfon
- Oglas oglašava agencija pod reg. brojem 1308
- 1 parking mesto
- 1 telefonska linija
Opis oglasa
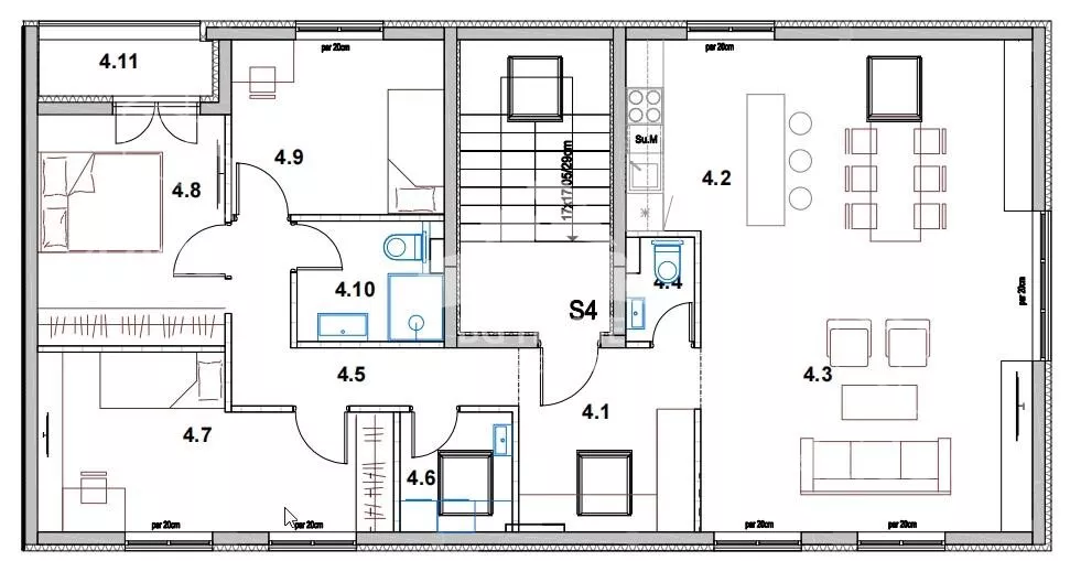
4.0, 104,45m2, terasa, 2/2, EG, telefon, interfon, parking mesto. Građevinska dozvola.
🏡 Prodaja stana – Borča, Ovčanski put
U ponudi moderan četvorosoban stan od 104,45m² u kvalitetnoj novogradnji, smešten u mirnom i planski uređenom kompleksu zatvorenog tipa.
✨ Osnovne karakteristike:
Struktura: 4.0
Površina: 104,45m²
Terasa
U cenu uključeno parking mesto
Novogradnja
📍 Lokacija:
Stan se nalazi na odličnoj lokaciji u Borči, u neposrednoj blizini Zrenjaninskog puta, što omogućava brzu povezanost sa ostatkom grada.
🏢 Kompleks:
Sastoji se od 14 lamela
Zatvoren tip – sigurnost i privatnost
Projektovan za miran, porodičan život i osećaj zajednice
🔥 Grejanje i oprema:
Podno grejanje
Klima uređaj
Energetski efikasan objekat
Stanovi do 80m² – grejanje na električne kotlove
Stanovi preko 80m² – toplotne pumpe (voda–vazduh)
🌿 Ambijent:
Kompleks pruža idealan balans između urbanog života i mira – savršen za porodice i sve koji žele kvalitetan i harmoničan prostor za život.
Cena je sa uračunatim PDV. Mogućnost povrata za kupca prvog stana.
Useljivo sredinom 2027.godine. U ponudi stanovi različitih struktura i kvadratura.
📞 Za više informacija i zakazivanje gledanja, kontaktirajte nas na broj telefona 064... (prikaži broj telefona)
Broj u registru posrednika 1308
Agencijska provizija 2%
*Sačuvaj oglas uz belešku i primaj obaveštenja o njihovom pojeftinjenju ili pojavljivanju sličnih
Prikaz stana na mapi
Obeležja kulture u blizini
- Fontana Mike Alasa19 min
- Leopoldova kapija20 min
- Vidin kapija21 min

Škole/Fakulteti/Vrtići u blizini
- Osnovna škola (Osnovna škola Kraljica Marija)7 min
- Srednja škola (Poljoprivredna škola PK Beograd)8 min
- Vrtić (Dečiji vrtić Pačija škola)4 min
- Fakultet (Univerzitet u Beogradu Pravoslavni bogoslovski fakultet)14 min

- Bolnica (Bolnica Sirius Medical)12 min
- Klinika (Naša poliklinika Dr Rodoljub Ristić)15 min
- Teretana (Fitnes klub Doctor Feelgood)7 min
- Prodavnica (Shorty Market)2 min
- Restoran (Restoran T6 Limited)24 min
- Kafana (Pivnica Hogar)38 min
- Taksi stajalište (Taxi stanica)49 min
- Autobuska stanica (Efeska)manje od 1 min
- Banka (Raiffeisen Bank)9 min
- Pošta (Pošta Ovča)7 min
Kontakt oglašivača
Krediti OTP banke
Saznaj više
Prikazana rata odnosi se na maksimalni period otplate. Kalkulator je informativnog karaktera.
* Nakon isteka 5 godina, prelazi se na varijabilnu kamatnu stopu


