Troiposoban stan na prodaju, Dr Ivana Ribara, 285.000€, 86m²
OBIĐI 3D TURU








































285.000 €
3.314 € / m2
- Centralno grejanje
- Uobičajeno stanje
- Prostorije: kupatila (2), terasa
- Opremljenost: Polunamešteno - internet, interfon, klima
- Uknjiženo
- Oglas oglašava agencija pod reg. brojem 2045
- 1 lift
- Godina izgradnje: 1990.
- Zgrada poseduje: podrum, lođa
- Kablovska
- 1 telefonska linija
Opis oglasa
Savski kej
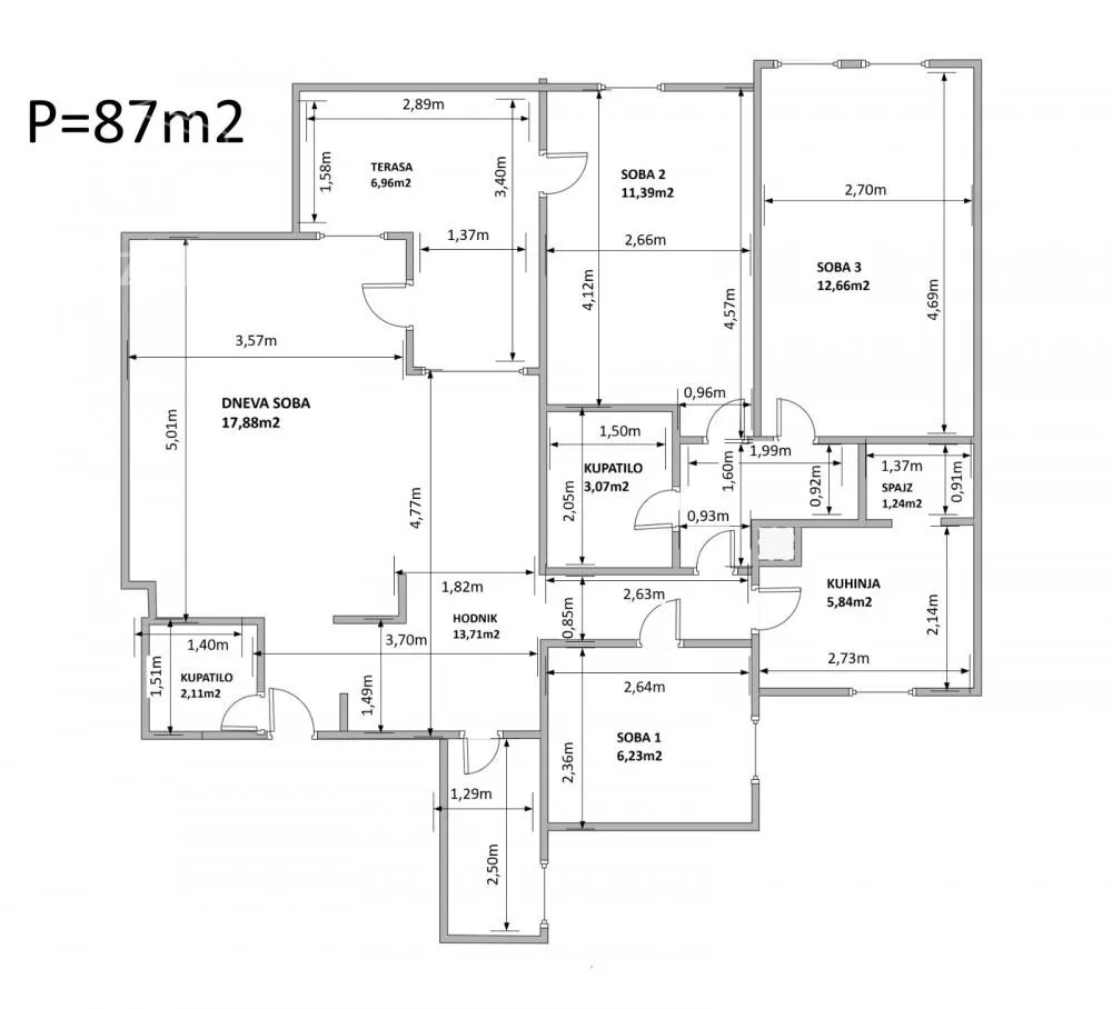
Izuzetan porodični 3.5soban stan u ul. Dr Ivana Ribara, blok 71 na Novom Beogradu.
Zgrada okružena zelenilom sa dosta mesta za parking, odmah pored šetališta uz reku Savu.
U krugu od par minuta hoda nalazi se okretnica autobusa i tramvaja, što omogućava brzu vezu sa svim delovima grada,
kao i svi sadržaji neophodni za svakodnevni život (škole, vrtići, prodavnice).
Nalazi se u beloj osmospratnici sa liftom na idealnom drugom spratu. Centralno grejanje.
Prostorije: prostrana dnevna soba, velika terasa od 7m2 i lodja od 2,5m2, dva mokra čvora (dva kupatila sa wc šoljom u svakom), kuhinja i 3 spavaće sobe!
Adaptabilan na više načina. Dvostrano orijentisan, svetao, u dobrom stanju sa kompletno zamenjenom stolarijom.
Čist i uredan stan, prodaje se prazan ili sa postojećim stvarima
Dodatni prostor: stanu pripada deo hodnika ispred ulaza opremljen za odlaganje stvari, kao i pripadajući podrum.
Odmah useljiv. početna cena 285.000e.
Uknjižen 1/1, može kredit.
kontakt 064.29.46.550
Agencijska provizija obuhvata:
Prezentaciju nekretnine, poslovno pregovaranje, advokatske usluge koje se odnose na izradu Predugovora/Ugovora o kupoprodaji nepokretnosti (ili zakupa) kao i organizaciju overe kod Javnog beležnika, odlazak u banku i organizaciju primopredaje nekretnine. 2%
*Sačuvaj oglas uz belešku i primaj obaveštenja o njihovom pojeftinjenju ili pojavljivanju sličnih
Prikaz stana na mapi
Kontakt oglašivača
Krediti OTP banke
Saznaj više
Prikazana rata odnosi se na maksimalni period otplate. Kalkulator je informativnog karaktera.
* Nakon isteka 5 godina, prelazi se na varijabilnu kamatnu stopu

