Četvorosoban stan na prodaju, Autokomanda, 604.999€, 137m²










604.999 €
4.416 € / m2
- Centralno grejanje
- Novo
- Prostorije: terasa
- Opremljenost: Prazno - internet, klima
- Uknjiženo
- Oglas oglašava agencija pod reg. brojem 1873
- 1 garažno mesto
- 1 lift
- Kablovska
- 1 telefonska linija
Opis oglasa
Prodaja stana Voždovac - Jove Ilića, Charm Residence
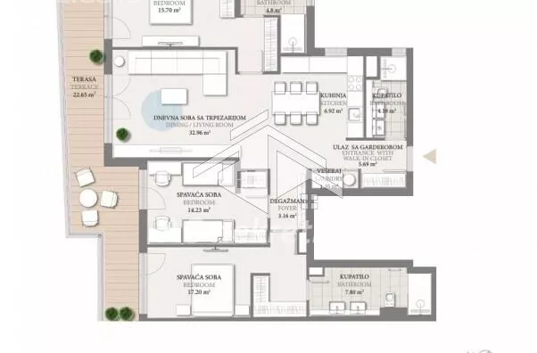
Na prodaju je luksuzan stan površine 136.76 m2 u ekskluzivnom stambenom objektu Charm Residence na Voždovcu, po ceni od 604999 EUR sa uključenim PDV-om i stanarskom ostavom.
Charm Residence predstavlja spoj diskretnog luksuza i savremenog urbanog života, sa svega 27 pažljivo projektovanih stanova koji pružaju visok nivo privatnosti i komfora. Objekat je građen od vrhunskih materijala, sa modernim dizajnom fasade i pažljivo biranim detaljima koji čine razliku, poput aluminijumske stolarije, dekorativne rasvete i italijanskog pečata luksuza u završnoj obradi.
Stanovi su projektovani tako da obezbede maksimalnu funkcionalnost, obilje prirodne svetlosti i prijatan ambijent tokom cele godine. Veliki prozori sa panoramskim pogledom omogućavaju uživanje u zalascima sunca i pogledu ka Vračaru direktno iz dnevnog boravka. U enterijeru su korišćeni keramika i parket najvišeg kvaliteta, pažljivo uklopljeni kako bi prostor bio elegantan, topao i inspirativan.
Objekat se nalazi u mirnoj ulici bogatoj zelenilom, što pruža osećaj mira i privatnosti, dok istovremeno nudi odličnu povezanost sa centrom grada i glavnim saobraćajnicama. Svaki stan ima mogućnost kupovine parking mesta u garaži, a bezbednost je obezbeđena video nadzorom.
Charm Residence je idealan izbor za one koji traže kvalitet, dugotrajnost, moderan dizajn i ekskluzivnost u jednom od najtraženijih delova Voždovca.
Za više informacija i razgledanje kontaktirajte nas
Agencijska provizija iznosi 2% od kupoprodajne cene.
ID oglasa: 44486
*Sačuvaj oglas uz belešku i primaj obaveštenja o njihovom pojeftinjenju ili pojavljivanju sličnih
Prikaz stana na mapi
Parkovi u blizini
- Bajronov park9 min
- Park Jove Ilića19 min
- Karađorđev park20 min

Obeležja kulture u blizini
- Spomenik Internacionalnim brigadama9 min
- Spomenik žrtvama bombardovanja Beograda9 min
- Spomenik oslobodilaca Beograda 1806. godine9 min

Škole/Fakulteti/Vrtići u blizini
- Osnovna škola (Osnovna škola Veselin Masleša)7 min
- Srednja škola (Dvanaesta beogradska gimnazija)6 min
- Vrtić (Dečiji vrtić Beskrajna priča)4 min
- Fakultet (Fakultet za projektni i inovacioni menadžment)7 min

- Bolnica (Bel Medic Opšta bolnica)6 min
- Klinika (Poliklinika Rea Medika)6 min
- Teretana (Yoga studio Durga)8 min
- Prodavnica (Shop&Go)2 min
- Restoran (Restoran Steak & Wine Bar)6 min
- Kafana (Robin Hood Pub)2 min
- Taksi stajalište (Taxi stanica)8 min
- Autobuska stanica (Trg Oslobođenja)7 min
- Tramvajska stanica (Bože Jankovića)3 min
- Trolejbuska stanica (Stadion „Partizan“)18 min
- Banka (NLB Komercijalna banka)8 min
- Pošta (Pošta Beograd 9)10 min
Kontakt oglašivača
Krediti OTP banke
Saznaj više
Prikazana rata odnosi se na maksimalni period otplate. Kalkulator je informativnog karaktera.
* Nakon isteka 5 godina, prelazi se na varijabilnu kamatnu stopu


