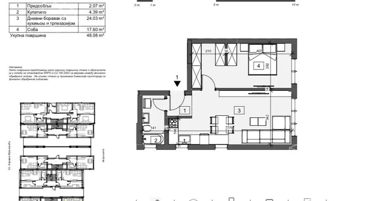
Dvosoban stan na prodaju, Adice, 99.000€, 48m²


99.000 €
2.063 € / m2
- Stan u zgradi
- U izgradnji
- Oglas oglašava agencija pod reg. brojem 405
- Godina izgradnje: 2026.
Opis oglasa
NOVI SAD. ADICE. DVOSOBAN STAN. PLUS PDV(Svet nekretnine, Novi Sad, Reg. br. 405)
*Sačuvaj oglas uz belešku i primaj obaveštenja o njihovom pojeftinjenju ili pojavljivanju sličnih
Prikaz stana na mapi
Parkovi u blizini
- Park Bistrica47 min

Obeležja kulture u blizini
- Dvorac Hadik-Kotek17 min
- Dvorac Eđšeg17 min
- Jodna Banja18 min

Škole/Fakulteti/Vrtići u blizini
- Osnovna škola (Osnovna škola Marija Trandafil)manje od 1 min
- Srednja škola (Privatna medicinska škola Dositej Obradović)8 min
- Vrtić (Dečiji vrtić Anđeo čuvar)6 min
- Fakultet (Protestantski teološki fakultet)10 min

- Bolnica (Ginekološka bolnica Ferona)9 min
- Klinika (Poliklinika Consilium)10 min
- Teretana (Fintess centar Basic Control Academy)9 min
- Prodavnica (Mikromarket)1 min
- Restoran (Restoran Exit West)28 min
- Kafana (Kafanica Kod Dače)45 min
- Taksi stajalište (Taxi prevoz Novi Sad)34 min
- Autobuska stanica (Veternička - Fešter osnovna škola)1 min
- Banka (Erste Bank Ekspres ekspozitura)10 min
- Pošta (Pošta Novi Sad 21142)6 min
Kontakt oglašivača
Krediti OTP banke
Saznaj više
Prikazana rata odnosi se na maksimalni period otplate. Kalkulator je informativnog karaktera.
* Nakon isteka 5 godina, prelazi se na varijabilnu kamatnu stopu






















