Poslovni prostor na prodaju, Salajka, 2.700€, 802m²








2.700 €
3 € / m2
- Oglas oglašava agencija pod reg. brojem 1405
- Godina izgradnje: 2024.
Opis oglasa
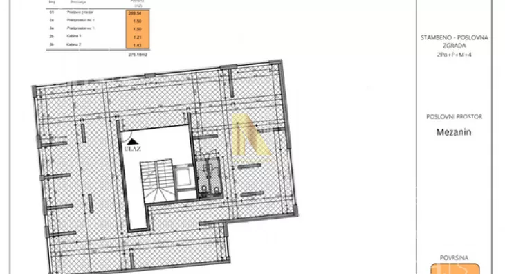
Predstavljamo Vam prodaju jedinstvenog poslovnog prostora na mezaninu. Odlična pozicija za poslovanje. Ukupno 802m2 kvadtatnih metara pruža fleksibilnost i dovoljno prostora za raznolike poslovne aktivnosti. Podeljen na tri lokala, prostor se može prilagoditi različitim poslovnim konceptima. Zgrada je u zavšnoj fazi izgradnje i kraj radova je predviđen u martu 2024. godine.
Izražena je cena po m2 sa uključenim PDV-om bez agencijske provizije 3%
Za više informacija pozovite 066... (prikaži broj telefona) Jelena Bogojević br. licence 3917, Agencija N Nekretnine - reg. posrednika 1405.
*Sačuvaj oglas uz belešku i primaj obaveštenja o njihovom pojeftinjenju ili pojavljivanju sličnih
Prikaz poslovnog prostora na mapi
Parkovi u blizini
- Železnički park22 min
- Dunavski park34 min
- Park srpsko-azerbejdžanskog prijateljstva35 min

Obeležja kulture u blizini
- Spomen ploča Albertu Ajnštajnu i Milevi Marić8 min
- Spomenik Kralju Petru I Karađorđeviću11 min
- Vladičanski dvor11 min

Škole/Fakulteti/Vrtići u blizini
- Osnovna škola (Osnovna škola Vuk Karadžić)7 min
- Srednja škola (Tehnička škola Pavle Savić)6 min
- Vrtić (Dečiji vrtić Bambi)6 min
- Fakultet (Univerzitet u Novom Sadu Akademija umetnosti)10 min

- Bolnica (Specijalna bolnica za bolesti zavisnosti Dr Boro Lazić)8 min
- Klinika (Poliklinika Uromedica NS)8 min
- Teretana (Fitness centar Mega Gym Novi Sad)5 min
- Prodavnica (Diskont hrane i pića Swisslion Takovo)5 min
- Restoran (Restoran Lasta)7 min
- Kafana (Kafana Naša priča)20 min
- Taksi stajalište (Novus taxi)14 min
- Autobuska stanica (Sentandrejski put - Benzinska pumpa)7 min
- Banka (Poštanska štedionica)9 min
- Pošta (Pošta Novi Sad 21130)4 min
Kontakt oglašivača
Stambeni krediti

- Period otplate od
96 -360 meseca
- NKS 4.75%
EKS 5.74%
Fiksna kamatna stopa
- Bez troškova obrade kredita
stranici kreditnih kalkulatora
Keš krediti
Period otplate
13 meseci



















