Lokal na prodaju, Cara Dušana 124A, 350.000€, 144m²










350.000 €
2.431 € / m2
- Etažno grejanje
- Novo
- Kupovina direktno od vlasnika
Opis oglasa
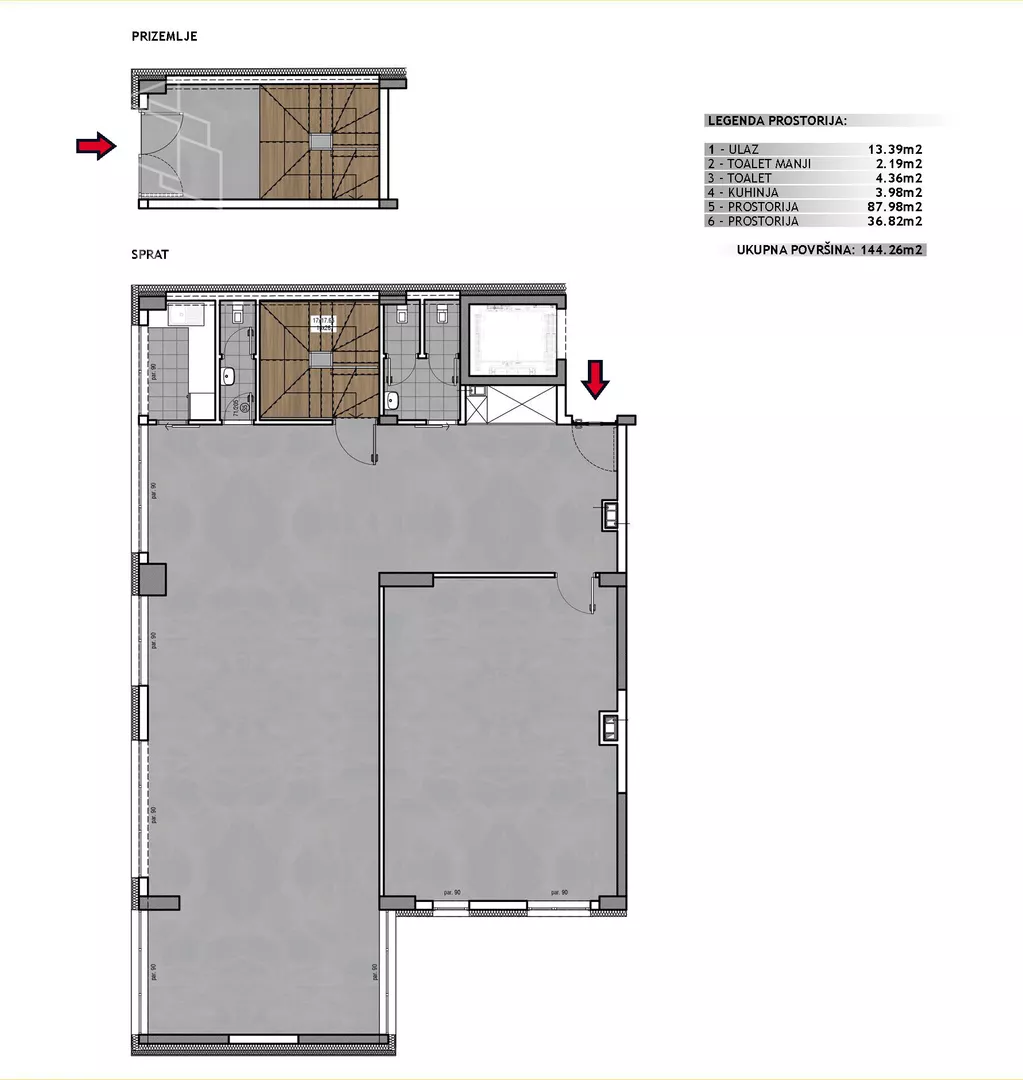
Na prodaju poslovni prostor ukupne površine 144,26 m², smešten na odličnoj lokaciji u ulici Cara Dušana 122 u Nišu, u neposrednoj blizini svih ključnih gradskih sadržaja i objekata.
Prostor se prostire na prizemlje i sprat i odlikuje se izuzetno funkcionalnim rasporedom, što ga čini idealnim za kancelarije, uslužne delatnosti, zdravstvene ili edukativne ustanove, kao i za maloprodaju.
Jedna od najvećih prednosti ovog prostora su dva odvojena ulaza:
- glavni ulaz direktno sa ulice, koji obezbeđuje odličnu vidljivost i lak pristup klijentima,
- drugi, manji ulaz iz unutrašnjosti zgrade, pogodan za zaposlene, logistiku ili organizaciono razdvajanje prostora.
Unutrašnjost je pažljivo organizovana i obuhvata:
- dve prostrane i svetle prostorije (87,98 m² i 36,82 m²),
- kuhinju,
- dva toaleta (manji i veći),
- jasno definisan ulazni deo.
Lokacija u jednoj od najtraženijih gradskih ulica, uz blizinu institucija, poslovnih objekata, prodavnica i javnog prevoza, čini ovaj prostor izuzetnom prilikom kako za sopstveni biznis, tako i za investiciju sa sigurnim povraćajem.
Sve informacije na kontakt telefon : 064... (prikaži broj telefona)
*Sačuvaj oglas uz belešku i primaj obaveštenja o njihovom pojeftinjenju ili pojavljivanju sličnih
Prikaz poslovnog prostora na mapi
Parkovi u blizini
- Park Čair7 min
- Park složnih komšija11 min
- Park Svetog Save17 min

Obeležja kulture u blizini
- Spomenik oslobodiocima Niša6 min
- Spomenik Stevanu Sremcu i Kalči6 min
- Zgrada Pasterovog zavoda6 min

Škole/Fakulteti/Vrtići u blizini
- Osnovna škola (Osnovna škola Vožd Karađorđe)4 min
- Srednja škola (Privatna srednja škola Prokopović)4 min
- Vrtić (Dečiji vrtić Millhouse kids)6 min
- Fakultet (Fakultet za pravo, bezbednost i menadžment Konstantin Veliki)7 min

- Bolnica (Urgentni centar Niš)4 min
- Klinika (Poliklinika Human)3 min
- Teretana (Gym Town 2)5 min
- Prodavnica (IDEA)2 min
- Restoran (Trattoria da Roberto)2 min
- Kafana (Pivnica Berta)7 min
- Taksi stajalište (Duga taksi)15 min
- Autobuska stanica (Trg Patrijarha Pavla)3 min
- Banka (AIK Banka)3 min
- Pošta (Pošta Niš 7)5 min
Kontakt oglašivača

Stambeni krediti
- Period otplate od
96 -360 meseca
- NKS 4.34%
Kombinovana kamatna stopa
- Bez troškova obrade kredita
- Odobrenje kredita do 48h
- Period otplate od
96 -360 meseca
- NKS 4.50%
EKS 5.74%
Fiksna kamatna stopa
- Bez troškova obrade kredita
stranici kreditnih kalkulatora
Keš krediti
Period otplate
13 meseci