Poslovni prostor na prodaju, Duvanište, 132.000€, 83m²








132.000 €
1.590 € / m2
- Podno grejanje
- Novo
- Prostorije: ostava
- Opremljenost: Prazno - klima
- Oglas oglašava agencija pod reg. brojem 1596
- 1 parking mesto
- 1 lift
- Objekat poseduje: podrum, video nadzor
Opis oglasa
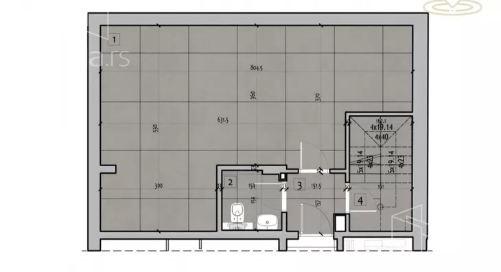
Na prodaju lokal u novogradnji u naselju Duvanište, u veoma prometnoj ulici, lako uočljiv i pogodan za različite delatnosti: kancelariju, ordinaciju, salon lepote, poslastičaru, brzu hranu i slično.
Ukupna površina lokala iznosi 83 m² i prostire se na dva nivoa:
Prizemlje: 43 m²
Podrumski nivo: 40 m²
Postoji mogućnost povezivanja prostora unutrašnjim stepenicama, ali se mogu koristiti i kao dve odvojene prostorije.
Lokal je odmah useljiv i poseduje:
-inverter klimu
-razvedene instalacije za podno grejanje
-ALU stolariju sa duplim 4S staklom
Ispred lokala se nalazi pripadajuće parking mesto.
Cena: 132.000 € + 7.000 € PDV
(PDV se plaća samo za deo u prizemlju od 44 m²)
Za vise informacija kontaktirajte nas.
Agencijska provizija u sklafu sa opstim uslovima poslovanja
*Sačuvaj oglas uz belešku i primaj obaveštenja o njihovom pojeftinjenju ili pojavljivanju sličnih
Prikaz poslovnog prostora na mapi
Parkovi u blizini
- Park Svetog Save13 min
- Park složnih komšija20 min
- Park Čair30 min

Obeležja kulture u blizini
- Ćele kula6 min
- Zgrada Pasterovog zavoda10 min
- Ranohrišćanska grobnica11 min

Škole/Fakulteti/Vrtići u blizini
- Osnovna škola (Osnovna škola Dušan Radović)4 min
- Srednja škola (Trgovinska škola Niš)4 min
- Vrtić (Dečiji vrtić Pahuljica)3 min
- Fakultet (Univerzitet u Nišu Prirodno matematički fakultet)8 min

- Bolnica (Opšta bolnica Sava Surgery)7 min
- Klinika (Poliklinika za laboratorijsku dijagnostiku Neolab)4 min
- Teretana (Top Form Plus Aerobik Centar)10 min
- Prodavnica (IDEA)2 min
- Restoran (Kafana M&J)5 min
- Kafana (Kafana Dva jarana)5 min
- Taksi stajalište (Duga taksi)18 min
- Autobuska stanica (Đerdapska)1 min
- Banka (UniCredit Bank)11 min
- Pošta (Pošta Niš 11)4 min
Kontakt oglašivača
Krediti OTP banke
Saznaj više
Prikazana rata odnosi se na maksimalni period otplate. Kalkulator je informativnog karaktera.
* Nakon isteka 5 godina, prelazi se na varijabilnu kamatnu stopu

