Plac na prodaju, Rakovac, 105.000€, 10.1a












105.000 €
10.396 €/a
Opis oglasa
- Rakovac, Beočin opština
- plac u građevinskom području, ukupne površine 1013m2, uknjižen 1/1 bez tereta
- pogled na Novi Sad
- struja, voda, gas, kanalizacija - priključci i dozvole- sve plaćeno!
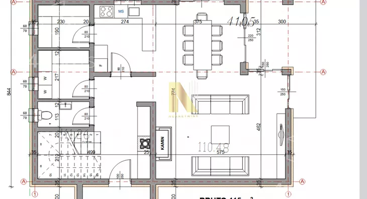
- prodaje se sa građevinskim projektom za zidanje objekta ukupne bruto površine 229m2 - neto 116m2, spratnosti P+1 (plaćen projekat + dozovola)
- odlična lokacija, neposredna blizina svih sadržaja u Rakovcu
- idealno za porodičan dom ( na slikama renderi projekta objekta sa skicama prostorija)
Za sve dodatne informacije, obratiti se na broj telefona 066... (prikaži broj telefona) Igor Ćućuz i 065... (prikaži broj telefona) Nikola Ljuboja , Novi Sad, Bulevar Evrope 44, N-NEKRETNINE, upisan u registar posrednika 1405
*Sačuvaj oglas uz belešku i primaj obaveštenja o njihovom pojeftinjenju ili pojavljivanju sličnih
Prikaz zemljišta na mapi
Obeležja kulture u blizini
- Ostaci srednjovekovnog utvrđenog manastira Dombo7 min
- Spomenik narodnom heroju iz Drugog svetskog rata Stevanu Petroviću Briletu10 min
- Dvorac Špicerovih12 min

Škole/Fakulteti/Vrtići u blizini
- Osnovna škola (Osnovna škola Jovan Grčić Milenko)7 min
- Srednja škola (Francusko-srpska gimnazija Petar I od Srbije)15 min
- Vrtić (Dečiji vrtić Čarobnjak)12 min
- Fakultet (Educons Univerzitet)15 min

- Bolnica (Institut za plućne bolesti Vojvodine)20 min
- Klinika (Poliklinika NS Lab)11 min
- Teretana (Teretana Čeličana 021)27 min
- Prodavnica (Expeto market)14 min
- Restoran (Restoran Fig)24 min
- Autobuska stanica (Stari Rakovac - Nikole Pašića)6 min
- Banka (Erste Bank)10 min
- Pošta (Pošta Rakovac)6 min
Kontakt oglašivača
Krediti OTP banke
Period otplate
13 mesecimesečno
Period otplate 13 - 71 mesec
Saznaj više




















