Kuća na prodaju, Maršala Tita, 206.250€, 125m²
OBIĐI 3D TURU






















206.250 €
1.650 € / m2
Za ovaj oglas se neko interesovao. Pozovi ranije kako ne bi propustio priliku.
- Površina: 125 m²
- Podno grejanje
- Novo
- Prostorije: kupatila (2)
- Uknjiženo
- Oglas oglašava agencija pod reg. brojem 1308
- 1 parking mesto
- Godina izgradnje: 2025.
- 1 telefonska linija
Opis oglasa
5+, 125 m2, подно грејање, телефон, паркинг. Građevinska dozvola
🏡 Продаја модерних двоспратних кућа у ексклузивном насељу „Магнолија! 🏡
Желите савршено место за породични живот у природном окружењу, а у исто време близу града? Представљамо вам "Магнолија", викенд насеље смештено у живописном пределу надомак Београда.
Основне карактеристике:
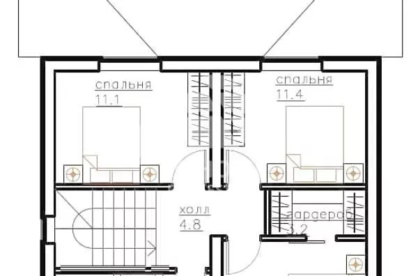
✅ Модернa кућa: Двоспратнa кућa од 125 м², по систему "кључ у руке", изграђенa од модерних квалитетних материјала, са пространим дневним боравком, кухињом, трпезаријом, четири вишенаменске собе, два купатила, гардеробером и наравно терасом са фантастичним погледом.
✅ Пространа парцела: од 652м2 идеална за породични одмор и експериментисањем са зеленим површинама.
✅Одлична локација: На само 30 минута од центра Београда, станица редовног јавног превоза на 100 метара од комплекса, Смедеревски пут као и Аутопут као опције за стизање до града.
✅ Близина садржаја: Само 15 минута од тржног центра AVA, ИКЕА центра и 25 минута од чувене Авале.
✅ Завршетак изградње: Јули–август 2025.
Остале карактеристике:
🔹Квалитетна градња: блок, фасадна цигла, камена вуна – врхунска термоизолација. Фасадна цигла такоће као материјал за фасаду пружа дугорочност не само у конструктивном већ и у естетском смислу.
🔹Прикључена на ЕПС и водовод.
🔹 Котao на струју као систем грејања.
🔹 Сопствени септички танк за сваку кућу.
🔹Подно грејање за максималну удобност
🔹 ПВЦ столарија и улазна врата од алуминијума за дуготрајност и сигурност.
🔹 Природна вентилација у кухињи и купатилима за свежину и проток ваздуха.
🔹 Висина плафона: 2.90 м за додатни осећај пространости.
🔹 Испред куће се налази шума која није грађевинско земљиште, тако да ће остати нетакнута – савршено окружење за мир и природу.
🔹Величина соба је од 11 до 13 м2
Могућа је куповина на кредит и делимично поврат пдв-а.
Kontakt 063... (prikaži broj telefona)
Broj u registru posrednika 1308
Agencijska provizija 2%
*Sačuvaj oglas uz belešku i primaj obaveštenja o njihovom pojeftinjenju ili pojavljivanju sličnih
Prikaz kuće na mapi
Obeležja kulture u blizini
- Spomenik Vasi Čarapiću17 min
- Pašina česma18 min
- Stara mehana u Kumodražu18 min

Škole/Fakulteti/Vrtići u blizini
- Osnovna škola (Osnovna škola Nikola Tesla)11 min
- Srednja škola (Škola za negu lepote)18 min
- Vrtić (Dečiji vrtić Zvezdica)6 min
- Fakultet (Visoka građevinsko-geodetska škola Beograd)21 min

- Bolnica (Hirurška bolnica Aesculap)19 min
- Klinika (Poliklinika Equilibrium)21 min
- Teretana (Body building i fitness klub Ahilej)8 min
- Prodavnica (Aman market)12 min
- Restoran (Restoran Mlinarev san)23 min
- Autobuska stanica (OŠ Nikola Tesla)5 min
- Banka (Raiffeisen Bank)22 min
- Pošta (Pošta Leštane)12 min
Kontakt oglašivača
Za ovaj oglas se neko interesovao. Pozovi ranije kako ne bi propustio priliku.
Krediti OTP banke
Saznaj više
Prikazana rata odnosi se na maksimalni period otplate. Kalkulator je informativnog karaktera.
* Nakon isteka 5 godina, prelazi se na varijabilnu kamatnu stopu

