2-etažna kuća na prodaju, Autoput Za Niš, 220.000€, 264m²



















































220.000 €
833 € / m2
- Samostalna kuća
- Etaž: 2
- Površina: 264 m²
- Površina placa: 10a
- Etažno grejanje
- Uknjiženo
- Oglas oglašava agencija pod reg. brojem 224
Opis oglasa
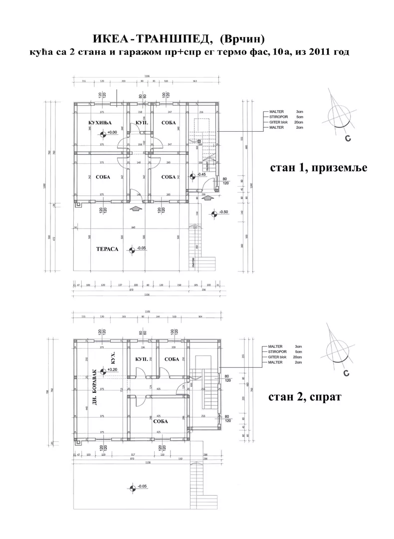
IKEA-TRANŠPED, kuća sa 2 stana i garažom na 10ari iz 2011g .. / 7min vožnje od Konjarnika Niškim autoputem, skretanje za TRANŠPED, preko puta IKEA CENTRA, ul. Moravička (bivša Beogradska), kuća iz 2011 g, sa 2 zasebno uknjižena trosobna stana, jedan u vpr, drugi na spratu, asfalt, gradska voda, trofazna struja, optički internet, prikljućak za gas blizu placa, pvc stolarija, termoizolovana fasada, EG, radijatori, prostrana T, 2 garaže u sklopu zgrade, kotlarnica, pomoćna zgrada, dvorište, bašta, zelenilo, blizina prodavnice, prevoza, uknižena građevinska površina 264m2, korisna površina 220 m2, zemljište pod gradama 133m2, površina placa 10,13 ari ..
.. video klip: https://youtu.be/4_3AO-ugXYA ..
.. AGENCIJSKA PROVIZIJA 2% ..
*Sačuvaj oglas uz belešku i primaj obaveštenja o njihovom pojeftinjenju ili pojavljivanju sličnih
Prikaz kuće na mapi
Obeležja kulture u blizini
- Cincarska kuća15 min
- Rančićeva kuća16 min
- Spomenik Vasi Čarapiću18 min

Škole/Fakulteti/Vrtići u blizini
- Osnovna škola (Osnovna škola Sveti Sava)6 min
- Srednja škola (Srednja škola Grocka)17 min
- Vrtić (Dečiji vrtić Lane)6 min
- Fakultet (Visoka građevinsko-geodetska škola Beograd)22 min

- Bolnica (Specijalna bolnica za internu medicinu Nova Vita)18 min
- Klinika (Poliklinika Equilibrium)20 min
- Teretana (Školica sporta Activity Centar)18 min
- Prodavnica (Aroma market)37 min
- Autobuska stanica (Vrčin)36 min
- Banka (Poštanska štedionica)16 min
- Pošta (Pošta Vrčin)6 min
Kontakt oglašivača
Krediti OTP banke
Saznaj više
Prikazana rata odnosi se na maksimalni period otplate. Kalkulator je informativnog karaktera.
* Nakon isteka 5 godina, prelazi se na varijabilnu kamatnu stopu

