Kuća na prodaju, Selevac kod Smederevske Palanke, 138.000€, 314m²
Smederevska Palanka, Gradske lokacije
Prikaži mapuŠifra oglasa: 4zida-nekpal22847Oglas ažuriran: pre 3 meseca




















































138.000 €
439 € / m2
314 m²
6 soba
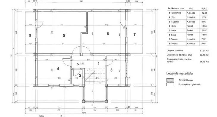
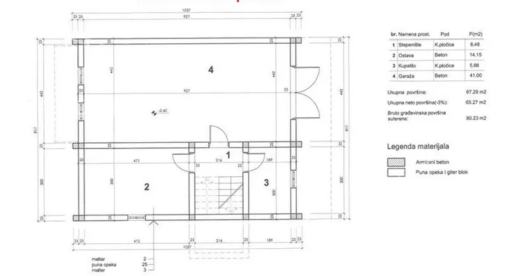
- Površina: 314 m²
- Grejanje na struju
- Potrebno renoviranje
- Oglas oglašava agencija pod reg. brojem 1148
- Godina izgradnje: 1980.
Opis oglasa
U ponudi je velika kuća na tri nivoa ukupne korisne površine 314 kvm gabarita Po+Pr+1+Pk i pomoćne stambene zgrade korisne površine 143 kvm gabarita P+PK sve na placu površine 24 ara. Lokacija kuća je na samom početku Selevca iz pravca Azanje.Na većoj kući izvršena je kompletno zamaena spoljne stolarije, sve je legalizovano i sa privatnom svojinom 1/1. Na placu se nalaze i stari pomoćni objekti zidani od cigle koji mogu da se privedu nameni. Postoji mogućnost dogovora!
*Sačuvaj oglas uz belešku i primaj obaveštenja o njihovom pojeftinjenju ili pojavljivanju sličnih
Prikaz kuće na mapi
Parkovi u blizini
- Park Smederevska Palanka10 min

Obeležja kulture u blizini
- Crkva brvnara28 min
- Spomen česma Crkvenac30 min
- Brvnara posvećena Prvom azanjskom partizanskom odredu32 min

Škole/Fakulteti/Vrtići u blizini
- Osnovna škola (Osnovna škola Olga Milošević)3 min
- Srednja škola (Palanačka gimnazija)3 min
- Vrtić (Dečiji vrtić Dečije carstvo)17 min

Zdravlje
- Bolnica (Opšta bolnica Stefan Visoki Smederevska Palanka)5 min
- Klinika (Poliklinika Jeremić)41 min
- Teretana (Fitness club N Fit)44 min
Hrana i piće
- Prodavnica (VP Dima market)manje od 1 min
Prevoz
- Autobuska stanica (Centar)7 min
Ostale ustanove
- Banka (OTP banka)2 min
- Pošta (Pošta 11420 (šalter))2 min
Kontakt oglašivača
▾Reklama▾
Stambeni krediti

- Period otplate od
96 -360 meseca
- NKS 4.75%
EKS 5.74%
Fiksna kamatna stopa
- Bez troškova obrade kredita
Za iznos kredita preko 300000 € poseti sajt banke.
Saznaj višePogledaj detaljnije i menjaj uslove kreditiranja na
stranici kreditnih kalkulatora
stranici kreditnih kalkulatora
Keš krediti
RSDIznos kredita
Period otplate
13 meseciOsiguranje domaćinstva online
Osiguraj svoje domaćinstvo u slučaju požara...

