Kuća na prodaju, Gradske lokacije, 519.500€, 425m²











519.500 €
1.222 € / m2
- Površina: 425 m²
- Etažno grejanje
- Uobičajeno stanje
- Uknjiženo
- Oglas oglašava agencija pod reg. brojem 46
Opis oglasa
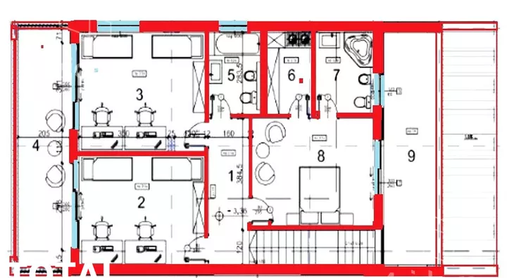
Vikend kuća-rezidencijalna vila u srcu Fruške Gore, cena za kuću je 519500 e+ agencijska provizija 3 %.,u blizini manastira Hopovo, render za moderan koncept stanovanja, vrhunska nekretnina u završnoj fazi gradnje sa upotrebnom dozvolom +++ Agencijska oznaka kuće 3046396 , Fruška Gora u blizini manastira Hopovo .Vikend kuća-rezidencijalna vila , render za moderan koncept stanovanja, vrhunska nekretnina u izgradnji sa dobijenom upotrebnom dozvolom. Sa velikim zadovoljstvom oglašavamo prodaju jedinstvene višesobne luksuzne kuće u izgradnji, u oglasu su prikazane slike i skice iz rendera za vrhunski, moderan urbani koncept stanovanja. Kuća se nalazi na atraktivnoj lokaciji u prirodnom okruženju, na značajnoj saobraćajnici . Za vas koji ste ljubitelji ovakve nekretnine kuća je projektovane bruto površine 425 m2, izgrađena do sive faze na parceli površine 1772 m2 , širina fronta je 15 m što kupcu daje mogućnost da osmisli svoj jedinstveni životni prostor, takođe postoji mogućnost izbora načina grejanja .Po projektu kuća poseduje šest soba . Dvorište je projektovano da bude pokriveno zelenim površinama i dopunjeno letnjikovcem i otvorenim bazenom . Nalazi se u centralnom delu Fruške Gore što obezbeđuje miran i udoban porodičan život a na samo 18 km od Novog Sada u blizini interesantnih sadržaja poput restorana, prirodnih atrakcija, manastira i dr . Radovi na gradnji objekta su započeti uz važeću građevinsku dozvolu, za objekat je dobijena upotrebna dozvola bruto površine 425 m2, Su-108m2+Pr-146 m2+Pk-147m2 . Sofisticirana nekretnina koja bira svog novog vlasnika, ukoliko ste spremni da postanete njen vlasnik, pozovite da zakažemo gledanje Ružica Milićević, 061... (prikaži broj telefona)
*Sačuvaj oglas uz belešku i primaj obaveštenja o njihovom pojeftinjenju ili pojavljivanju sličnih
Prikaz kuće na mapi
Parkovi u blizini
- Park Irig6 min

Obeležja kulture u blizini
- Spomenik Kipovi10 min
- Spomenik palim borcima NOB-a11 min
- Spomenik Milici Stojadinović Srpkinji17 min

Škole/Fakulteti/Vrtići u blizini
- Osnovna škola (Osnovna škola Dositej Obradović)7 min
- Srednja škola (Srednja škola Borislav Mihajlović Mihiz)5 min
- Vrtić (Dečiji vrtić Mala škola)18 min
- Fakultet (Educons Univerzitet)21 min

- Bolnica (Specijalna bolnica za rehabilitaciju Termal Vrdnik)20 min
- Klinika (Poliklinika Ginako)17 min
- Teretana (Joga Yogaja Studio)22 min
- Prodavnica (Expeto market)3 min
- Banka (OTP banka)7 min
- Pošta (Pošta Irig)8 min
Kontakt oglašivača
Krediti OTP banke
Saznaj više
Prikazana rata odnosi se na maksimalni period otplate. Kalkulator je informativnog karaktera.
* Nakon isteka 5 godina, prelazi se na varijabilnu kamatnu stopu


