1-etažna kuća na prodaju, Aerodrom, 149.000€, 115m²








































149.000 €
1.296 € / m2
- Samostalna kuća
- Etaž: 1
- Površina: 115 m²
- Površina placa: 3a
- Grejanje na gas
- Novo
- Prostorije: kupatilo, ostava, terasa
- Uknjiženo
- Oglas oglašava agencija pod reg. brojem 379
- 3 parking mesta
- Godina izgradnje: 2025.
- Objekat poseduje: dvorište, tavan, podrum
Opis oglasa
Atraktivna - moderno uređena kuća - prostrana - odmah useljiva!
U naselju Jabučar, prodaje se odmah useljiva nova kuća, površina placa 2,9a.
Postojeća kuća je srušena do temelja i napravljena nova - svi priključci novi.
Grejanje: podno gas.
Crni krov, crni oluci, pvc antracit.
Izlaz na tavanski prostor koji se može iskoristiti za 2 sobe.
Podrumski prostor - spoljna strana kuće, 15m2.
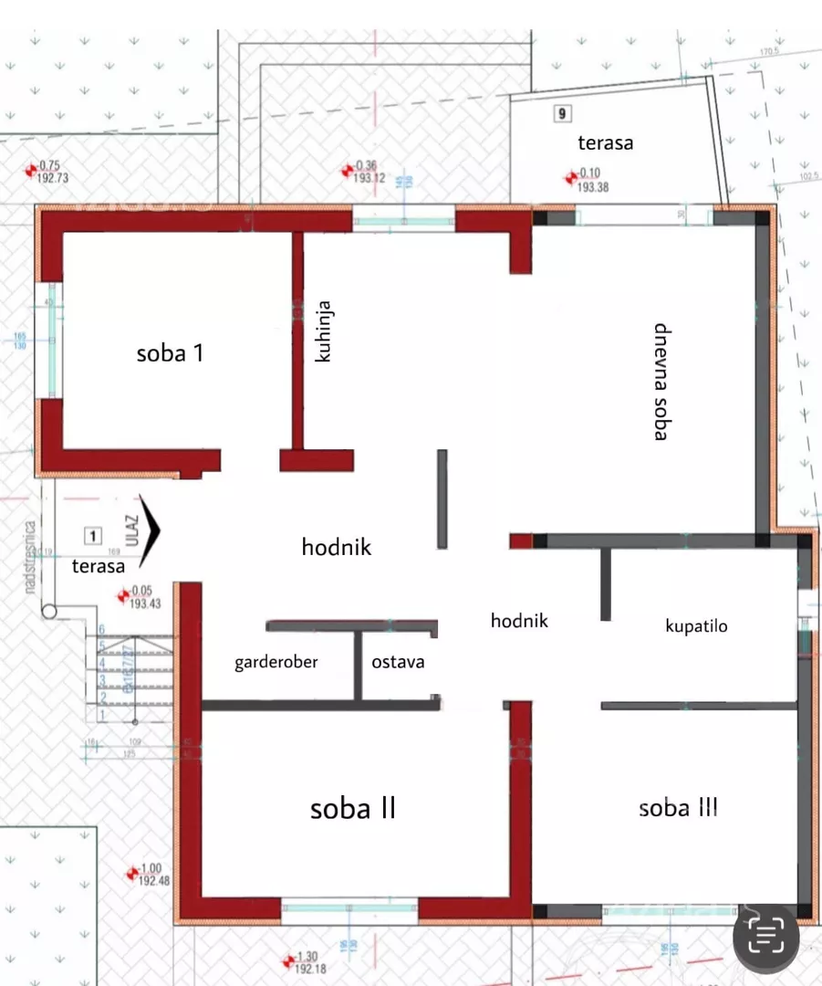
Struktura: dnevni boravak sa kuhinjom i trpezarijomi izlaskom na terasu, 3 spavaće sobe, prostran hodnik, garderober, ostava, kupatklo.
Kuća je idealna za porodičan život, a kupovina u ovom trenutku pruža mogućnost uređenja dvorišta.
U postupku je dobijanja upotrebne dozvole, ima mogućnost kupovine na kredit, i ima energetski pasoš.
Ispred kuće osmišljena 3parking mesta.
Topla preporuka agencije!
*Sačuvaj oglas uz belešku i primaj obaveštenja o njihovom pojeftinjenju ili pojavljivanju sličnih
Prikaz kuće na mapi
Parkovi u blizini
- Kreativni park Kragujevac26 min
- Veliki park27 min
- Mali park36 min

Obeležja kulture u blizini
- Spomenik otpora i slobode7 min
- Spomenik Joakimu Vujiću9 min
- Centralna humka9 min

Škole/Fakulteti/Vrtići u blizini
- Osnovna škola (Osnovna škola Mirko Jovanović)5 min
- Srednja škola (Bogoslovija Svetog Jovana Zlatoustog)9 min
- Vrtić (Dečiji vrtić Poletarac)6 min
- Fakultet (Univerzitet u Kragujevcu Prirodno-matematički fakultet)5 min

- Bolnica (Klinika za pulmologiju Kragujevac)6 min
- Klinika (Poliklinika Tesla Medic)7 min
- Teretana (Teretana Kronos)12 min
- Prodavnica (IDEA Super)11 min
- Restoran (Restoran Biblioteka kod Milutina)4 min
- Kafana (Kafana Kafanica)26 min
- Autobuska stanica (Jabučar)3 min
- Banka (OTP banka)5 min
- Pošta (Pošta Kragujevac 10)4 min
Kontakt oglašivača
Krediti OTP banke
Saznaj više
Prikazana rata odnosi se na maksimalni period otplate. Kalkulator je informativnog karaktera.
* Nakon isteka 5 godina, prelazi se na varijabilnu kamatnu stopu


