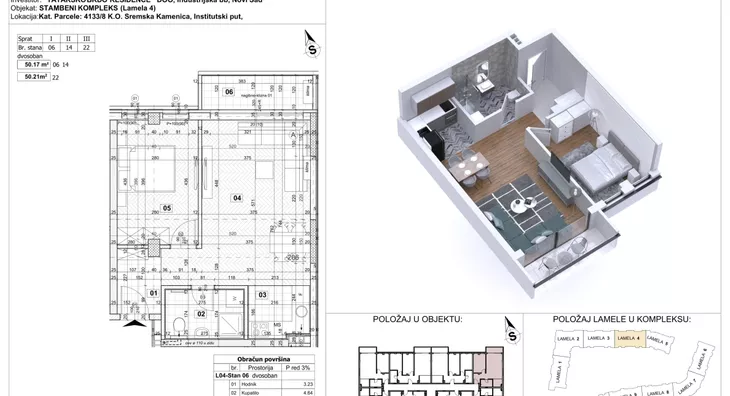
Dvosoban stan na prodaju, Novogradnja, Tatarsko Brdo, 50.17m²









Cena na upit
- Status izgradnje: U izgradnji
- Status prodaje: Na prodaju
- Etažno grejanje
- Materijal gradnje: Građevinski blok
- Stolarija: Aluminijum
- Podovi: Parket
- Energetski pasoš: Da
- Prodaja parkinga: Dostupno
- 4 lifta
- Kalorimetar: Da
- Godina izgradnje: 12.
Ovaj oglas je deo projekta
VERDE 11

O projektu oglašivača TATARSKO BRDO RESIDENCE DOO
U srcu prirode, na Tatarskom brdu, kompleks Verde 11 nudi više od doma – nudi život u zagrljaju prirode.
Sa spektakularnim pogledom na Novi Sad, Dunav, Frušku goru, Petrovaradinsku tvrđavu i privatni park, ova lokacija predstavlja savršeno mesto za stvaranje neprocenjivih uspomena i uživanje u svakom trenutku.
Stambeni kompleks Verde 11 se nalazi u istočnom delu Sremske Kamenice, na obroncima Fruške gore, u blizini Instituta Sremska Kamenica.
Na lokaciji koja je poznata po lekovitoj „ruži vetrova”.
Na svega 700 metara od Instituta Sremska Kamenica, 3,9 kilometara od Nacionalnog parka Fruška gora i 3,5 kilometara od Novog Sada.
Kompleks je smešten izvan Novog Sada, ali je udaljen samo 5 minuta vožnje od TC Promenada i samo 7 minuta vožnje od centra grada.
Kompleks Verde 11 prostire se na 2.2ha i obuhvata ukupno 331 stan funkcionalnog rasporeda, 16 lokala opšte namene i 451 garažno mesto.
Svi stanovi su projektovani prema najvišim standardima kvaliteta.
Podovi zajedničkih prostorija i lokala obloženi su granitnom keramikom, dok su u stambenom prostoru podovi od hrastovog parketa ili podne keramike.
Prozori i balkonska vrata su od ALU profila sa termo roletnama, a unutrašnja stolarija je od drveta.
Kompleks poseduje centralno grejanje na gas i protočnu toplu vodu.
O tome da je Verde 11 dom u zagrljaju prirode potvrđuje činjenica da je značajan deo kompleksa dvorište sa privatnim parkom ukupne površine 6.500m2.
Dvorište sa parkom uključuje šetalište, dečije igralište, igralište za kućne ljubimce, a bez mogućnosti posete lica koja ne žive u okviru ovog stambenog kompleksa.
Sa zatvorenim pristupom, rampom, angažovanim portirima i video nadzorom, možete biti sigurni da je vaš dom zaštićen 24 sata dnevno, 7 dana u nedelji.
Stambeni krediti
- Period otplate od
96 -360 meseca
- NKS 4.34%
Kombinovana kamatna stopa
- Bez troškova obrade kredita
- Odobrenje kredita do 48h
- Period otplate od
96 -360 meseca
- NKS 4.50%
EKS 5.74%
Fiksna kamatna stopa
- Bez troškova obrade kredita
stranici kreditnih kalkulatora
Keš krediti
Period otplate
13 meseci- Period otplate od 13 -71 mesec
- NKS 10.55%
- EKS od 10.87%
- Za klijente banke
mesečno
