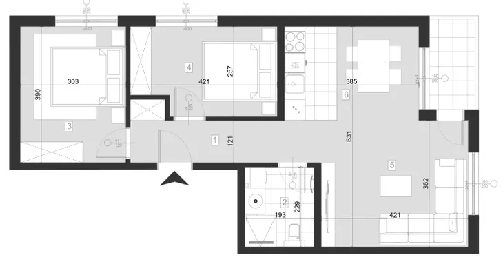
Trosoban stan na prodaju, Novogradnja, Tatarsko Brdo, 62.53m²
















Cena na upit
- Status izgradnje: U izgradnji
- Status prodaje: Na prodaju
- Podno grejanje
- Energent: Gas
- Materijal gradnje: Termo blok
- Stolarija: Aluminijum
- Podovi: Tarket
- Energetski pasoš: Da
- Prodaja parkinga: Dostupno
- 2 lifta
- Kalorimetar: Da
- Godina izgradnje: 2026.
Ovaj oglas je deo projekta
Vile Tatarsko Brdo

O projektu oglašivača Estate Invest d.o.o.
“Vile Tatarsko Brdo” - kupovina direktno od investitora Ivana Franka 4, Sremska Kamenica, Novi Sad Na ekskluzivnoj lokaciji na Tatarskom Brdu, na udaljenosti 5 minuta od centra Novog Sada, u izgradnji su arhitektonski impresivne, estetski atraktivne i funkcionalno superiorne vile. Vrhunski projektovani dizajnirani prostori i pažljivo odabrani sadržaji premium kvaliteta jedinstvena su formula za sigurnu investiciju i zaista udoban život. Zašto izabrati Vile Tatarsko Brdo? Čvrsta gradnja sa punom zvučnom izolacijom Ventilisana fasada – klinker ciglice i fundermax Elegantna aluminijumska stolarija sa vrhunskim profilima, staklima i opremom Liftovi najnovije generacije Visokofunkcionalna distribucija prostora za svaki tim stana Maksimizacija upotrebljivosti kvadrature zahvaljujući sistemu grejanja bez radijatora Visokokvalitetni enterijerski materijali neutralne estetike Prelep panoramski pogled na Frušku Goru Ekskluzivna lokacija uz Park prirode, u zoni optimalne ruže vetrova Na 5 minuta od centra Novog Sada
Krediti OTP banke
Saznaj više
Prikazana rata odnosi se na maksimalni period otplate. Kalkulator je informativnog karaktera.
* Nakon isteka 5 godina, prelazi se na varijabilnu kamatnu stopu