Reklama

Trosoban stan na prodaju, Novogradnja, Petrovaradin, 59.95m²

Petrovaradin, Gradske lokacije, Novi Sad
Trosoban stan | 4zida
Trosoban stan | 4zida

Cena na upit

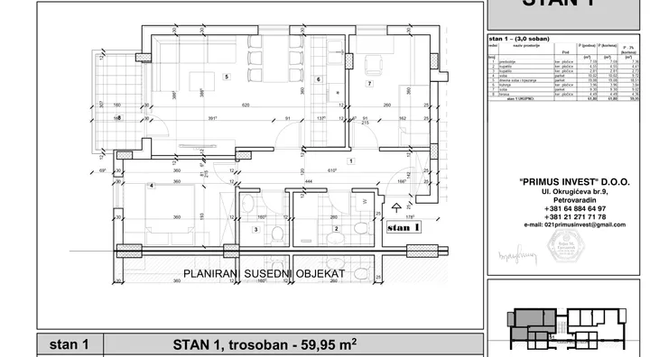
Trosoban stan
59.95m²
1/2 sprata
U procesu uknjižavanja

O stanu
  • Status izgradnje: U izgradnji
  • Status prodaje: Na prodaju
O zgradi
  • Etažno grejanje
  • Energent: Gas
  • Materijal gradnje: Termo blok
  • Stolarija: PVC
  • Podovi: Tarket
  • Energetski pasoš: Da
  • Prodaja parkinga: Dostupno
  • Nema lift
  • Kalorimetar: Ne
  • Godina izgradnje: 2026.

Ovaj oglas je deo projekta
Novogradnja u Vladislava Petkovića Disa 4

Primus Invest doo PetrovaradinPetrovaradin, Gradske lokacije, Novi Sad
pozadinska slika

O projektu oglašivača Primus Invest doo Petrovaradin

Novogradnja u Vladislava Petkovića Disa 4





Krediti OTP banke

OTP bank logo

Bez troškova obrade kredita
NKS 4.50% - EKS 5.74%
Period otplate 96 -360 meseca

Saznaj više

Prikazana rata odnosi se na maksimalni period otplate. Kalkulator je informativnog karaktera.

* Nakon isteka 5 godina, prelazi se na varijabilnu kamatnu stopu


Osiguranje domaćinstva online

Osiguraj svoje domaćinstvo u slučaju požara...