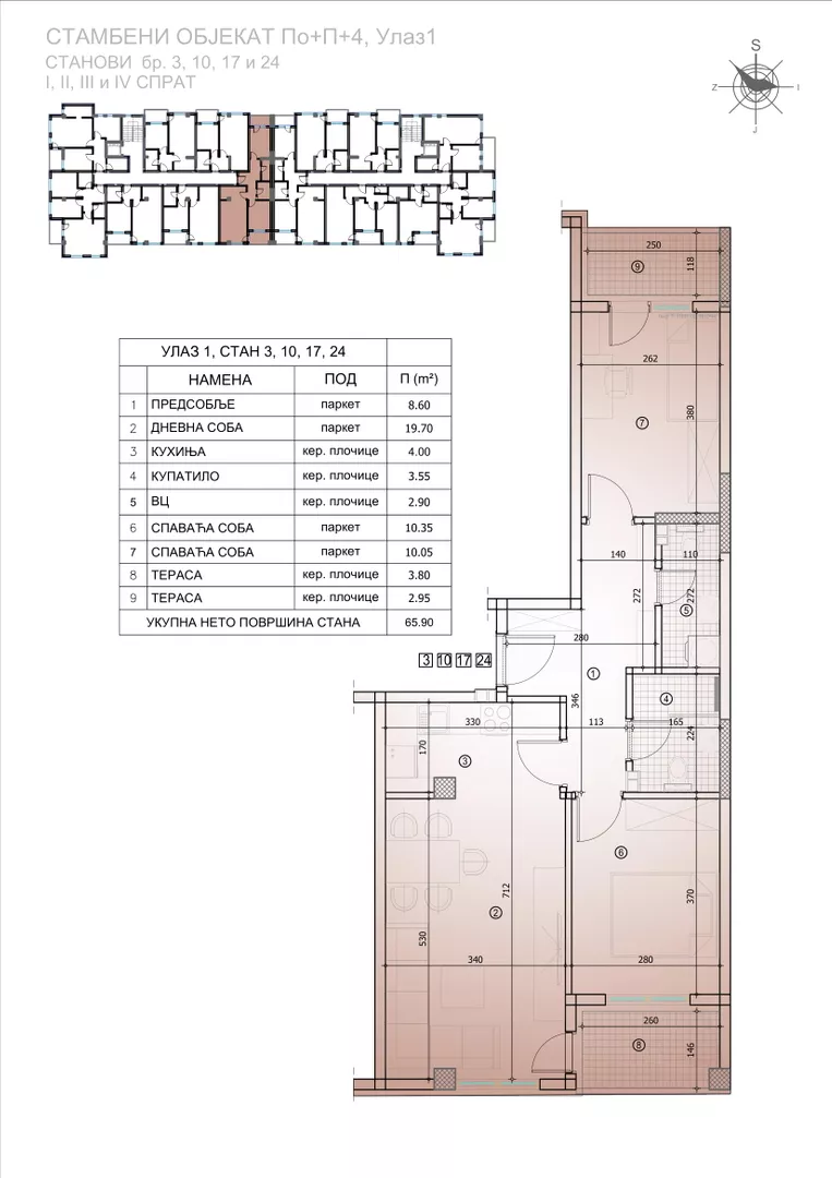
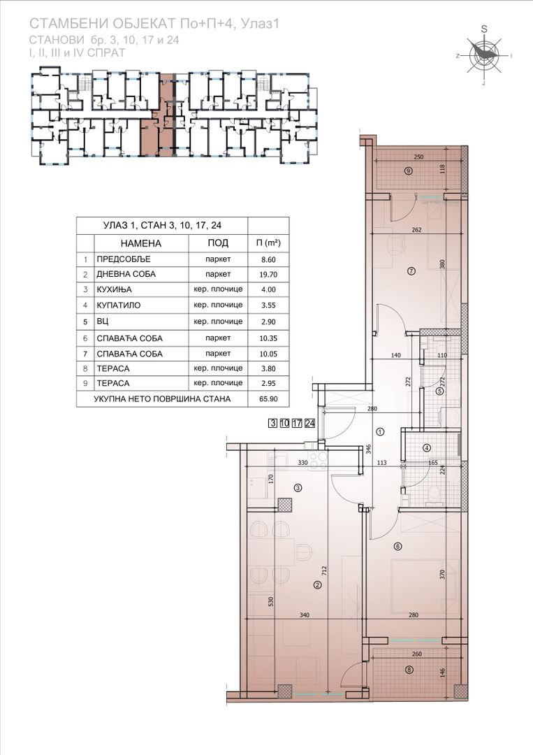
Dvoiposoban stan na prodaju, Novogradnja, Pantelej, 65.9m²
Pantelej, Gradske lokacije, Niš




Cena na upit
Dvoiposoban stan
65.9m²
4/4 sprata
U procesu uknjižavanja
- Status izgradnje: U izgradnji
- Status prodaje: Na prodaju
- Etažno grejanje
- Energent: Struja
- Materijal gradnje: Građevinski blok
- Stolarija: PVC
- Podovi: Tarket
- Energetski pasoš: Da
- Prodaja parkinga: Dostupno
- 2 lifta
- Kalorimetar: Da
- Godina izgradnje: 2027.
Ovaj oglas je deo projekta
Durllan 2
Milenović gradnjaPantelej, Gradske lokacije, Niš

O projektu oglašivača Milenović gradnja
Novogradnja u Nišu
Stambeni krediti
- Period otplate od
96 -360 meseca
- NKS 4.34%
Kombinovana kamatna stopa
- Bez troškova obrade kredita
- Odobrenje kredita do 48h
267 € / mesečno
Saznaj više- Period otplate od
96 -360 meseca
- NKS 4.50%
EKS 5.74%
Fiksna kamatna stopa
- Bez troškova obrade kredita
Pogledaj detaljnije i menjaj uslove kreditiranja na
stranici kreditnih kalkulatora
stranici kreditnih kalkulatora
Keš krediti
RSDIznos kredita
Period otplate
13 meseciOsiguranje domaćinstva online
Osiguraj svoje domaćinstvo u slučaju požara...
