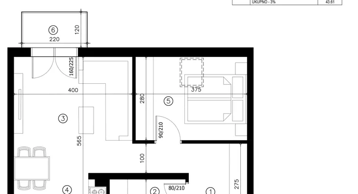
Jednoiposoban stan na prodaju, Novogradnja, Gradske lokacije, 43.61m²




Cena na upit
- Status izgradnje: U izgradnji
- Status prodaje: Na prodaju
- Podno grejanje
- Energent: Struja
- Materijal gradnje: Termo blok
- Stolarija: Kombinovano
- Podovi: Pločice
- Prodaja parkinga: Dostupno
- 1 lift
- Kalorimetar: Ne
- Godina izgradnje: 2026.
Ovaj oglas je deo projekta
Stambeno-poslovni objekat P+2+Pk i višeporodični objekat P+1+Pk

O projektu oglašivača Gip doo Sremska Mitrovica
Novogradnja u centru Sremske Mitrovice – moderno stanovanje na izuzetnoj lokaciji.
U ponudi su stambeno-poslovni objekti u izgradnji na jednoj od najatraktivnijih lokacija u centru Sremske Mitrovice. U neposrednoj blizini nalaze se administrativni centar, Palata pravde, SPC “Pinki” i sam gradski trg, što ovu lokaciju čini savršenom za život i poslovanje.
Na parceli su planirana tri objekta:
- Objekat A – stambeno-poslovni objekat spratnosti P+2+Pk, sa liftom, koji se nalazi uz ulicu Stari šor. Sadrži 17 stanova i 2 poslovna prostora.
- Objekat B – višeporodični, dvorišni objekat spratnosti P+1+Pk, bez lifta, sa ukupno 12 stanova.
- Objekat C – pomoćni objekat sa 9 garažnih mesta. Uz stanove su obezbeđena i parking mesta, koja se ugovaraju prilikom kupovine.
Prodaja garaža je trenutno moguća isključivo uz kupovinu stana.
Kvalitetna gradnja i savremena oprema Objekat A se gradi od Ytong blokova, dok se objekat B zida klima blokovima. Pregradni zidovi su od giter bloka, što obezbeđuje odličnu zvučnu i termičku izolaciju. Planirana je stolarija ALU TOP – PVC Rehau profil sa troslojnim staklom i spoljašnjom aluminijumskom oblogom. Grejanje je podno, na struju, pomoću elektrokablova, uz zasebnu kontrolu temperature u svakoj prostoriji.
U cenu stana je uključeno: inverter klima uređaj u dnevnom boravku, unutrašnja vrata od farbanog medijapana, sigurnosna ulazna vrata, optička mreža u svim stanovima. Ovaj projekat predstavlja idealnu priliku za kupovinu modernog stana u srcu Sremske Mitrovice — bilo za porodično stanovanje ili investiciju.
Stambeni krediti

- Period otplate od
96 -360 meseca
- NKS 4.75%
EKS 5.74%
Fiksna kamatna stopa
- Bez troškova obrade kredita
stranici kreditnih kalkulatora
Keš krediti
Period otplate
13 meseci