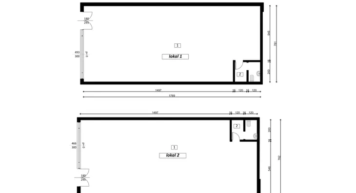
Lokal na prodaju, Novogradnja, Gradske lokacije, 134m²


Cena na upit
- Status izgradnje: U izgradnji
 - Status prodaje: Na prodaju
 
- Podno grejanje
 - Materijal gradnje: Građevinski blok
 - Stolarija: PVC
 - Podovi: Pločice
 - Energetski pasoš: Da
 - Prodaja parkinga: Dostupno
 - 1 lift
 - Kalorimetar: Ne
 - Godina izgradnje: 2024.
 
Ovaj oglas je deo projekta
NOTA

O projektu oglašivača M MONT STROJ DOO
Kvalitetna gradnja, prepoznatljiv atraktivan izgled i moderan dizajn i ovog puta je prioritet našeg poslovanja.
Stambeno-poslovni objekat NOTA nalazi se u užem centru grada, u Rumi, u ulici 15.
maj br.
131, na svega par minuta hoda od doma zdravlja, škola, vrtića, pijace, banaka i svih drugih institucija koje su Vam neophodne za svakodnevno funkcionisanje.
Objekat se sastoji od 52 stambene jedinice, 2 poslovna prostora, 52 parking i garažna mesta, električnim liftom sa polaznom stanicom iz suterena objekta (gde su smeštena garažna mesta), dečijim igralištem i rampama na ulasku u dvorište.
Stanovi su opremljeni sigurnosnim ulaznim vratima, sa čeličnim okovom, ispunjena kamenom vunom, obostrano obložena medijapanom, sa 6 tačaka zaključavanja, domaćeg proizvođača, sobnim vratima od medijapana, bojena poliuretanskim bojama sa magnetnom bravom i širokim pervajzom, domaćeg proizvođača, kao i šestkomornom PVC stolarijom nemačkog profila trocal, sa dvoslojnim staklom punjenim argon gasom, u antracit dezenu, i aluminijumskim roletnama sa elektropodizačima.
Stanovi i lokali su opremljeni podnim grejanjem na gas (svaki stan i lokal poseduje svoj kotao, na koji način sami kontrolišete temperaturu i potrošnju), klima uređajem, kao i interfonom sa video nadzorom.
U kupatilima je ugradjena keramika I klase, opremljena su sanitarijama i ugradnim Gebert vodokotlićem, kao i walk in tuš kabinama i paravanima sa kaljenim staklom debljine 8mm.
Stambeni krediti

- Period otplate od
96 -360 meseca 
- NKS 4.75%
EKS 5.74%
Fiksna kamatna stopa 
- Bez troškova obrade kredita
 
stranici kreditnih kalkulatora
Keš krediti
Period otplate
13 meseci