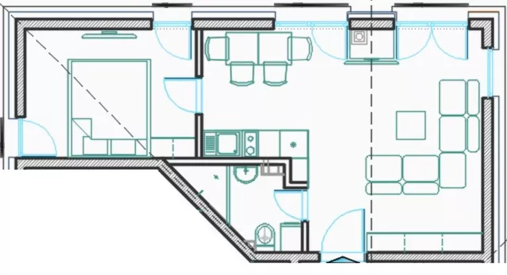
Dvosoban stan na prodaju, Novogradnja, Divčibare, 36m²
Divčibare, Okolne lokacije, Valjevo


Cena na upit
Dvosoban stan
36m²
Nisko prizemlje/4 sprata
Nije uknjiženo
- Status izgradnje: U izgradnji
- Status prodaje: Na prodaju
- Centralno grejanje
- Materijal gradnje: Nepoznato
- Stolarija: PVC
- Podovi: Parket
- Energetski pasoš: Da
- Nema lift
- Kalorimetar: Ne
- Godina izgradnje: 2024.
Ovaj oglas je deo projekta
SONATA - Divčibare
Tihomir MarinkovićDivčibare, Okolne lokacije, Valjevo

O projektu oglašivača Tihomir Marinković
Izgradnja stambeno-poslovnog objekta apartmanskog tipa
Stambeni krediti
- Period otplate od
96 -360 meseca
- NKS 4.34%
Kombinovana kamatna stopa
- Bez troškova obrade kredita
- Odobrenje kredita do 48h
143 € / mesečno
Saznaj više- Period otplate od
96 -360 meseca
- NKS 4.75%
EKS 5.74%
Fiksna kamatna stopa
- Bez troškova obrade kredita
Pogledaj detaljnije i menjaj uslove kreditiranja na
stranici kreditnih kalkulatora
stranici kreditnih kalkulatora
Keš krediti
RSDIznos kredita
Period otplate
13 meseciOsiguranje domaćinstva online
Osiguraj svoje domaćinstvo u slučaju požara...
