Troiposoban stan na prodaju, Novogradnja, Bagljaš, 115000€, 104.9m²
Bagljaš, Gradske lokacije, Zrenjanin


od 115.000 €
1.096 € / m2
Troiposoban stan
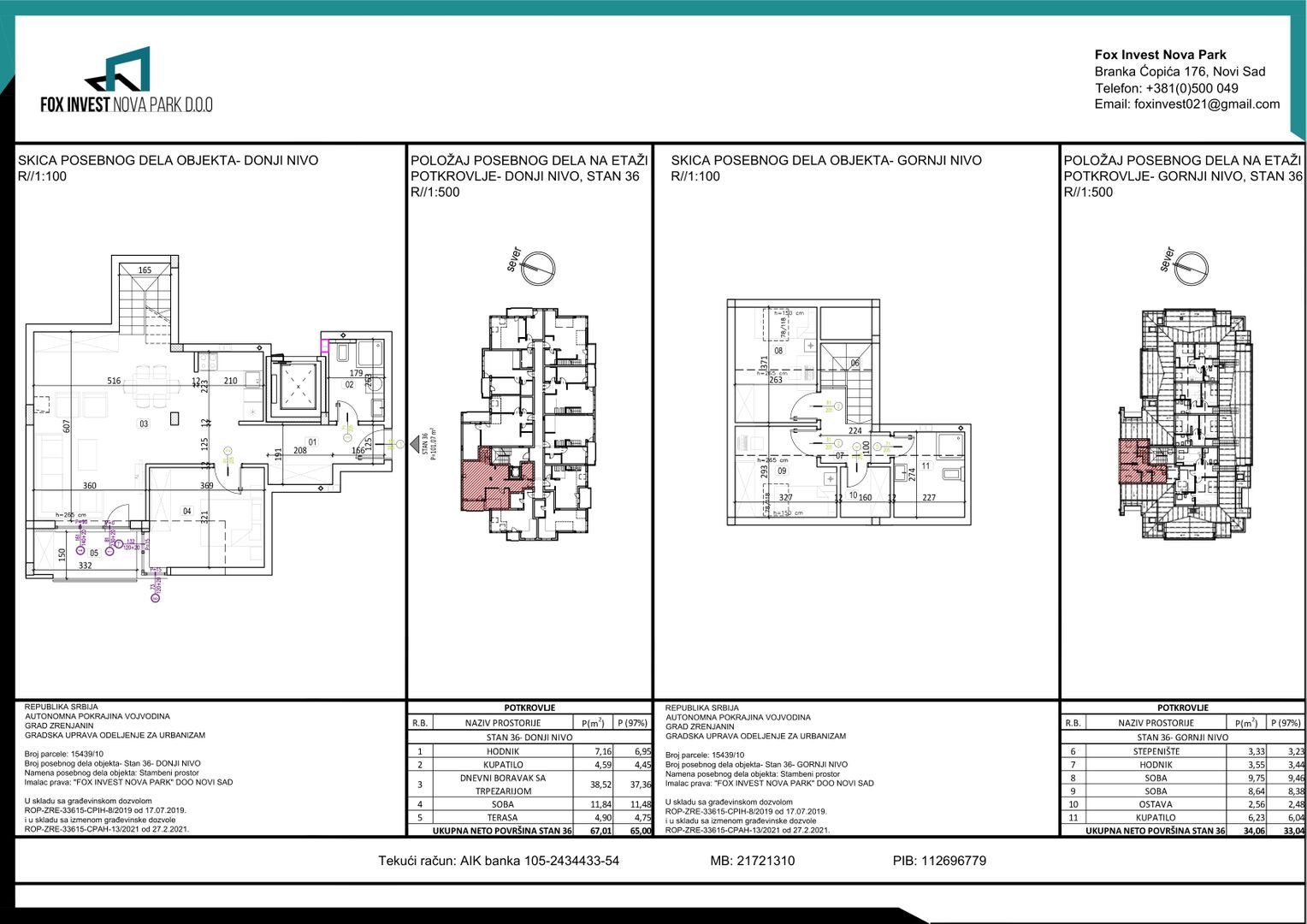
104.9m²
Potkrovlje/3 sprata
U procesu uknjižavanja
- Status izgradnje: U izgradnji
- Status prodaje: Prodato
- Podno grejanje
- Materijal gradnje: Nepoznato
- Stolarija: PVC
- Podovi: Pločice
- Energetski pasoš: Da
- Prodaja parkinga: Dostupno
- 1 lift
- Kalorimetar: Da
- Godina izgradnje: 2023.
Ovaj oglas je deo projekta
Nova Park Lamela I
Fox Invest Nova Park d.o.oBagljaš, Gradske lokacije, Zrenjanin

O projektu oglašivača Fox Invest Nova Park d.o.o
Izgranja kompleksa od 103 stana 60 parking mesta u garaži, 43 parking mesta.
Krediti OTP banke
Bez troškova obrade kredita
NKS 4.50% - EKS 5.74%
Period otplate 96 -360 meseca
Saznaj više
Prikazana rata odnosi se na maksimalni period otplate. Kalkulator je informativnog karaktera.
* Nakon isteka 5 godina, prelazi se na varijabilnu kamatnu stopu
Osiguranje domaćinstva online
Osiguraj svoje domaćinstvo u slučaju požara...

