Jednoiposoban stan na prodaju, Novogradnja, Aqua Park, 56286€, 27.77m²
Aqua Park, Gradske lokacije, Jagodina




od 56.286 €
2.027 € / m2
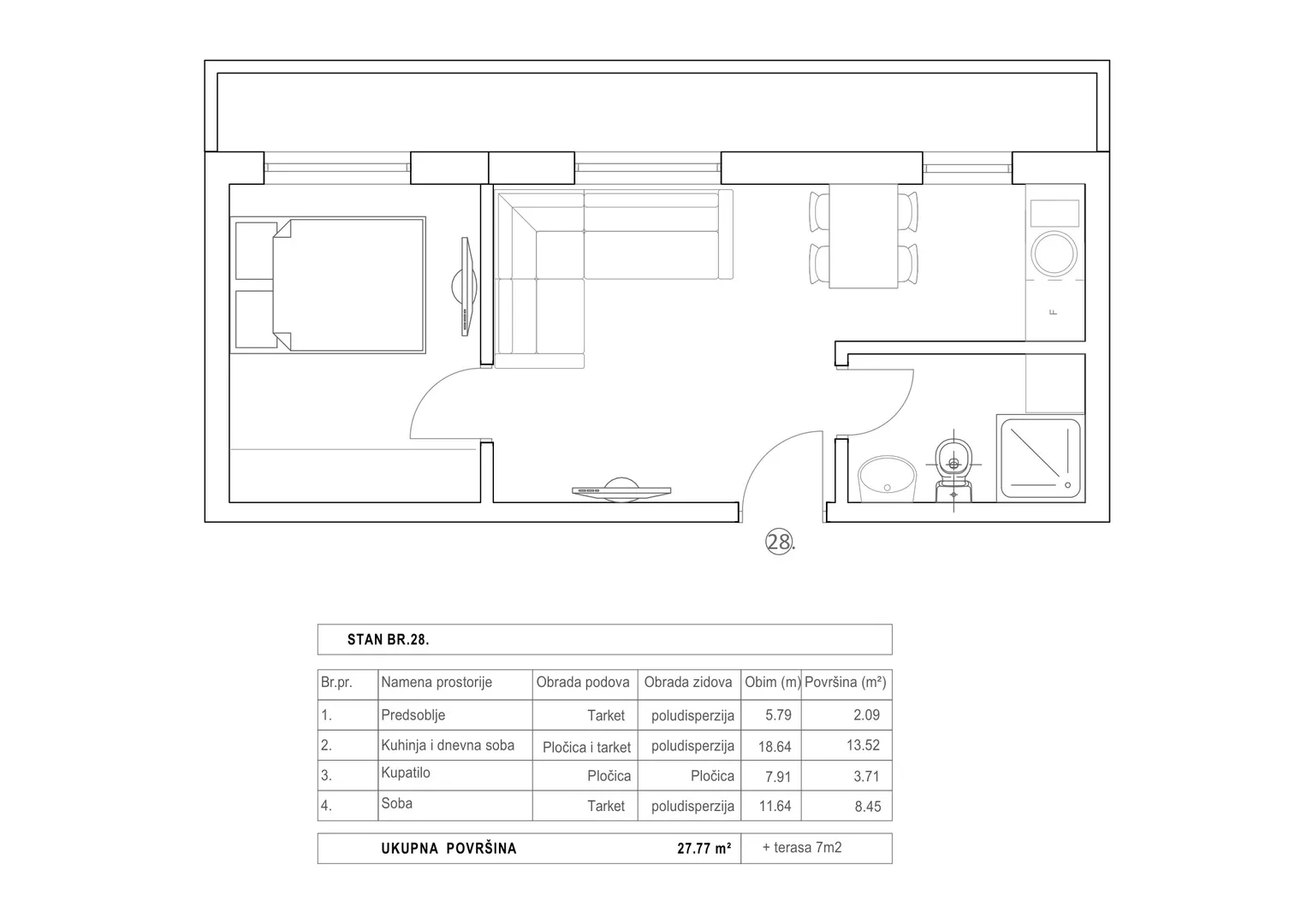
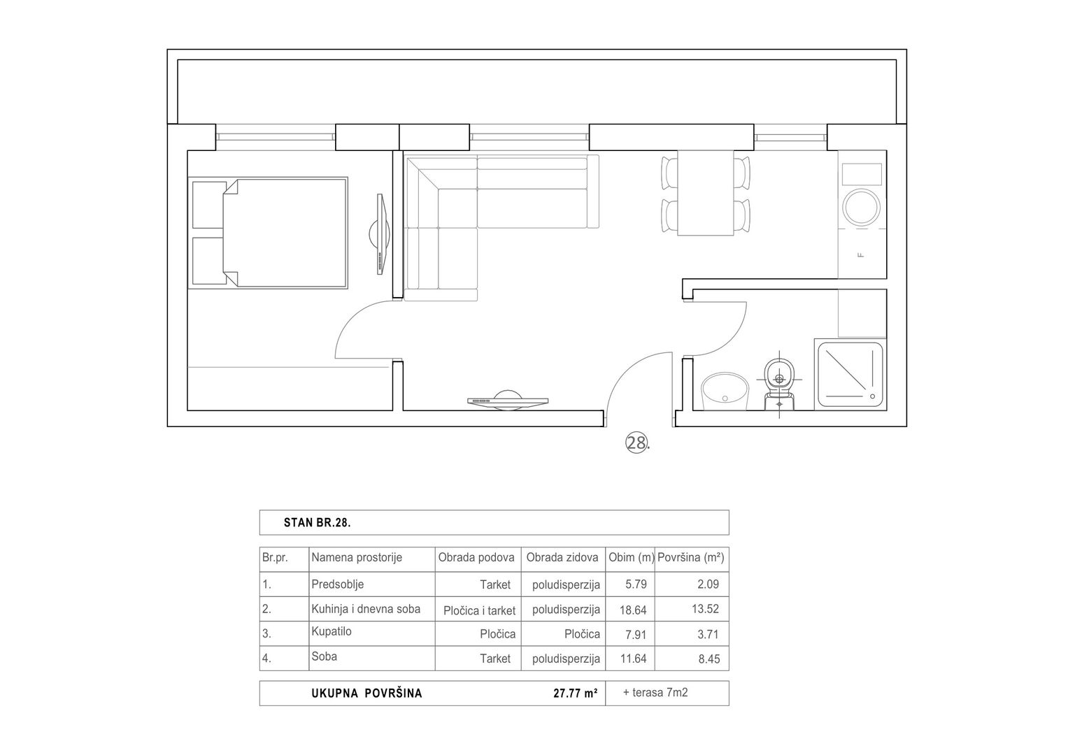
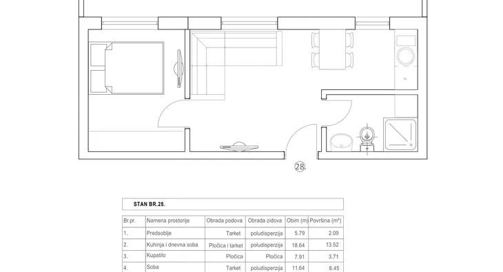
Jednoiposoban stan
27.77m²
3/4 sprata
U procesu uknjižavanja
- Status izgradnje: U izgradnji
- Status prodaje: Na prodaju
- Energent: Struja
- Materijal gradnje: Termo blok
- Stolarija: PVC
- Podovi: Laminat
- 1 lift
- Kalorimetar: Ne
- Godina izgradnje: 2026.
Ovaj oglas je deo projekta
Premium
Heroldo NekretnineAqua Park, Gradske lokacije, Jagodina

O projektu oglašivača Heroldo Nekretnine
Stambeno - poslovni objekat sa 32 stan i 8 lokala u samom srcu turističke zone Jagodine
Krediti OTP banke
Bez troškova obrade kredita
NKS 4.50% - EKS 5.74%
Period otplate 96 -360 meseca
Saznaj više
Prikazana rata odnosi se na maksimalni period otplate. Kalkulator je informativnog karaktera.
* Nakon isteka 5 godina, prelazi se na varijabilnu kamatnu stopu
Osiguranje domaćinstva online
Osiguraj svoje domaćinstvo u slučaju požara...

