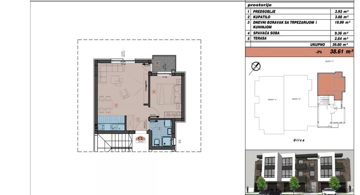
Jednoiposoban stan na prodaju, Novogradnja, Adice, 92235€, 39m²
Adice, Gradske lokacije, Novi Sad


od 92.235 €
2.365 € / m2
Jednoiposoban stan
39m²
1/2 sprata
U procesu uknjižavanja
- Status izgradnje: U izgradnji
- Status prodaje: Na prodaju
- Podno grejanje
- Energent: Gas
- Materijal gradnje: Termo blok
- Stolarija: PVC
- Podovi: Pločice
- Energetski pasoš: Da
- Nema lift
- Kalorimetar: Ne
- Godina izgradnje: 2026.
Ovaj oglas je deo projekta
Mihaila Lalića 15
SOHO INVESTAdice, Gradske lokacije, Novi Sad

O projektu oglašivača SOHO INVEST
Projekat izgradnje urbane vile sa tri ulaza u ulici Mihaila Lalića na samoj granici Adica i Telepa.
Krediti OTP banke
Bez troškova obrade kredita
NKS 4.50% - EKS 5.74%
Period otplate 96 -360 meseca
Saznaj više
Prikazana rata odnosi se na maksimalni period otplate. Kalkulator je informativnog karaktera.
* Nakon isteka 5 godina, prelazi se na varijabilnu kamatnu stopu
Osiguranje domaćinstva online
Osiguraj svoje domaćinstvo u slučaju požara...

