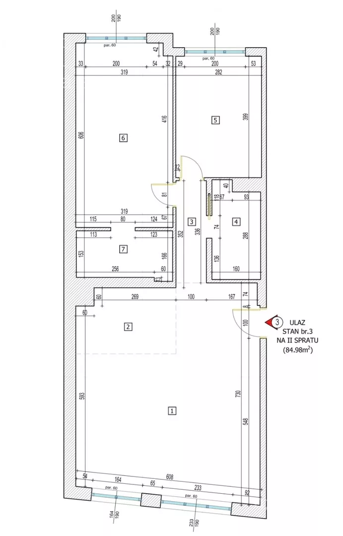
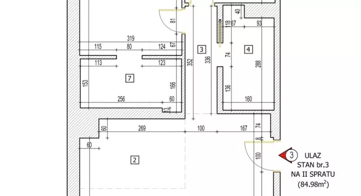
Trosoban stan za izdavanje, Vojvode Šupljikca, 1.500€, 84m²







































- Kvadratura: 84m²
- Na 2. spratu od ukupno 6 spratova
- Novo
- Prostorije: kupatila (2)
- Opremljenost: Prazno - interfon, klima
- Oglas oglašava agencija pod reg. brojem 2123
- 1 parking mesto
- 1 lift
- Godina izgradnje: 2025.
- 1 telefonska linija
Opis oglasa
Moderan porodični stan u vrhunskoj novogradnji – Vojvode Šupljikca
Smešten u savremeno projektovanom objektu koji se izdvaja kvalitetom gradnje i pažljivo biranom opremom.
Stan je idealan za udoban porodični život. Raspored osvaja funkcionalnošću.
Stan površine 68,10m² osmišljen je tako da pruži maksimalan komfor i iskorišćenost prostora:
✅Prostrani dnevni boravak povezan sa kompletno opremljenom kuhinjom i trpezarijom (open space koncept)
✅Dve udobne spavaće sobe od kojih je jedna master sa sopstvenim kupatilom
✅Još jedno kompletno kupatilo
✅Veliki prozori omogućavaju obilje prirodne svetlosti tokom celog dana.
✅Više nego dovoljno garderobera i prostora za odlaganje u obe spavaće sobe
✅Kvalitetan potpuno nov nameštaj
✅napredna zvučna izolacija
✅Premium Alumil stolarija
✅Bosal unutrašnja i sigurnosna vrata nestandardnih dimezija.
✅Vrata kupatila - Bosal klizna vrata za što bolju optimizaciju prostora.
✅Video interfon
✅Podno grejanje
✅Fan coil sistem sa odvojenom regulacijom u svakoj prostoriji.
✅Visina plafona 2.90
Dodatne informacije:
✅Garažno mesto je uključeno u cenu.
✅Obavezan depozit u visini jedne mesečne rente
Za sve informacije pozovite 062... (prikaži broj telefona)
Agencijska provizija 50%
*Sačuvaj oglas uz belešku i primaj obaveštenja o njihovom pojeftinjenju ili pojavljivanju sličnih
Prikaz stana na mapi
Parkovi u blizini
- Park Urbani džep7 min
- Čuburski park12 min
- Park Ćirila i Metodija12 min

Obeležja kulture u blizini
- Vozarev krst1 min
- Osnovna škola Kralj Petar II Karađorđević11 min
- Spomenik Vuku Karadžiću13 min

Škole/Fakulteti/Vrtići u blizini
- Osnovna škola (Osnovna škola Narodni heroj Siniša Nikolajević)5 min
- Srednja škola (Tehnička škola GSP)8 min
- Vrtić (Dečiji vrtić Biberče)5 min
- Fakultet (Univerzitet u Beogradu Geografski fakultet)4 min

- Bolnica (Specijalna bolnica za oftalmologiju Miloš Klinika)9 min
- Klinika (Poliklinika Panacea)2 min
- Teretana (Balance woman's club)manje od 1 min
- Prodavnica (Super Diskont)manje od 1 min
- Restoran (Restoran Bemata)manje od 1 min
- Kafana (Pub 23)2 min
- Taksi stajalište (Taxi stanica)2 min
- Autobuska stanica (Crveni Krst)1 min
- Tramvajska stanica (Vukov spomenik)13 min
- Trolejbuska stanica (Crveni Krst)2 min
- Banka (Halkbank)3 min
- Pošta (Pošta Beograd 34)2 min
Kontakt oglašivača
Krediti OTP banke
Period otplate
13 mesecimesečno
Period otplate 13 - 71 mesec
Saznaj više
