Četvorosoban stan za izdavanje, Kralja Petra, 2.500€, 100m²








































Za ovaj oglas se neko interesovao. Pozovi ranije kako ne bi propustio priliku.
- Kvadratura: 100m²
- Na 4. spratu od ukupno 5 spratova
- Oglas oglašava agencija pod reg. brojem 1288
- 1 lift
- 1 telefonska linija
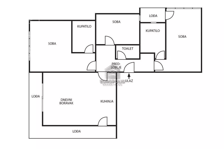
Opis oglasa
U samom srcu Dorćola, u jednoj od najprestižnijih ulica Beograda, Kralja Petra, nalazi se ovaj izuzetno reprezentativan četvorosoban luksuzan stan.
Stan je osmišljen tako da pruži maksimum komfora i funkcionalnosti. Prostran dnevni boravak sa kuhinjom i trpezarijom prirodno se nastavlja na prelepu, komfornu terasu sa otvorenim, prelepim pogledom, koja predstavlja jednu od najvećih vrednosti ove nekretnine, idealno mesto za jutarnju kafu ili večernji odmor iznad gradske vreve.
PROSTORIJE: prostran dnevni boravak sa kuhinjom i trpezarijom, tri spavaće sobe od toga dve sa sopstvenim kupatilom, odvojeni toalet, dve terase, garderober, ostava. Raspored prostorija ovaj stan čini savršenim za porodični život.
Kvalitetni materijali, savremeni dizajn i obilje prirodnog svetla dodatno naglašavaju luksuzan karakter prostora.
Ovo je nekretnina namenjena onima koji žele prestížnu lokaciju, privatnost i pogled koji ostavlja utisak, bez kompromisa.
Uknjižen na 82m2, mereno 100m2.
U cenu stana su uračunete režije.
Agencijska nadoknada iznosi 50% od prve mesečne zakupnine za period zakupa do 36 meseci, a 100% od prve mesečne zakupnine za period zakupa na 36 meseci ili duže.
.
*Sačuvaj oglas uz belešku i primaj obaveštenja o njihovom pojeftinjenju ili pojavljivanju sličnih
Prikaz stana na mapi
Parkovi u blizini
- Parkić za decu na Kalemegdanu6 min
- Univerzitetski park6 min
- Dečiji zabavni park6 min

Obeležja kulture u blizini
- Bajrakli džamija2 min
- Božićeva kuća2 min
- Spomenik Rigi od Fere6 min

Škole/Fakulteti/Vrtići u blizini
- Osnovna škola (Osnovna škola Mihailo Petrović Alas)1 min
- Srednja škola (Tehnička škola Drvo art)5 min
- Vrtić (Predškolska ustanova Dečiji dani Stari grad)2 min
- Fakultet (English School of Business)2 min

- Bolnica (Gradski zavod za plućne bolesti i tuberkulozu)5 min
- Klinika (Family Medica poliklinika)5 min
- Teretana (Medical fitness Zdrav svet)3 min
- Prodavnica (Shop&Go)manje od 1 min
- Restoran (Afifa Halal Food)manje od 1 min
- Kafana (Braggot Pub)3 min
- Taksi stajalište (Taxi stanica)4 min
- Autobuska stanica (Kalemegdan)5 min
- Tramvajska stanica (Kralja Petra)4 min
- Trolejbuska stanica (Studentski trg)6 min
- Banka (Eurobank Direktna)6 min
- Pošta (Pošta Beograd 29)2 min
Kontakt oglašivača
Za ovaj oglas se neko interesovao. Pozovi ranije kako ne bi propustio priliku.
Krediti OTP banke
Period otplate
13 mesecimesečno
Period otplate 13 - 71 mesec
Saznaj više





















