Četvorosoban stan za izdavanje, Molerova, 1.000€, 98m²








































- Stan u zgradi
- Kvadratura: 98m²
- Na 1. spratu od ukupno 5 spratova
- Renovirano
- Prostorije: kuhinja, terasa
- Opremljenost: Polunamešteno - interfon, klima, frižider, rerna
- Oglas oglašava agencija pod reg. brojem 1659
- 1 lift
- Zgrada poseduje: podrum, video nadzor
Opis oglasa
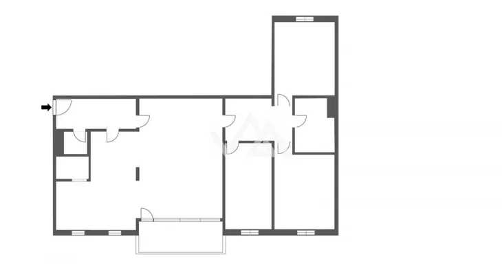
Izdaje se prazan, funkcionalan četvorosoban stan površine 98 m², na prvom spratu uredne zgrade u Molerovoj ulici. Stan je dvostrano orijentisan, što omogućava dobru osvetljenost i prirodnu ventilaciju tokom celog dana.
Zahvaljujući rasporedu i lokaciji, prostor je pogodan kako za stanovanje, tako i za kancelarije, predstavništvo firme ili poslovni apartman. Do sada je uglavnom korišćen kao poslovni apartman i veoma je malo korišćen, bez potrebe za većim ulaganjima. Slobodan je za useljenje odmah.
Odlična lokacija u blizini Bulevara kralja Aleksandra, Krunske ulice, zgrade tehničkih fakulteta, Hotela Metropol i Vukovog spomenika, sa kompletnom infrastrukturom i javnim prevozom u neposrednoj blizini.
Postoji mogućnost zakupa magacinskog prostora u podrumu površine 20 m² (visina plafona 2,60 m), koji je ranije korišćen kao arhiva.
Osnovne informacije:
Četvorosoban stan
Površina: 98 m²
Sprat: 1.
Lokacija: Molerova ulica
Cena zakupa: 1.000 EUR
Agencijska provizija iznosi 50% od jedne mesečne zakupnine.
*Sačuvaj oglas uz belešku i primaj obaveštenja o njihovom pojeftinjenju ili pojavljivanju sličnih
Prikaz stana na mapi
Parkovi u blizini
- Park Mike Oklopa4 min
- Park vojvode Petra Bojovića4 min
- Park Ćirila i Metodija7 min

Obeležja kulture u blizini
- Spomenik Nikoli Tesli5 min
- Spomenik Svetozaru Markoviću4 min
- Genčićeva kuća6 min

Škole/Fakulteti/Vrtići u blizini
- Osnovna škola (Osnovna škola Jovan Miodragović)5 min
- Srednja škola (Četrnaesta beogradska gimnazija)4 min
- Vrtić (Dečiji vrtić Nada Purić)4 min
- Fakultet (Univerzitet u Beogradu Arhitektonski fakultet)6 min

- Bolnica (Neurološka bolnica Affidea)9 min
- Klinika (Poliklinika Dr Rončević)5 min
- Teretana (Fitness centar Team fit)4 min
- Prodavnica (Aman market)2 min
- Restoran (Restoran Chez Olivera)1 min
- Kafana (Pab Tramvaj)8 min
- Taksi stajalište (Taxi stanica)5 min
- Autobuska stanica (Tehnički Fakulteti)4 min
- Tramvajska stanica (Vukov spomenik)6 min
- Trolejbuska stanica (Katanićeva)8 min
- Banka (Eurobank Direktna)6 min
- Pošta (Pošta Beograd 17)4 min
Kontakt oglašivača
Krediti OTP banke
Period otplate
13 mesecimesečno
Period otplate 13 - 71 mesec
Saznaj više

