Kancelarija za izdavanje, Vukov Spomenik, 1.800€, 120m²


































1.800 €
- Na 3. spratu od ukupno 6 spratova
- Renovirano
- Prostorije: terasa
- Opremljenost: Prazno - internet, klima
- Oglas oglašava agencija pod reg. brojem 1873
- 1 lift
- Kablovska
- 1 telefonska linija
Opis oglasa
Poslovni prostor za izdavanje - Bulevar kralja Aleksandra, Vračar
Cena: 1.800 eura
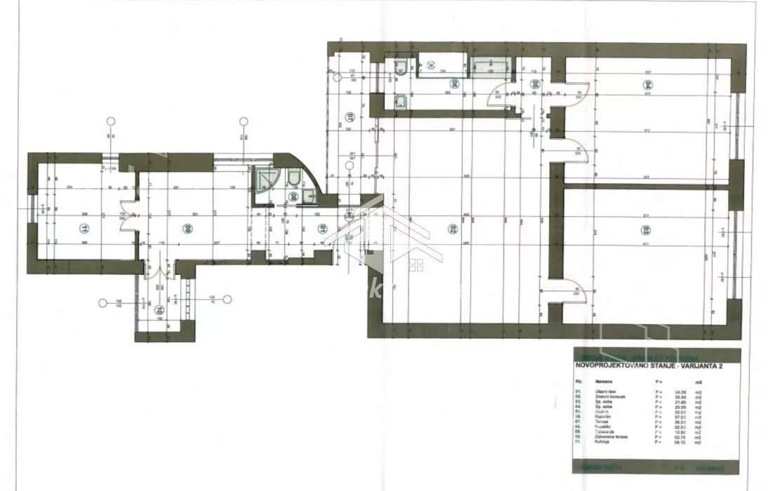
Površina: 120 m2
Izdaje se prazan, luksuzno renoviran poslovni prostor površine 120 m2, smešten u ulici Bulevar kralja Aleksandra, na jednoj od najprestižnijih lokacija na Vračaru.
Prostor se nalazi u objektu sa liftom, podrumom i lođom.
Prostor je izuzetno funkcionalan i sastoji se od četiri zasebne kancelarije, kuhinje, kupatila, posebnog toaleta, ostave i dve terase sa pogledom na ulicu i dvorište.
Dostupan je optički internet, kablovska televizija i telefonska linija.
Luksuzno renoviran salonski prostor, idealan za različite delatnosti - kancelarijsko poslovanje, ordinacije, IT kompanije, advokatske kancelarije, kozmetičke i konsultantske usluge.
Prestižna lokacija u centru Beograda, u neposrednoj blizini Tašmajdana, sa svim važnim sadržajima i odličnom povezanošću javnim prevozom (autobuske, tramvajske i trolejbuske linije).
Pušenje je dozvoljeno.
Mesečne režije iznose od 7.500 RSD.
Depozit je obavezan.
Zakupnina: 1.800 eura mesečno.
Za više informacija i razgledanje kontaktirajte nas.
Agencijska provizija iznosi 50% od prve zakupnine.
ID oglasa: 44378
*Sačuvaj oglas uz belešku i primaj obaveštenja o njihovom pojeftinjenju ili pojavljivanju sličnih
Prikaz poslovnog prostora na mapi
Parkovi u blizini
- Tašmajdan3 min
- Park Mali Tašmajdan6 min
- Park Mike Oklopa7 min

Obeležja kulture u blizini
- Beogradska nadbiskupija - Nadbiskupijski ordinarijat6 min
- Dom braće Krstić6 min
- Dom Udruženja novinara Srbije9 min

Škole/Fakulteti/Vrtići u blizini
- Osnovna škola (Osnovna škola Vladislav Ribnikar)8 min
- Srednja škola (Savremena gimnazija)5 min
- Vrtić (Dečiji vrtić Biser)6 min
- Fakultet (Univerzitet u Beogradu Fakultet muzičke umetnosti)10 min

- Bolnica (Neurološka bolnica Affidea)6 min
- Klinika (Poliklinika Prva poliklinika)6 min
- Teretana (Alchemist - ženski fitnes centar i centar za oporavak)7 min
- Prodavnica (IDEA)3 min
- Restoran (Restoran Madera)manje od 1 min
- Kafana (Pub 53)4 min
- Taksi stajalište (Taxi stanica)4 min
- Autobuska stanica (Park „Tašmajdan“)2 min
- Tramvajska stanica (Pravni fakultet)4 min
- Trolejbuska stanica (Glavna Pošta)7 min
- Banka (UniCredit Bank)9 min
- Pošta (Pošta Beograd 113)9 min
Kontakt oglašivača
Krediti OTP banke
Period otplate
13 mesecimesečno
Period otplate 13 - 71 mesec
Saznaj više
