Lokal za izdavanje, Terazije, 8.500€, 370m²


















8.500 €
mesečno
- Obavezan depozit 8.500 €
- Nije dozvoljeno pušenje
- Režije: od 40000 RSD
- Renovirano
- Izdavanje direktno od vlasnika
Opis oglasa
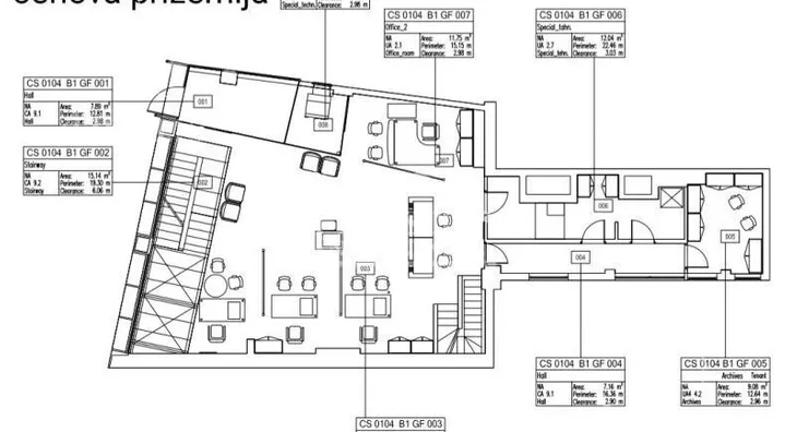
Poslovni prostor za zakup – Terazije 45 (370 m²)
Premium lokacija – reprezentativni lokal sa velikim izlogom
Izdaje se atraktivan poslovni prostor ukupne površine 370 m², na prestižnoj lokaciji u centru Beograda – Terazije 45. Lokal se prostire na tri nivoa (suteren, prizemlje i galerija) i poseduje izuzetan ulični izlog sa velikim prometom pešaka.
Ključne karakteristike
- Reprezentativan lokal u premium komercijalnoj zoni
- Tri nivoa: suteren, prizemlje, galerija
- Ukupna knjižena površina: 370 m²
- Veliki ulični izlog i odlična vidljivost
- Priključna snaga električne energije: 75,00 kW + 12,75 kW
- Pogodan za:
• luksuzni retail
• prodajne salone
• ugostiteljske koncepte sa light cooking pripremom
• knjižaru, galeriju, koncept store i dr. - Prethodno korišćen kao ekspozitura banke
- Prostor zahteva prilagođavanje konceptu zakupca
Finansijski uslovi
- Mesečna zakupnina (neto za zakupodavca): 8.500 EUR
Idealno za premium zakupce
Odlično rešenje za kompanije i brendove kojima su važni vrhunska centralna pozicija, snažna vidljivost, reprezentativan identitet i stabilan pešački tok.
*Sačuvaj oglas uz belešku i primaj obaveštenja o njihovom pojeftinjenju ili pojavljivanju sličnih
Prikaz poslovnog prostora na mapi
Parkovi u blizini
- Park Andrićev venac2 min
- Park Aleksandrov2 min
- Pionirski park4 min

Obeležja kulture u blizini
- Zgrada Ministarstva pravde1 min
- Zgrada Ministarstva prosvete1 min
- Krsmanovićeva kuća na Terazijama2 min

Škole/Fakulteti/Vrtići u blizini
- Osnovna škola (Osnovna škola Vladislav Ribnikar)6 min
- Srednja škola (Gimnazija plus Beograd)4 min
- Vrtić (Dečiji vrtić Terazije)1 min
- Fakultet (Visoka škola socijalnog rada)2 min

- Bolnica (Oftalmologija Stankov)manje od 1 min
- Klinika (Poliklinika Ars Medica)4 min
- Teretana (Fitness centar FunFit)1 min
- Prodavnica (IDEA London)4 min
- Restoran (Restoran Azbuka)1 min
- Kafana (Gradska pivnica Terazije)3 min
- Taksi stajalište (Taxi stanica)5 min
- Autobuska stanica (Terazije)3 min
- Tramvajska stanica (RK „Beograđanka”)7 min
- Trolejbuska stanica (Terazije)4 min
- Banka (Addiko Bank)manje od 1 min
- Pošta (Pošta Beograd 112)3 min
Kontakt oglašivača

Krediti OTP banke
Period otplate
13 mesecimesečno
Period otplate 13 - 71 mesec
Saznaj više