Lokal za izdavanje, Njegoševa, 2.700€, 40m²






















2.700 €
- Prizemlje
- Opremljenost: Prazno - klima, kanalizacija
- Oglas oglašava agencija pod reg. brojem 167
- Kanalizacija
Opis oglasa
Vračar, Slavija - Njegoševa
lokal, 40m2, prizemlje, CG, klima, izlog
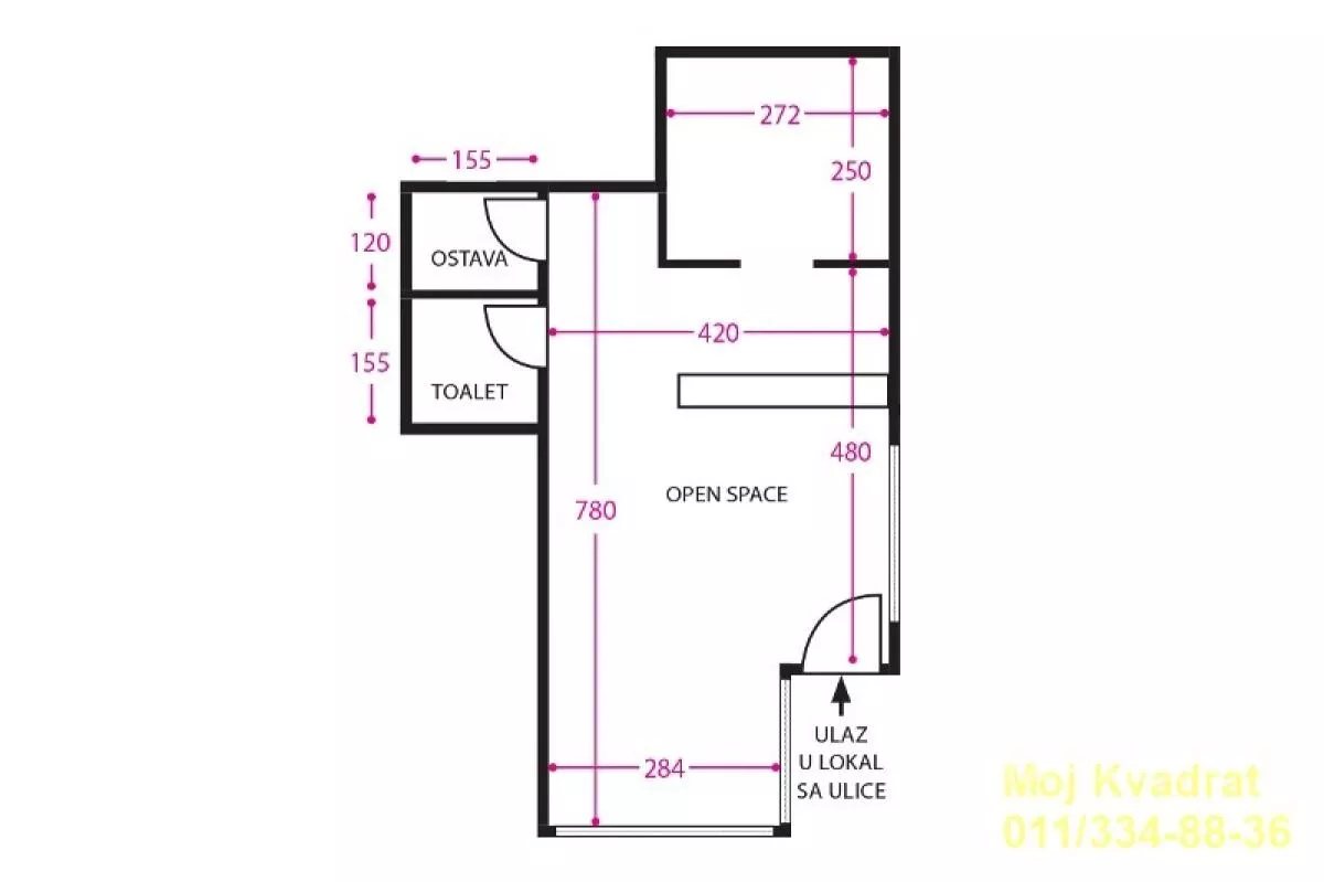
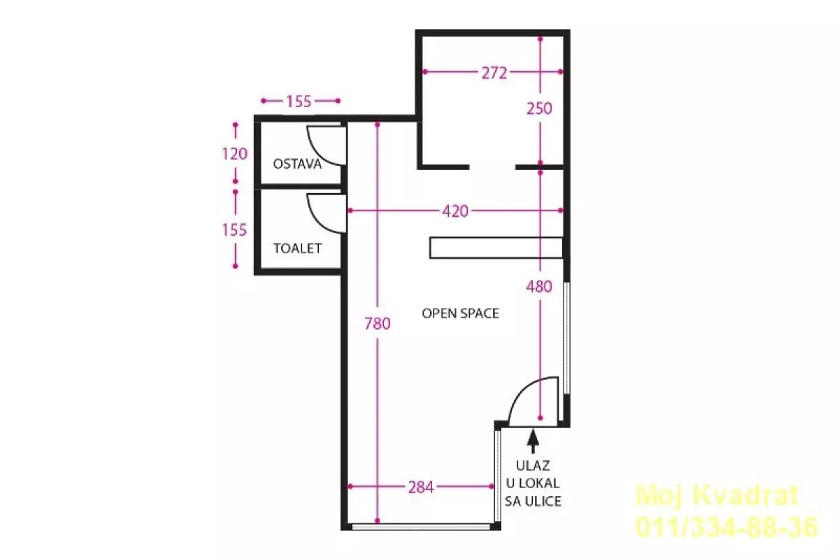
Izdaje se lokal u Njegoševoj ulici na izuzetnoj poziciji, sa izlogom u punom obimu koji izlazi na dve ulice, gde je velika frekvencija ljudi.
Lokal poseduje klimu, mini tehničku sobu, ostavu, toalet, šank, mini kuhinju sa instalacijama. Visina plafona je 3,5m.
Pogodan je za restoran brze hrane, knjižaru, uslužne delatnosti.
Agencijska provizija u skladu sa Opštim uslovima poslovanja.
Agent: Svetlana Todorov 066... (prikaži broj telefona) (licenca br.6305)
*Sačuvaj oglas uz belešku i primaj obaveštenja o njihovom pojeftinjenju ili pojavljivanju sličnih
Prikaz poslovnog prostora na mapi
Parkovi u blizini
- Park Mitićeva rupa3 min
- Park Mike Oklopa8 min
- Manjež8 min

Obeležja kulture u blizini
- Kuća pukovnika Elezovića2 min
- Spomenik Mihajlu Pupinu3 min
- Genčićeva kuća3 min

Škole/Fakulteti/Vrtići u blizini
- Osnovna škola (Osnovna škola Sveti Sava)5 min
- Srednja škola (Savremena gimnazija)5 min
- Vrtić (Dečiji vrtić studio za edukaciju Moj mali svet)1 min
- Fakultet (Centar Osteopatija)7 min

- Bolnica (Neurološka bolnica Affidea)7 min
- Klinika (Diva estetic dr Bogdanović - dermatološka ordinacija)3 min
- Teretana (Fitness centar Tonus Fit)5 min
- Prodavnica (Market TR)1 min
- Restoran (Restoran Lovac)2 min
- Kafana (Kafana Melem za dušu)4 min
- Taksi stajalište (Taxi stanica)4 min
- Autobuska stanica (Smiljanićeva)2 min
- Tramvajska stanica (Trg Slavija /Bulevar Oslobođenja/)7 min
- Trolejbuska stanica (Trg Slavija)4 min
- Banka (Eurobank Direktna)5 min
- Pošta (Pošta Beograd 5)4 min
Kontakt oglašivača
Krediti OTP banke
Period otplate
13 mesecimesečno
Period otplate 13 - 71 mesec
Saznaj više




















