Lokal za izdavanje, Njegoševa, 6.000€, 200m²














6.000 €
- Prizemlje
- Opremljenost: Prazno - kanalizacija
- Oglas oglašava agencija pod reg. brojem 167
- Kanalizacija
Opis oglasa
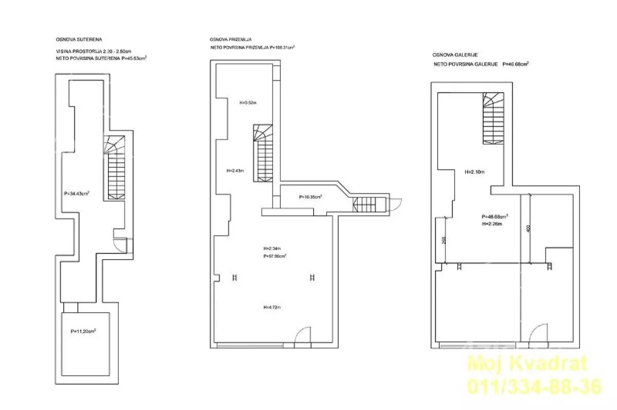
Vračar, Slavija - Njegoševa
lokal, 200m2, prizemlje + galerija, CG
Izdaje se lokal u Njegoševoj ulici sa pogledom na park. Lokal je u sivoj fazi u ima tri nivoa. Visina plafona između prizemlja i galerije je 4,8m.
Lokal je vanrednog potencijala za ugostiteljsku delatnost, uzimajući samu poziciju u izrazito prometnoj zoni, pogled na park i mogućnost otvaranja bašte, uz saglasnost Opštine Vračar.
Zakupac ima mogućnost da uređuje lokal po sopstvenom nahođenju, na način kako bi se sva uložena sredstva sukcesivno odbijala od kirije.
Agencijska provizija u skladu sa Opštim uslovima poslovanja.
Agent: Svetlana Todorov 066... (prikaži broj telefona) (licenca br.6305)
*Sačuvaj oglas uz belešku i primaj obaveštenja o njihovom pojeftinjenju ili pojavljivanju sličnih
Prikaz poslovnog prostora na mapi
Parkovi u blizini
- Park Mitićeva rupa3 min
- Park Mike Oklopa8 min
- Manjež8 min

Obeležja kulture u blizini
- Kuća pukovnika Elezovića2 min
- Spomenik Mihajlu Pupinu3 min
- Genčićeva kuća3 min

Škole/Fakulteti/Vrtići u blizini
- Osnovna škola (Osnovna škola Sveti Sava)5 min
- Srednja škola (Savremena gimnazija)5 min
- Vrtić (Dečiji vrtić studio za edukaciju Moj mali svet)1 min
- Fakultet (Centar Osteopatija)7 min

- Bolnica (Neurološka bolnica Affidea)7 min
- Klinika (Diva estetic dr Bogdanović - dermatološka ordinacija)3 min
- Teretana (Fitness centar Tonus Fit)5 min
- Prodavnica (Market TR)1 min
- Restoran (Restoran Lovac)2 min
- Kafana (Kafana Melem za dušu)4 min
- Taksi stajalište (Taxi stanica)4 min
- Autobuska stanica (Smiljanićeva)2 min
- Tramvajska stanica (Trg Slavija /Bulevar Oslobođenja/)7 min
- Trolejbuska stanica (Trg Slavija)4 min
- Banka (Eurobank Direktna)5 min
- Pošta (Pošta Beograd 5)4 min
Kontakt oglašivača
Krediti OTP banke
Period otplate
13 mesecimesečno
Period otplate 13 - 71 mesec
Saznaj više




















