Lokal za izdavanje, Njegoševa, 6.000€, 107m²




6.000 €
mesečno
- Obavezan depozit
- Prizemlje od ukupno 6 spratova
- Potrebno renoviranje
- Prostorije: kupatilo
- Opremljenost: internet
- Oglas oglašava agencija pod reg. brojem 5
- Objekat poseduje: podrum
- Kablovska
Opis oglasa
U samom srcu Beograda, na jednoj od najatraktivnijih lokacija – Njegoševoj ulici, sa direktnim pogledom na Mitićevu rupu, izdaje se lokal od 200 m2, izuzetnog potencijala za razvoj ugostiteljskog objekta ili drugog komercijalnog sadržaja.
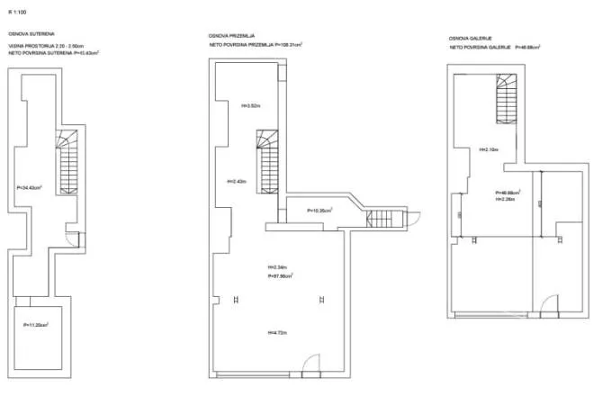
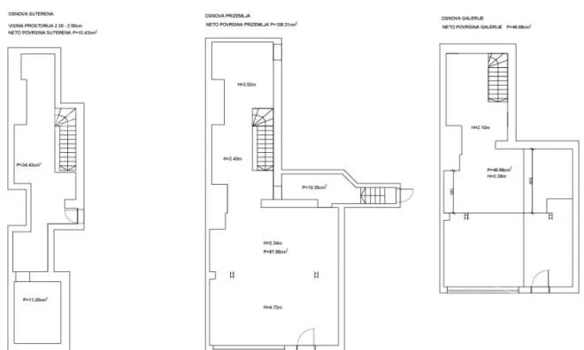
Prostor se prostire na tri nivoa: prizemlje (107 m2) sa visinom plafona gotovo 5 m, idealno za prostor za sedenje, šank i izlog prema ulici; galerija (47 m2) koja može služiti kao dodatni deo za goste; i podrum (45 m2) predviđen za kuhinju, toalete i tehničke prostorije. Postoji mogućnost formiranja bašte od oko 50 m² na trotoaru ispred lokala, što ovaj prostor čini posebno pogodnim za restoran, bistro, kafić ili kafeteriju.
Lokal je u izvornom stanju, ali deo radova je već započet u pravcu opremanja za ugostiteljsku namenu. Zakupac može ostvariti kompenzaciju ulaganja kroz umanjenje zakupnine, što omogućava prilagođavanje prostora sopstvenom konceptu i estetici.
Zahvaljujući izuzetnoj frekvenciji prolaznika, odličnoj vidljivosti i centralnoj lokaciji, ovaj lokal predstavlja savršenu priliku za brend koji želi prepoznatljivo i prometno mesto u Beogradu.
Posrednička naknada se obračunava u skladu sa Opštim uslovima poslovanja agencije "DIVIS NEKRETNINE" d.o.o.
*Sačuvaj oglas uz belešku i primaj obaveštenja o njihovom pojeftinjenju ili pojavljivanju sličnih
Prikaz poslovnog prostora na mapi
Parkovi u blizini
- Park vojvode Petra Bojovića6 min
- Park Mike Oklopa6 min
- Park Mitićeva rupa6 min

Obeležja kulture u blizini
- Spomenik Mihajlu Pupinu6 min
- Kuća pukovnika Elezovića5 min
- Genčićeva kuća6 min

Škole/Fakulteti/Vrtići u blizini
- Osnovna škola (Osnovna škola Sveti Sava)7 min
- Srednja škola (Četrnaesta beogradska gimnazija)5 min
- Vrtić (Dečiji vrtić Nada Purić)4 min
- Fakultet (Centar Osteopatija)4 min

- Bolnica (Neurološka bolnica Affidea)4 min
- Klinika (Poliklinika Millenium Medic)2 min
- Teretana (Fitness centar Fitness Tribe)2 min
- Prodavnica (Shop&Go)1 min
- Restoran (Liberte Belgrade Restaurant et Jeux)2 min
- Kafana (Pejton Pub)6 min
- Taksi stajalište (Taxi stanica)7 min
- Autobuska stanica (Smiljanićeva)2 min
- Tramvajska stanica (Trg Slavija /Bulevar Oslobođenja/)8 min
- Trolejbuska stanica (Katanićeva)5 min
- Banka (Eurobank Direktna)2 min
- Pošta (Pošta Beograd 17)6 min
Kontakt oglašivača
Keš krediti
Period otplate
13 meseci