Poslovni prostor za izdavanje, Popovica, 2.000€, 181m²














































































2.000 €
- Odmah useljivo
- Novo
- Prostorije: terasa
- Opremljenost: Prazno - interfon, klima
- Oglas oglašava agencija pod reg. brojem 1405
- 1 parking mesto
Opis oglasa
- Sremska Kamenica, Popovica
- Pogled na Novi Sad, Dunav i padine Fruške gore
- Struktura - 5.0
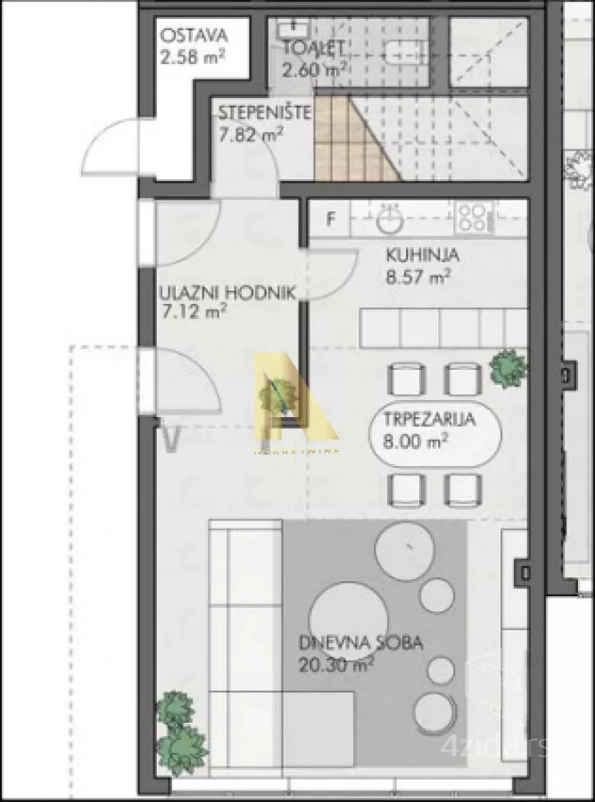
- Prostor: prizemlje, dva sprata, krovna bašta sa djakuzijem
- 181m2 + cca 40m2 krovne terase sa ostavom
- Dvorište cca 100m2
- 2 parking mesta (3 vozila mogu da se parkiraju)
- Odvojena ostava od stambene jedinice
- Keramika Porcelanosa
- Svaka soba je klimatizovana
Prizemlje: open space dnevni boravak i trpezarija sa kuhinjom, ulazni hodnik, toalet
Prva etaža: 2 master spavaće sobe sa staklenim francuskim balkonom, vešeraj, kotlarnica, hodnik
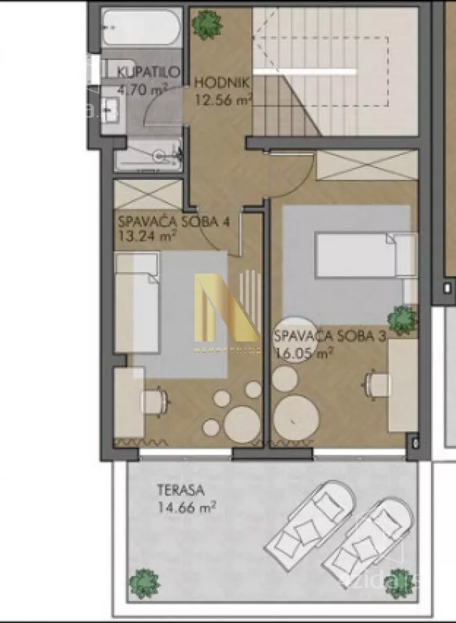
Druga etaža: 2 spavaće sobe, kupatilo, terasa (cca 15m2)
Treća etaža: ostava, krovna terasa
Objekat je izgrađen od vrhunskih materijala i opreme, sa ugrađenim “pametnim” sistemom koji omogućava upravljanje svim električnim uređajima sa bilo koje lokacije.
Napomena: na poslednjim slikama se nalazi izgled dvorišta, krovne terase i osnova svake etaže sa kvadraturama svih prostorija
PDV je uračunat u cenu, moguć je povrat istog za kupce prve nekretnine.
Za sve dodatne informacije, obratite se na
065... (prikaži broj telefona)
ili
065... (prikaži broj telefona)
Nikola Ljuboja. Agencija N Nekretnine, reg. br. posrednika 1405, Alekse Šantića 64, Novi Sad
*Sačuvaj oglas uz belešku i primaj obaveštenja o njihovom pojeftinjenju ili pojavljivanju sličnih
Prikaz poslovnog prostora na mapi
Parkovi u blizini
- Kamenički park50 min

Obeležja kulture u blizini
- Kuća iz 1797. godine5 min
- Kuća Jovana Jovanovića Zmaja7 min
- Dvorac Marcibanji-Karačonji7 min

Škole/Fakulteti/Vrtići u blizini
- Osnovna škola (Osnovna škola Jovan Jovanović Zmaj)7 min
- Srednja škola (Francusko-srpska gimnazija Petar I od Srbije)8 min
- Vrtić (Dečiji vrtić Zmaj)6 min
- Fakultet (Educons Univerzitet)8 min

- Bolnica (Kovid bolnica Novi Sad)12 min
- Klinika (Poliklinika HealthMedic)17 min
- Teretana (Joga Yogaja Studio)9 min
- Prodavnica (Supermarket Univerexport)21 min
- Restoran (Restoran Dinara)37 min
- Autobuska stanica (Popovica - Fruškogorski Put - Lovački Dom)3 min
- Banka (Poštanska štedionica)7 min
- Pošta (Pošta Sremska Kamenica 21208)6 min
Kontakt oglašivača
Krediti OTP banke
Period otplate
13 mesecimesečno
Period otplate 13 - 71 mesec
Saznaj više




















