Lokal za izdavanje, Novi Sad - Centar, 3.500€, 135m²








3.500 €
- Prizemlje
- Oglas oglašava agencija pod reg. brojem 1405
Opis oglasa
Oglašavamo izdavanje lokala u luksuznoj stambeno-poslovnoj zgradi, prvoklasnog kvaliteta.
Prostor se nalazi nalazi u modernoj zgradi savremenog dizajna i pruža brojne mogućnosti za razne delatnosti.
Lokacija ovaj objekat još više čini posebnim. Nalazi se u samom središtu izmedju Spensa, Starog grada i centra.
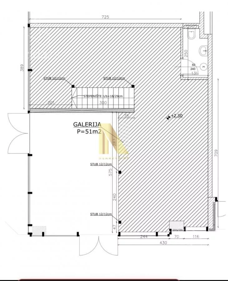
Sastoji se iz osnove od 84 kvadrata+galerije 51 kvadrat. Plafon je visine 5m što ovom objektu daje specifičan i luksuzni izgled.
Potreban depozit kao i jednokratna posrednička naknada 100% od prve mesečne zakupnine.
Za sve dodatne informacije, obratiti se na broj telefona
066... (prikaži broj telefona)
ili
065... (prikaži broj telefona)
Nikola Ljuboja, Bulevar Evrope 44, N-NEKRETNINE, upisan u registar posrednika 1405
*Sačuvaj oglas uz belešku i primaj obaveštenja o njihovom pojeftinjenju ili pojavljivanju sličnih
Prikaz poslovnog prostora na mapi
Parkovi u blizini
- Dunavski park12 min
- Park srpsko-azerbejdžanskog prijateljstva19 min
- Limanski park21 min

Obeležja kulture u blizini
- Spomenik Svetozaru Miletiću5 min
- Matičarsko zdanje7 min
- Galerija Matice srpske2 min

Škole/Fakulteti/Vrtići u blizini
- Osnovna škola (Privatna osnovna škola Tvrđava)6 min
- Srednja škola (Gimnazija Isidora Sekulić)5 min
- Vrtić (Dečiji vrtić Vila)4 min
- Fakultet (Univerzitet u Novom Sadu Fakultet sporta i fizičkog vaspitanja)5 min

- Bolnica (Hirurška ordinacija Aesculap)4 min
- Klinika (Poliklinika Nada Diva)4 min
- Teretana (Fitness centar World Class Bazaar)4 min
- Prodavnica (Mikromarket)4 min
- Restoran (Macchiato Kuća eat & dream)4 min
- Kafana (Invicta Pub)3 min
- Taksi stajalište (Zeleni Eko Taxi)18 min
- Autobuska stanica (Bul. Mihajla Pupina - Pothodnik)4 min
- Banka (Narodna banka Srbije)3 min
- Pošta (Pošta Novi Sad 21108)8 min
Kontakt oglašivača
Krediti OTP banke
Period otplate
13 mesecimesečno
Period otplate 13 - 71 mesec
Saznaj više




















