Lokal za izdavanje, Novi Sad - Centar, 8.760€, 584m²








































































8.760 €
- 2. sprat
- Uobičajeno stanje
- Prostorije: terasa
- Oglas oglašava agencija pod reg. brojem 46
Opis oglasa
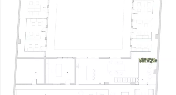
Agencijska oznaka 9189878. U srcu Novog Sada, pod hladom tri platana, prostire se 27 metara do ulice prelep, svetao i moderan poslovni prostor površine 584 m², idealan za kancelarije i tihu delatnost, sa mogućnošću obezbeđivanja do 6 parking mesta, od gradske vreve izolovan prvoklasnim materijalima i aluminijumskom stolarijom sa četiri stakla, dok se sa dvorišne strane nalaze velika i mala terasa koje pružaju potpuni mir i cvrkut ptica, prostor je nov i polunamešten. Projektovan je kao multifunkcionalan po visokim standardima, prilagođen i najzahtevnijim korisnicima, raspolaže open space konceptom i kancelarijama, ima osam toaleta, rekreativnu sobu i terasu, optički internet sa dva provajdera, kompletnu LAN cat6a i Wi-Fi mrežu, video-nadzor prostora i parkinga, centralu kontrole pristupa zaposlenih, interfon, alarm i protivpožarnu centralu, savremeni smart sistem grejanja i hlađenja putem toplotnih pumpi sa podnim grejanjem i hlađenjem kao i fan-coil sistemom, ventilaciju sa rekuperacijom vazduha i prirodnu ventilaciju kroz 44 prozora, vrhunsku završnu obradu koja uključuje italijansku keramiku, modularni etison, mermer, dekorativnu i radnu rasvetu, protivprovalna i automatska vrata, useljiv je po dogovoru, cena zakupa iznosi 15 €/m², dok se troškovi kreću od 250 do 300 € u prelaznom periodu, oko 900 € leti i zimi uz server sobu i 50 zaposlenih, odnosno prosečno oko 500 €, sa tri odvojena brojila. Za više informacija i dogovor oko gledanja poslovnog prostora, kontaktirajte agenta Danijelu Stankovic na 064... (prikaži broj telefona) .
*Sačuvaj oglas uz belešku i primaj obaveštenja o njihovom pojeftinjenju ili pojavljivanju sličnih
Prikaz poslovnog prostora na mapi
Parkovi u blizini
- Dunavski park12 min
- Park srpsko-azerbejdžanskog prijateljstva19 min
- Limanski park21 min

Obeležja kulture u blizini
- Spomenik Svetozaru Miletiću5 min
- Matičarsko zdanje7 min
- Galerija Matice srpske2 min

Škole/Fakulteti/Vrtići u blizini
- Osnovna škola (Privatna osnovna škola Tvrđava)6 min
- Srednja škola (Gimnazija Isidora Sekulić)5 min
- Vrtić (Dečiji vrtić Vila)4 min
- Fakultet (Univerzitet u Novom Sadu Fakultet sporta i fizičkog vaspitanja)5 min

- Bolnica (Hirurška ordinacija Aesculap)4 min
- Klinika (Poliklinika Nada Diva)4 min
- Teretana (Fitness centar World Class Bazaar)4 min
- Prodavnica (Mikromarket)4 min
- Restoran (Macchiato Kuća eat & dream)4 min
- Kafana (Invicta Pub)3 min
- Taksi stajalište (Zeleni Eko Taxi)18 min
- Autobuska stanica (Bul. Mihajla Pupina - Pothodnik)4 min
- Banka (Narodna banka Srbije)3 min
- Pošta (Pošta Novi Sad 21108)8 min
Kontakt oglašivača
Krediti OTP banke
Period otplate
13 mesecimesečno
Period otplate 13 - 71 mesec
Saznaj više
